模型详情
1/8
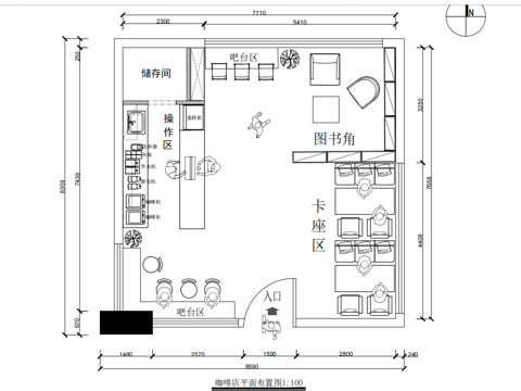
65套咖啡厅咖啡馆咖啡店CAD施工图cad施工图
ID:
5185675
65套咖啡厅咖啡馆咖啡店CAD施工图cad施工图 ID-5185675
所需欧币:
86
发布时间:
2025-11-24
下载请使用电脑登录欧模网,建议先收藏
收藏
分享
雅俗共赏
关注
为您推荐
华章欧式咖啡厅室内工装CAD施工图cad施工图
最新6套 咖啡厅 施工图合集cad施工图
最新6套 咖啡厅 施工图合集cad施工图
最新6套 咖啡厅 施工图合集cad施工图
最新5套 咖啡厅 施工图合集cad施工图
最新6套 咖啡厅 施工图合集cad施工图
高档咖啡厅 最新全套施工图合集cad施工图
最新6套 咖啡厅 施工图合集cad施工图
最新5套 咖啡厅 施工图合集cad施工图
最新6套 咖啡厅 施工图合集cad施工图
最新全套5套 咖啡厅 施工图合集cad施工图
现代咖啡厅酒吧室内装修CAD施工图集 22套cad施工图
最新6套 星巴克 咖啡厅 施工图合集cad施工图
最新6套 中餐厅 咖啡厅 施工图合集cad施工图
茶饮奶茶咖啡厅室内工装平面CAD施工图集 30套cad施工图
93℃凤林路奶油风咖啡厅室内工装CAD施工图整套+SUcad施工图
丽菲红酒酒吧咖啡厅室内工装CAD施工图整套cad施工图
北欧风格咖啡厅室内工装CAD施工图+3Dmax模型cad施工图
北京鹿鸣书苑咖啡馆室内改造工装CAD施工图整套+文本cad施工图
鹿鸣书院咖啡馆室内改造项目cad施工图
点击加载更多
分享到
复制链接
保存海报
取消
请选择收藏夹
+新增收藏夹
新增收藏夹
取消
确认
退出查看