模型详情
1/8
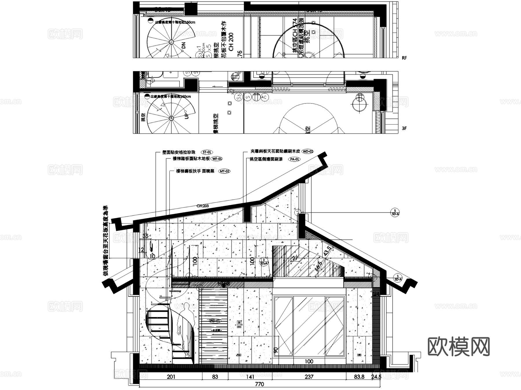
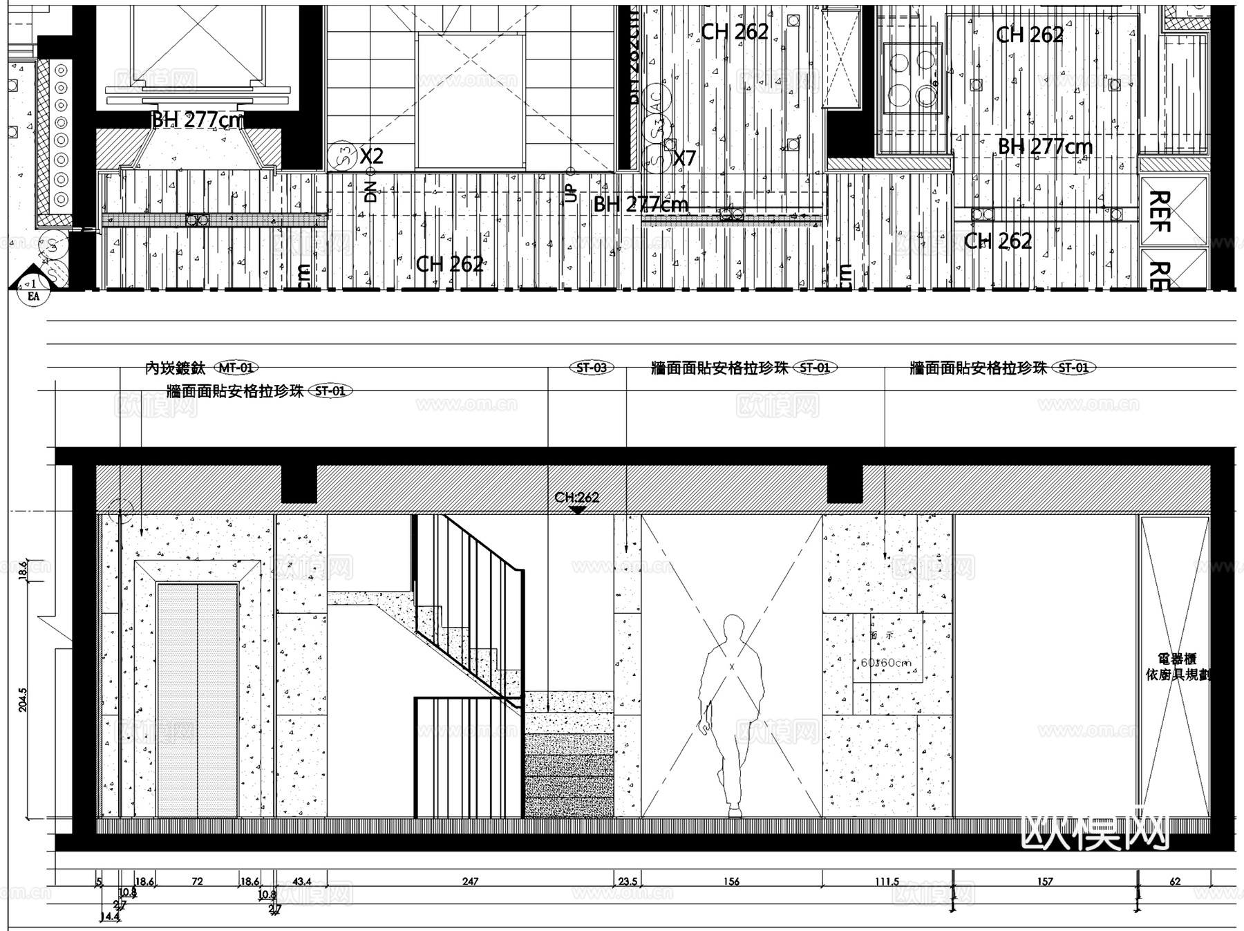
远洋天著春秋265户型三层别墅室内家装CAD施工图整套cad施工图
ID:
5188471
远洋天著春秋265户型三层别墅室内家装CAD施工图整套cad施工图 ID-5188471
所需欧币:
36
发布时间:
2025-11-25
下载请使用电脑登录欧模网,建议先收藏
收藏
分享
皮肤干燥
关注
为您推荐
意大利风三层别墅室内家装CAD施工图整套cad施工图
中式三层别墅私宅室内家装CAD施工图整套cad施工图
遂宁大院轻奢三层别墅室内家装CAD施工图整套cad施工图
泸州新中式三层别墅室内家装CAD施工图整套cad施工图
曦城P-301户型私宅三层别墅室内家装CAD施工图整套cad施工图
美墅馆户型三层别墅室内家装CAD施工图cad施工图
常州世贸香槟湖三层别墅室内家装CAD施工图整套cad施工图
襄樊山顶中式三层别墅私宅室内家装CAD施工图整套cad施工图
欧式BJ260三层别墅室内家装CAD施工图整套cad施工图
曦城现代私宅三层别墅室内家装CAD施工图整套cad施工图
上海保亿风景水岸D户型双拼三层别墅室内家装CAD施工图整套cad施工图
南通博园岚郡A2户型三层别墅室内家装CAD施工图整套cad施工图
淳安千岛湖三层别墅室内家装CAD施工图整套cad施工图
三层别墅室内家装CAD施工图cad施工图
晋渝林畔英伦风三层别墅室内家装CAD施工图整套cad施工图
佛山绿岛湖四层别墅250户型室内家装CAD施工图整套cad施工图
中式三层别墅室内家装CAD施工图cad施工图
欧式三层别墅室内家装CAD施工图cad施工图
古典三层别墅室内家装CAD施工图cad施工图
欧式三层别墅室内家装CAD施工图cad施工图
点击加载更多
分享到
复制链接
保存海报
取消
请选择收藏夹
+新增收藏夹
新增收藏夹
取消
确认
退出查看