模型详情
1/7
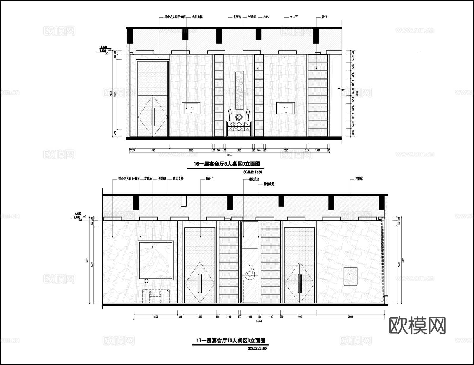
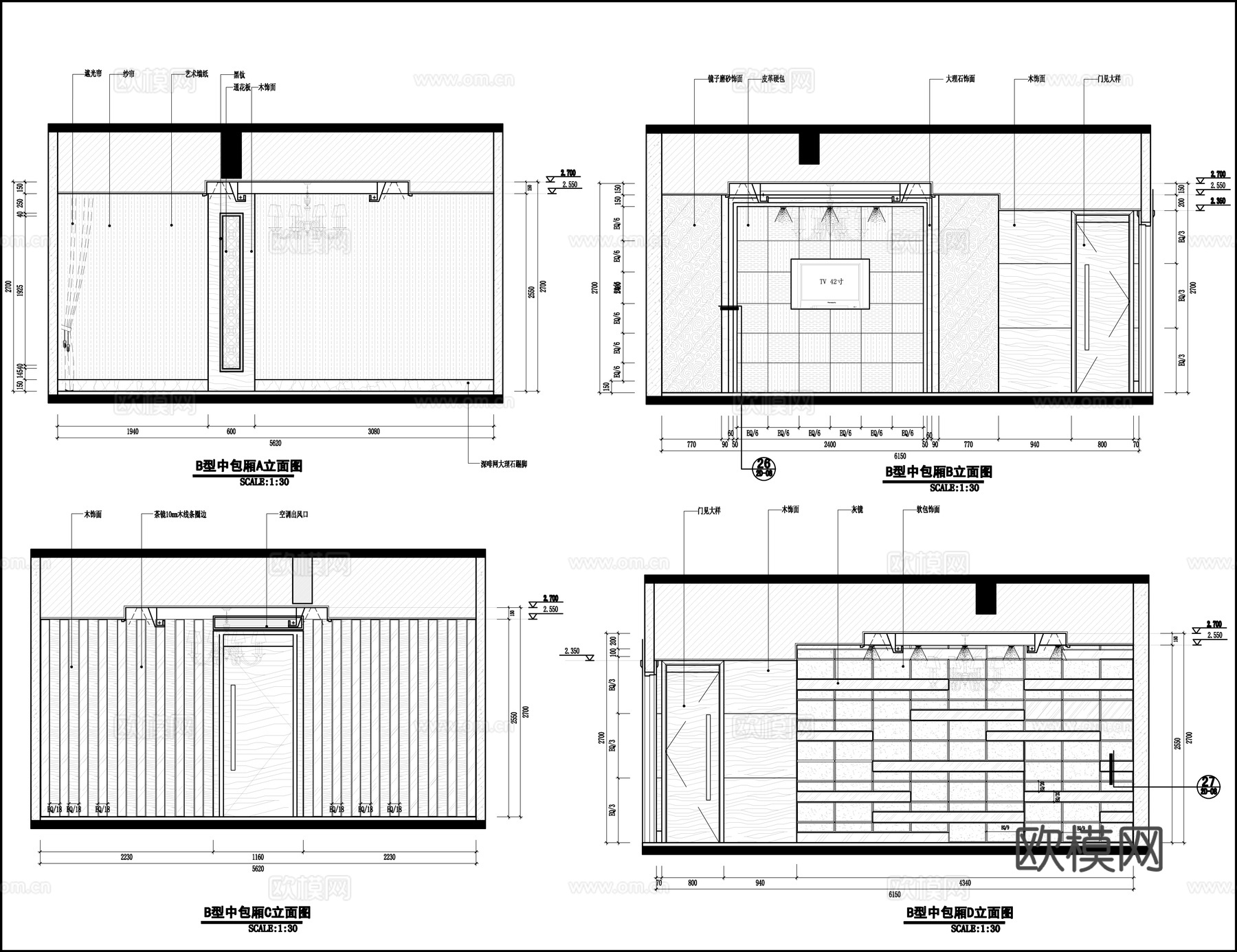
最新完整版高端餐厅会所施工图合集cad施工图
ID:
5198845
最新完整版高端餐厅会所施工图合集cad施工图 ID-5198845
所需欧币:
86
发布时间:
2025-11-28
下载请使用电脑登录欧模网,建议先收藏
收藏
分享
微笑丶纯属礼貌
关注
为您推荐
最新完整版高端会所施工图合集cad施工图
最新完整版高端会所施工图合集cad施工图
最新完整版高端会所施工图合集cad施工图
最新完整版会所施工图合集cad施工图
最新完整版高档会所施工图合集cad施工图
最新完整版欧式会所施工图合集cad施工图
最新完整版KTV会所施工图合集cad施工图
最新完整版茶楼会所施工图合集cad施工图
最新完整版KTV会所平面施工图合集cad施工图
最新完整版办公楼会所施工图合集cad施工图
最新完整版KTV施工图合集cad施工图
高档餐厅会所 最新全套施工图合集cad施工图
高档餐厅会所 最新全套施工图合集cad施工图
最新全套 会所高档餐厅 施工图合集cad施工图
高档会所餐厅 最新全套施工图合集cad施工图
高端美容会所 最新全套施工图 效果图合集cad施工图
最新完整版美容医院施工图合集cad施工图
最新完整版足浴店施工图合集cad施工图
美容spa 最新完整版施工图合集cad施工图
最新完整版美容医院施工图合集cad施工图
点击加载更多
分享到
复制链接
保存海报
取消
请选择收藏夹
+新增收藏夹
新增收藏夹
取消
确认
退出查看