模型详情
1/3
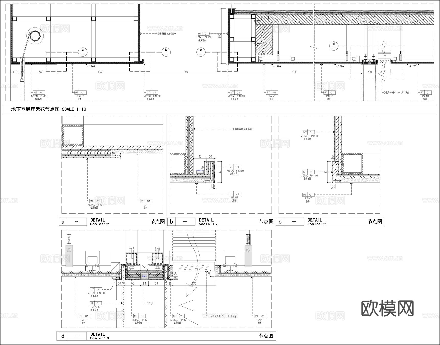
展厅天花 地下室天花 夹层天花 天花吊顶节点图cad施工图
ID:
5199342
展厅天花 地下室天花 夹层天花 天花吊顶节点图cad施工图 ID-5199342
所需欧币:
36
发布时间:
2025-11-28
下载请使用电脑登录欧模网,建议先收藏
收藏
分享
妮子1973
关注
为您推荐
展厅天花 软膜天花 酒店大堂天花 天花吊顶节点cad施工图
展厅别墅天花 室内天花 天花吊顶节点图cad施工图
吊顶节点 天花吊顶 通用天花吊顶cad施工图
室内客厅天花 展厅别墅天花 天花吊顶节点图cad施工图
沙盘天花 异形天花 叠层天花 天花吊顶节点cad施工图
吊顶节点图 卫生间天花 厨房天花 天花吊顶cad施工图
别墅吊顶 顶面节点 客厅格栅天花 天花节点图cad施工图
室内天花 客厅卧室天花 天花吊顶节点图cad施工图
卫生间天花吊顶 吊顶节点图 室内天花吊顶cad施工图
天花吊顶 异形吊顶 吊顶节点 顶面节点cad施工图
简欧风格天花 客厅天花 餐厅天花 天花员顶节点图cad施工图
石膏板吊顶 卧室天花 天花吊顶节点图cad施工图
室内硬装节点 客厅卧室天花 现代天花吊顶 吊顶节点图cad施工图
弧形吊顶 天花吊顶 客厅吊顶 吊顶节点 顶面节点cad施工图
室内硬装节点 客厅卧室天花 现代天花吊顶 吊顶节点图cad施工图
石膏板吊顶 卧室天花 天花员顶节点图cad施工图
悬浮吊顶 现代简约吊顶 顶面节点 天花节点cad施工图
GRG天花吊顶 侘寂风吊顶 艺术涂料吊顶 吊顶节点cad施工图
100个天花常用节点cad施工图
藻井天花造型详图、天花藻井透光铝板、吊顶造型剖面大样cad施工图
点击加载更多
分享到
复制链接
保存海报
取消
请选择收藏夹
+新增收藏夹
新增收藏夹
取消
确认
退出查看