模型详情
1/3
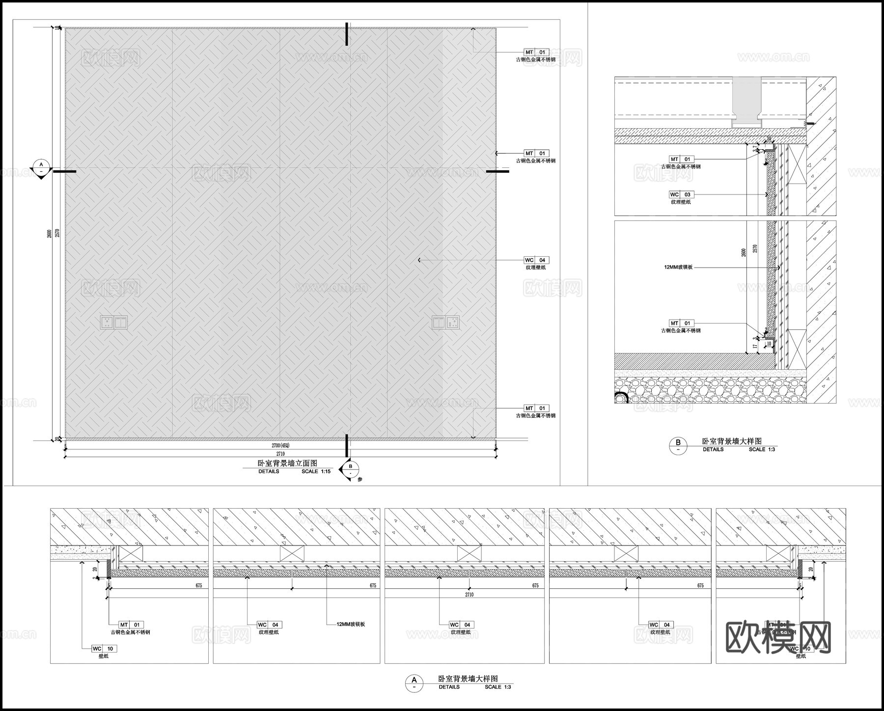
床头背景墙 轻奢背景墙 墙面节点图cad施工图
ID:
5205362
床头背景墙 轻奢背景墙 墙面节点图cad施工图 ID-5205362
所需欧币:
36
发布时间:
2025-12-02
下载请使用电脑登录欧模网,建议先收藏
收藏
分享
妮子1973
关注
为您推荐
床头背景墙 卧室背景墙 墙面节点图 墙面cad施工图
卧室背景墙 床头背景墙 墙面装饰 墙面节点图cad施工图cad施工图
背景墙 装饰墙面 客厅墙面 墙面节点图cad施工图
卧室背景墙 床头背景墙 墙面节点 墙面平面立面图cad施工图
简欧风床头背景墙 背景墙 卧室背景墙 墙面节点图cad施工图
儿童房背景墙 床头背景墙 墙面节点 卧室柜子节点cad施工图
弧形背景墙 墙面节点 金属背景墙 高光烤漆墙面 床头背景墙cad施工图
电视背景墙 异形墙面 现代背景墙 墙面节点cad施工图
书房墙面布局图 书房背景墙 墙面剖面图节点图cad施工图
床头背景墙 背景墙 木栅格背景墙 背景墙节点图cad施工图
电视背景墙 客厅背景墙 石材墙面 墙面节点图cad施工图
背景墙立面图 石材背景墙 客厅背景墙 墙面节点cad施工图
卧室背景墙 背景墙立面图 床头背景墙 背景墙节点cad施工图
电视背景墙 现代墙面 扪皮墙面 墙面节点cad施工图
石材背景墙 酒店大堂背景墙 墙面节点cad施工图
客厅背景墙 电视背景墙 石材墙面 背景墙节点图cad施工图
石材背景墙 背景墙 电视背景墙 墙面节点cad施工图
售楼处背景墙 装饰墙面 墙面立面图节点图cad施工图
墙面端景节点 墙面节点 墙面装饰品 节点图cad施工图
电视墙背景墙面 现代轻奢墙面 古铜金属墙面 墙面节点cad施工图
点击加载更多
分享到
复制链接
保存海报
取消
请选择收藏夹
+新增收藏夹
新增收藏夹
取消
确认
退出查看