模型详情
1/1
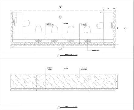
前台接待台 接待前台 服务接待台 大堂接待台 前台工作台cad施工图
ID:
5206597
前台接待台 接待前台 服务接待台 大堂接待台 前台工作台cad施工图 ID-5206597
所需欧币:
36
发布时间:
2025-12-03
下载请使用电脑登录欧模网,建议先收藏
收藏
分享
海量CAD素材库
关注
为您推荐
前台节点、服务台节点、接待台节点cad施工图
前台服务接待台大堂室内装饰CAD施工图集 6套cad施工图
前台接待台服务台咨询台室内装饰CAD施工图集 20套cad施工图
售楼处接待台 酒店接待台节点大样图
办公前台节点 楼层服务台 桌台节点 剖面图cad施工图
装饰墙 墙面立面图 酒店售楼部展厅前台背景墙 节点图cad施工图
服务卡车 维修服务车 流动服务车 工程服务车 现场服务车cad施工图
服务台详图cad施工图
调酒服务台节点cad施工图
服务台节点详图cad施工图
党群服务中心建筑施工图cad施工图
服务中心给排水施工图cad施工图
老街社区服务中心施工图cad施工图
驿站 服务站 服务中心 共享驿站 休息驿站cad施工图
东党群服务中心平立面图cad施工图cad施工图
眉山万达影城大堂施工图cad施工图
新中式新农村服务中心施工图cad施工图
党群服务中心电气施工图cad施工图
乡村综合服务中心平面方案cad施工图
电影院大堂公区施工图cad施工图
点击加载更多
分享到
复制链接
保存海报
取消
请选择收藏夹
+新增收藏夹
新增收藏夹
取消
确认
退出查看