模型详情
1/4
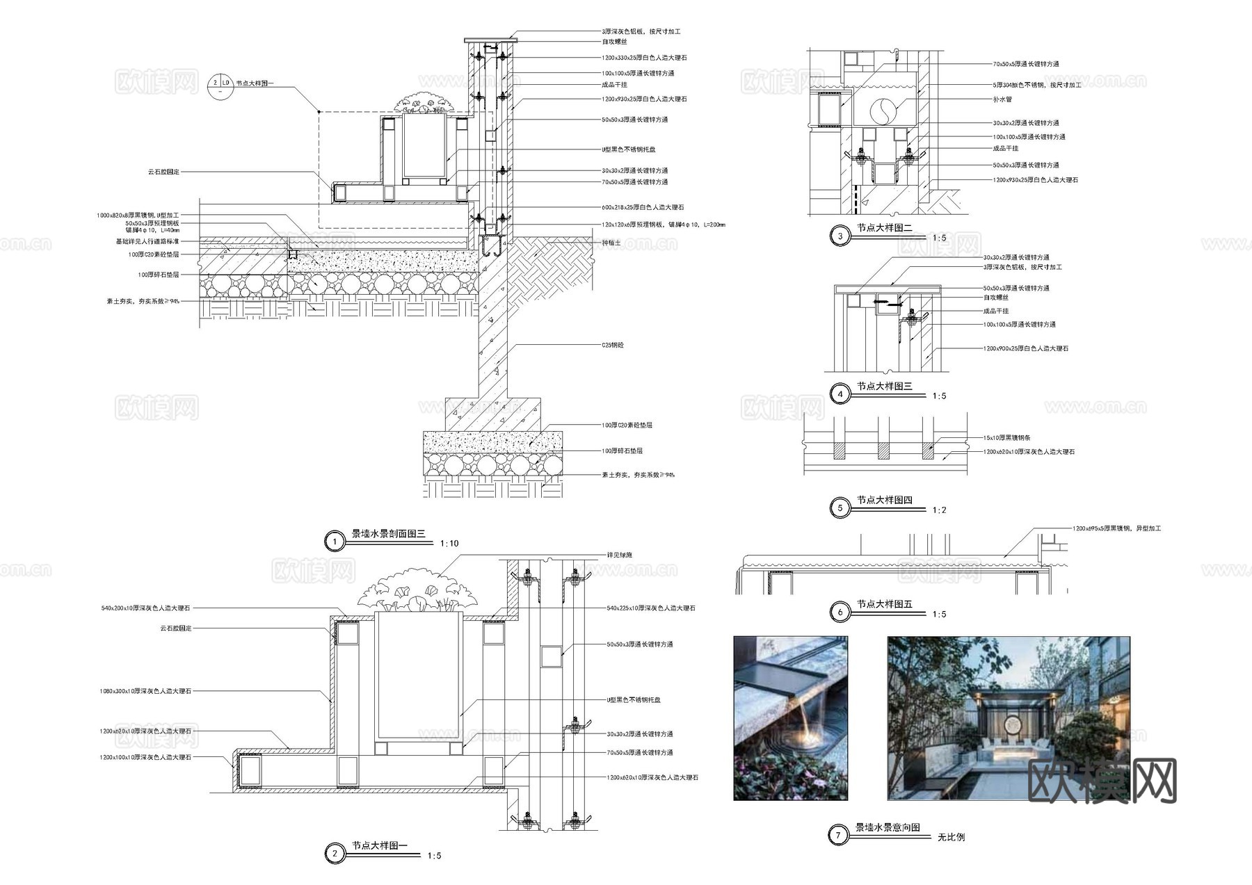
黑镜钢镜面景墙水景详图cad施工图
ID:
5207591
黑镜钢镜面景墙水景详图cad施工图 ID-5207591
所需欧币:
36
发布时间:
2025-12-03
下载请使用电脑登录欧模网,建议先收藏
收藏
分享
LL设计
关注
为您推荐
欧式叠水景墙水景景观CAD施工图详图集cad施工图
景观水景镜面水CAD施工图+SU模型 3套cad施工图
现代别墅水景详图cad施工图
欧式喷泉水景详图cad施工图
跌水小水景详图cad施工图
20套假山水景CAD详图cad施工图
20套假山水景CAD详图cad施工图
庭院矮景墙详图cad施工图
乡村矮墙景墙详图cad施工图
镜面水池静水面景观水景CAD施工图集 18套cad施工图
新中式山水景墙景观CAD施工详图集 55套cad施工图
美丽乡村矮景墙详图cad施工图
现代乡村矮景墙详图cad施工图
中式景墙窗花详图cad施工图cad施工图
新中式景墙CAD施工图详图集 5套cad施工图
园林景观休闲水景CAD施工详图集 29套cad施工图
绿城地产休闲水景景观CAD施工详图集 20套cad施工图
园林景观休闲水景大样CAD施工详图集 70套cad施工图
异形镀锌钢景观廊架详图cad施工图
园林景观水幕景墙水景墙CAD施工图集 20套cad施工图
点击加载更多
分享到
复制链接
保存海报
取消
请选择收藏夹
+新增收藏夹
新增收藏夹
取消
确认
退出查看