模型详情
1/3
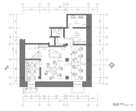
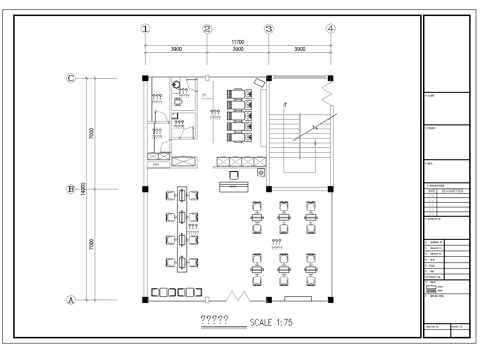
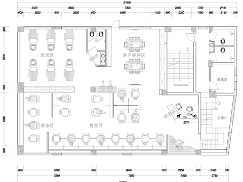
某理发店室内设计cad施工图
ID:
5209299
某理发店室内设计cad施工图 ID-5209299
所需欧币:
16
发布时间:
2025-12-04
下载请使用电脑登录欧模网,建议先收藏
收藏
分享
鱼頭豆腐汤🐠
关注
为您推荐
佛山某KTV会所cad施工图
某海鲜粥餐厅cad施工图
25套理发店CAD图纸cad施工图
某沐足会所施工图cad施工图
某KTV沐足会所施工图cad施工图
某会所门头设计cad施工图
室内设计图库大全cad施工图
室内设计图库大全cad施工图
11套理发店施工图最新整理cad施工图
CAD施工图封面CAD封面设计室内设计封面CAD源文件cad施工图
某酒店办公室设计cad施工图
某学校食堂平面图cad施工图
最新完整版理发店施工图合集cad施工图
室内设计家装工装综合CAD图库cad施工图
最新完整版理发店施工图合集cad施工图
理发店 最新完整版施工图合集cad施工图
40套理发店美容美发店发廊CAD施工图cad施工图cad施工图
室内设计平立面图大全cad施工图
某便利店门头设计cad施工图
理发店 美发店 美甲店 美容店 理发店家具cad施工图
点击加载更多
分享到
复制链接
保存海报
取消
请选择收藏夹
+新增收藏夹
新增收藏夹
取消
确认
退出查看