模型详情
1/6
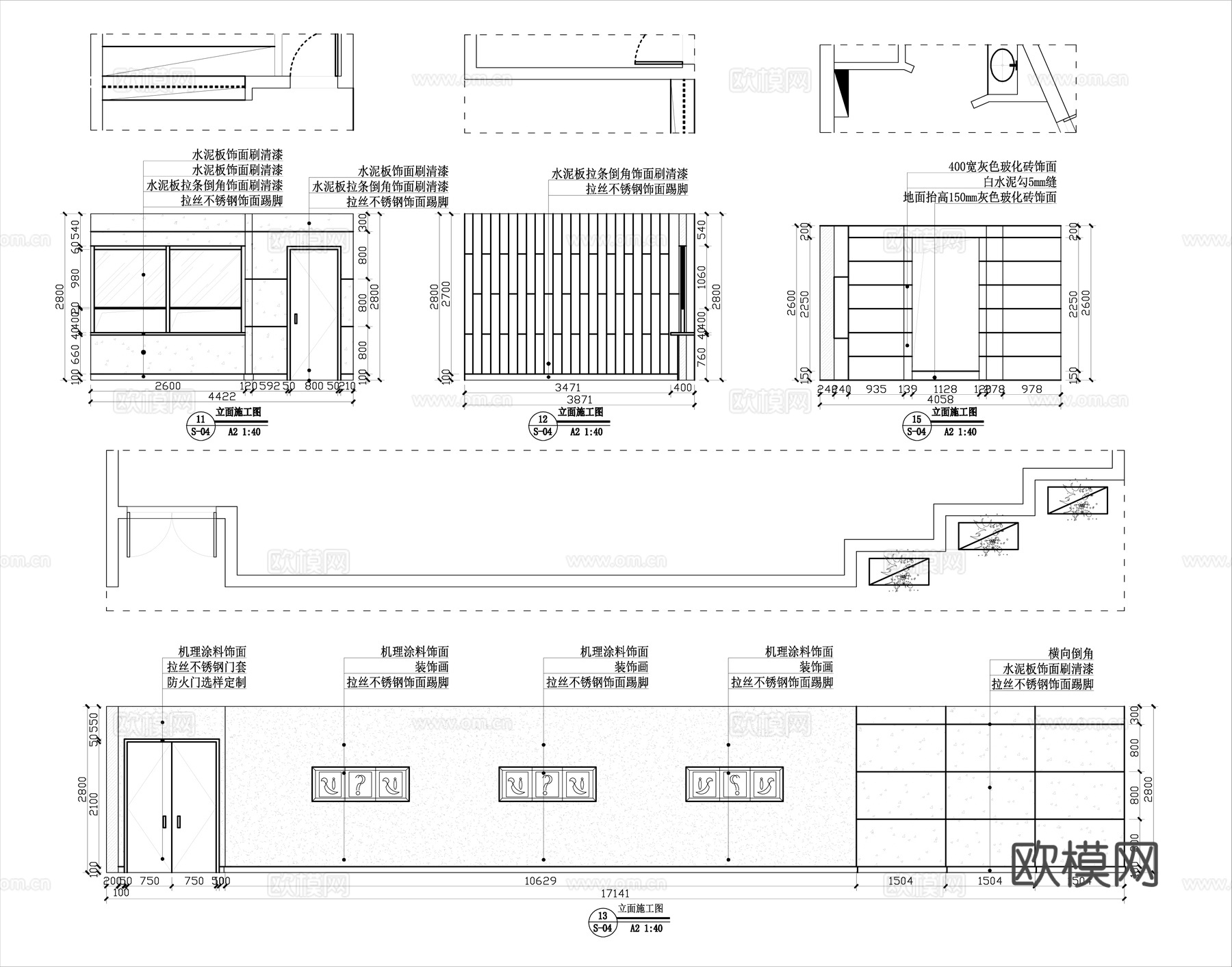
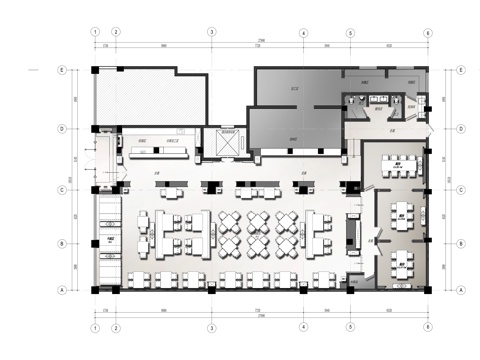
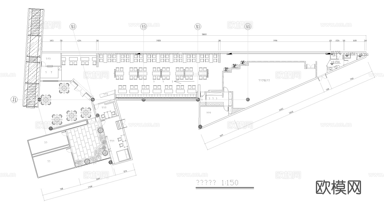
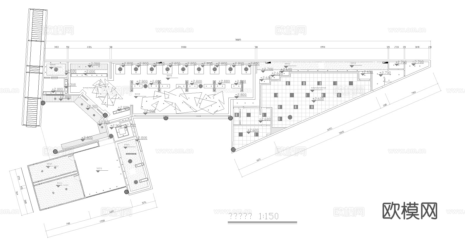
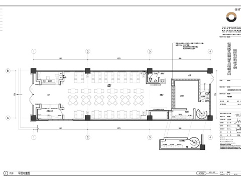
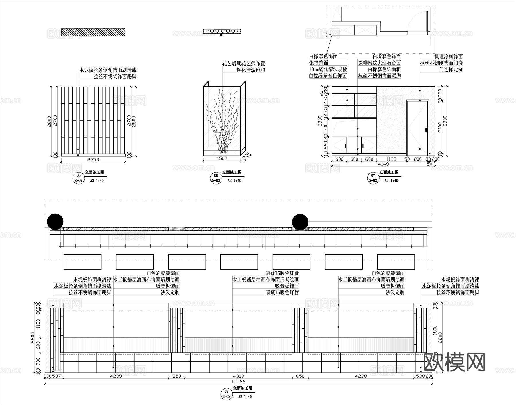
最新全套 面馆 施工图合集cad施工图
ID:
5212058
最新全套 面馆 施工图合集cad施工图 ID-5212058
所需欧币:
86
发布时间:
2025-12-06
下载请使用电脑登录欧模网,建议先收藏
收藏
分享
微笑丶纯属礼貌
关注
为您推荐
面馆 最新全套施工图 合集cad施工图
牛肉面馆 最新全套施工图 合集cad施工图
牛肉面馆 最新全套施工图 合集cad施工图
最新全套 千拉面 面馆 施工图合集cad施工图
牛肉面馆 最新全套施工图 合集cad施工图
最新全套 牛肉面馆 施工图合集cad施工图
牛肉面馆 最新全套施工图 合集cad施工图
最新全套 牛肉面面馆 施工图合集cad施工图
面馆 最新全套施工图 效果图合集cad施工图
面馆 最新全套施工图 效果图合集cad施工图
特色面馆 最新全套施工图 效果图合集cad施工图
医院 最新全套施工图合集cad施工图
医院 最新全套施工图合集cad施工图
医院 最新全套施工图合集cad施工图
医院 最新全套施工图合集cad施工图
医院 最新全套施工图合集cad施工图
特色烩面馆 最新全套施工图 效果图合集cad施工图
最新全套 茶餐厅 施工图合集cad施工图
最新全套 清吧 施工图合集cad施工图cad施工图
食堂 餐厅 最新全套施工图合集cad施工图
点击加载更多
分享到
复制链接
保存海报
取消
请选择收藏夹
+新增收藏夹
新增收藏夹
取消
确认
退出查看