模型详情
1/2
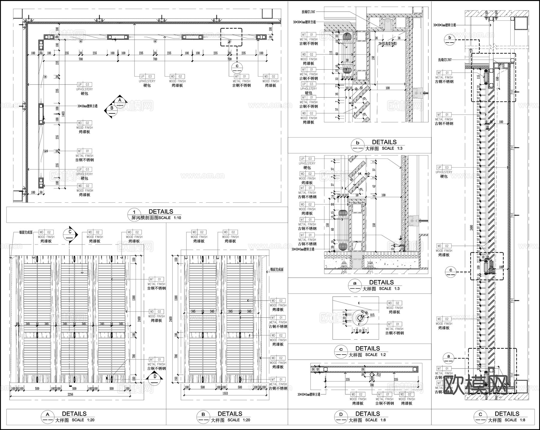
中古风屏风 烤漆实木屏风 屏风隔断 隔断节点cad施工图
ID:
5212394
中古风屏风 烤漆实木屏风 屏风隔断 隔断节点cad施工图 ID-5212394
所需欧币:
36
发布时间:
2025-12-06
下载请使用电脑登录欧模网,建议先收藏
收藏
分享
妮子1973
关注
为您推荐
屏风隔断CAD图库cad施工图
屏风隔断CAD图块cad施工图
2026年最新屏风隔断玻璃屏风原木隔断铝合金屏风隔CAD图库cad施工图
中式屏风隔断CAD图块cad施工图
铝通隔断屏风节点、木纹铝方通屏风、铝方通镜子屏风、格栅屏风隔cad施工图
木格栅屏风 格栅隔断 木格栅装饰 格栅节点cad施工图
餐厅矮隔断屏风、餐厅卡座半高隔断、餐饮店就餐区隔断cad施工图
中式屏风隔断窗花木门cad施工图
中式 屏风隔断 花格门窗 纹样图案 CAD施工图cad施工图
中式屏风CAD图库cad施工图
中式屏风CAD图库cad施工图
精品中式屏风cad施工图
新中式禅意山水镂空格栅景墙影壁隔断屏风cad施工图
多种中式屏风图库cad施工图
中式 木格窗 花窗 屏风隔断 栏杆围挡 纹样图案 CADcad施工图
多个中式屏风CAD图块cad施工图
大型玻璃隔断安装节点cad施工图
钢化玻璃屏风 CAD施工图cad施工图
22个中式屏风图块cad施工图
中式鱼鳞纹样 鱼鳞纹理 鱼鳞图案 鱼鳞屏风隔断 CAD施工图cad施工图
点击加载更多
分享到
复制链接
保存海报
取消
请选择收藏夹
+新增收藏夹
新增收藏夹
取消
确认
退出查看