模型详情
1/8
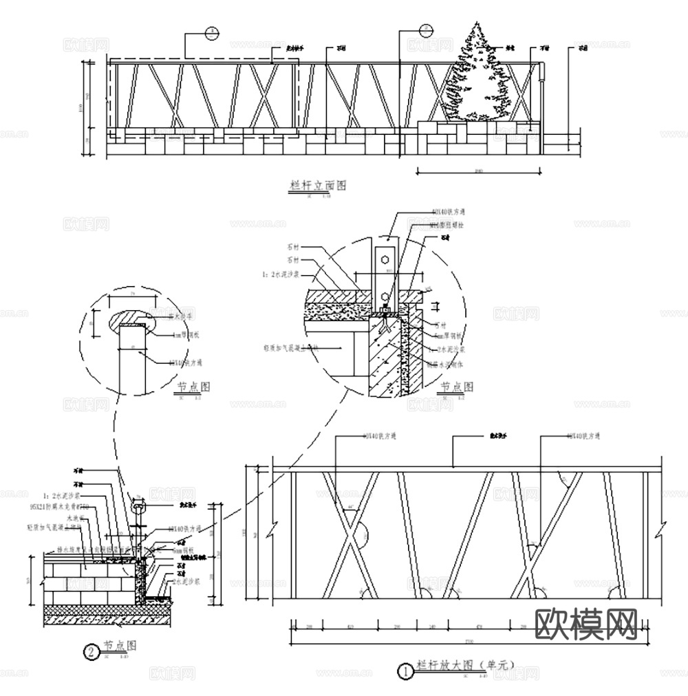
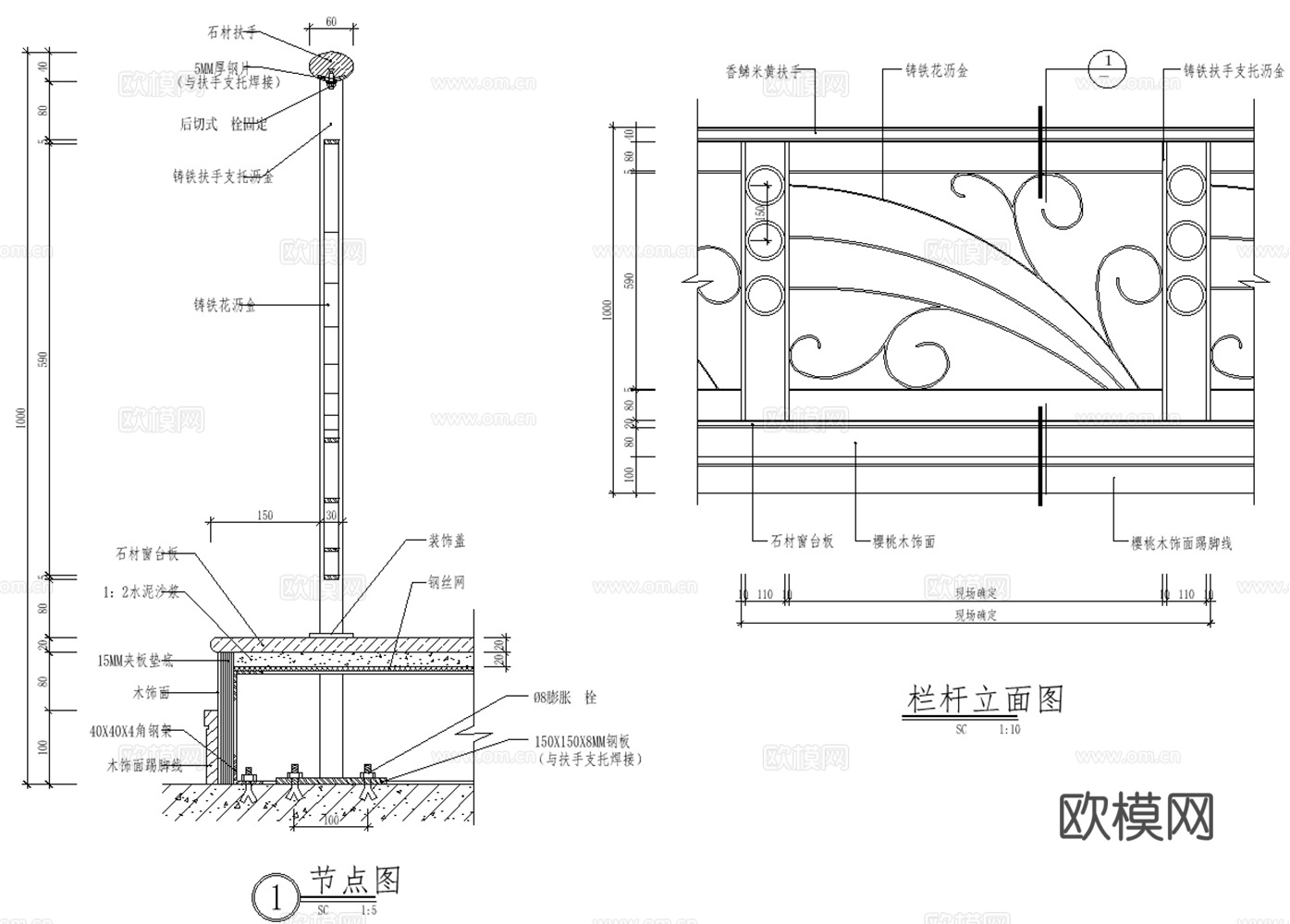
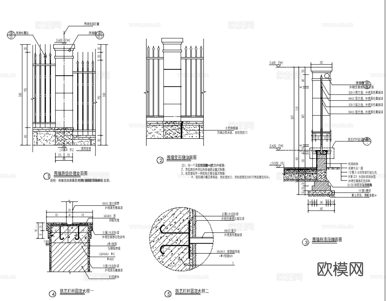
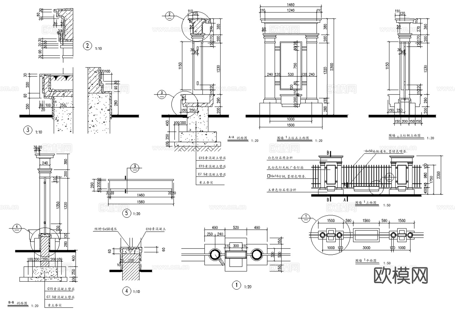
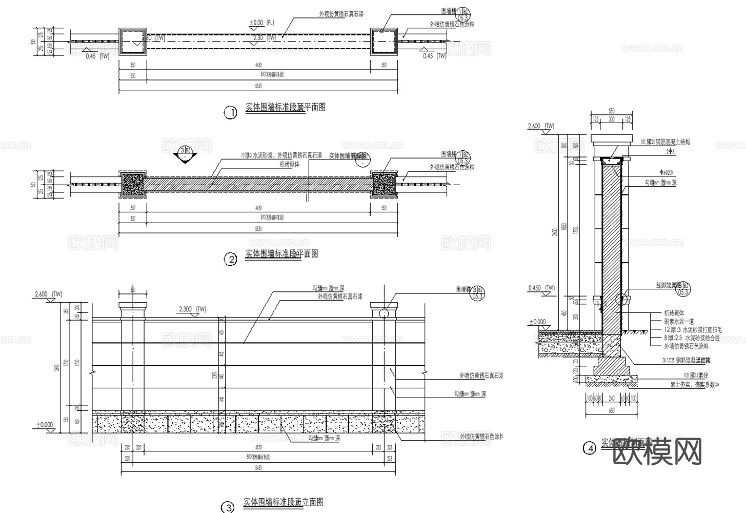
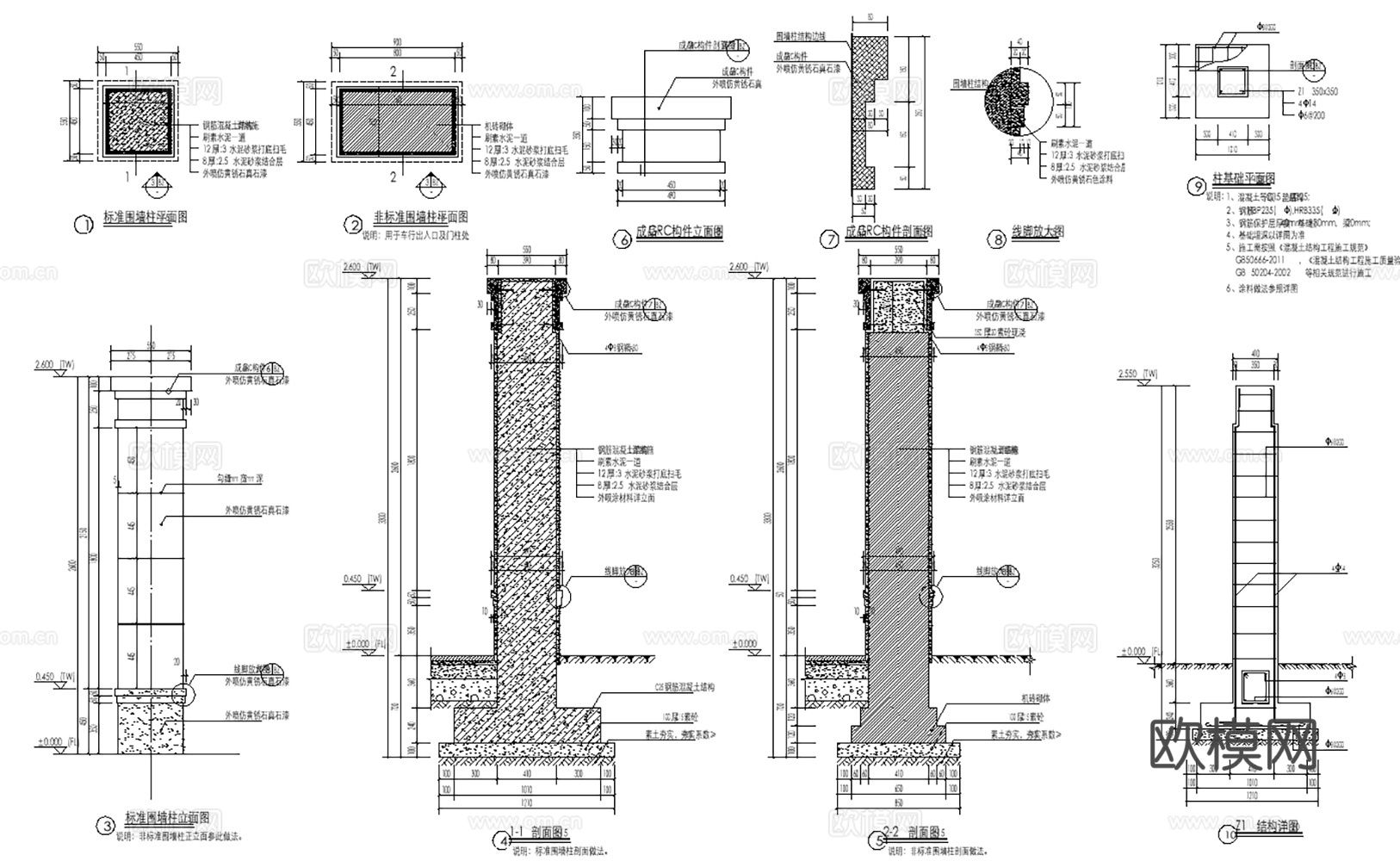
30套栏杆围栏护栏石材围墙铁艺围栏CAD图cad施工图
ID:
5214847
30套栏杆围栏护栏石材围墙铁艺围栏CAD图cad施工图 ID-5214847
所需欧币:
86
发布时间:
2025-12-08
下载请使用电脑登录欧模网,建议先收藏
收藏
分享
大可
关注
为您推荐
护栏围栏栏杆围墙20套最新整理cad施工图
2026年最新超全铁艺栏杆护栏围栏CAD图库cad施工图
铁艺栏杆 围栏护栏 金属栅栏 防护栏隔断 景观防护栏镂空扶手cad施工图
阳台防护栏杆做法cad施工图
2026年最新铁艺栏杆艺术栏杆镂空栏杆CAD图库cad施工图
栏板 石栏杆 木栏杆 CAD施工图cad施工图
栏杆详图cad施工图
栏杆详图cad施工图
栏杆详图cad施工图
栏杆详图cad施工图
多种栏杆扶手CAD图块cad施工图
围墙大样图 方案 施工图cad施工图
铁丝网护栏cad施工图
铁丝网护栏cad施工图
室内外栏杆扶手护栏节点大样详图CAD施工图集 64套cad施工图
围墙节点大样图cad施工图
石材地面做法cad施工图cad施工图
现代简欧围墙_现代围墙_围墙_围墙基础_大门_门岗_施工图cad施工图
欧式栏杆节点详图cad施工图
玻璃栏杆檐口节点cad施工图
点击加载更多
分享到
复制链接
保存海报
取消
请选择收藏夹
+新增收藏夹
新增收藏夹
取消
确认
退出查看