模型详情
1/8
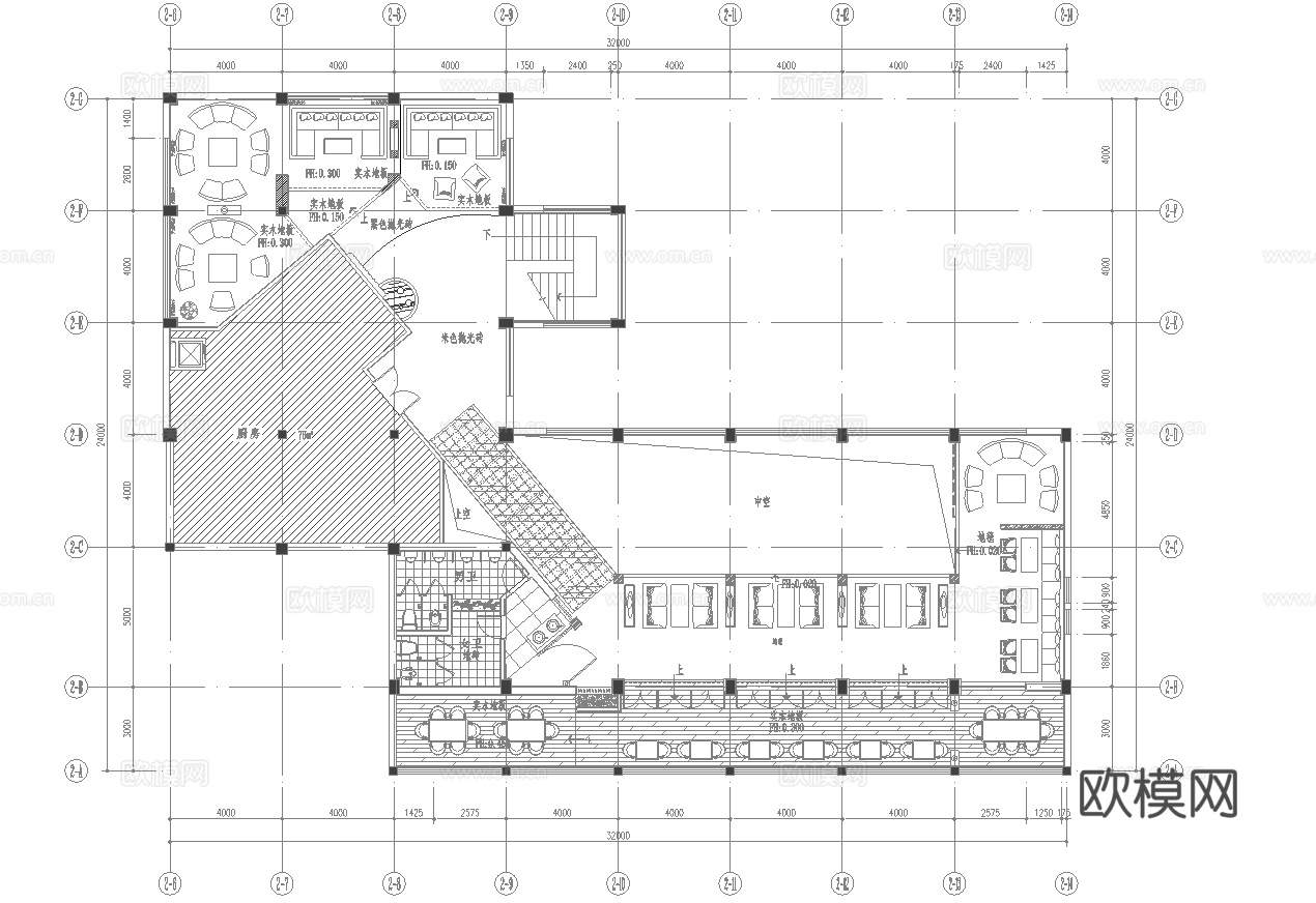
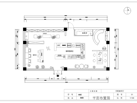
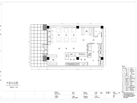
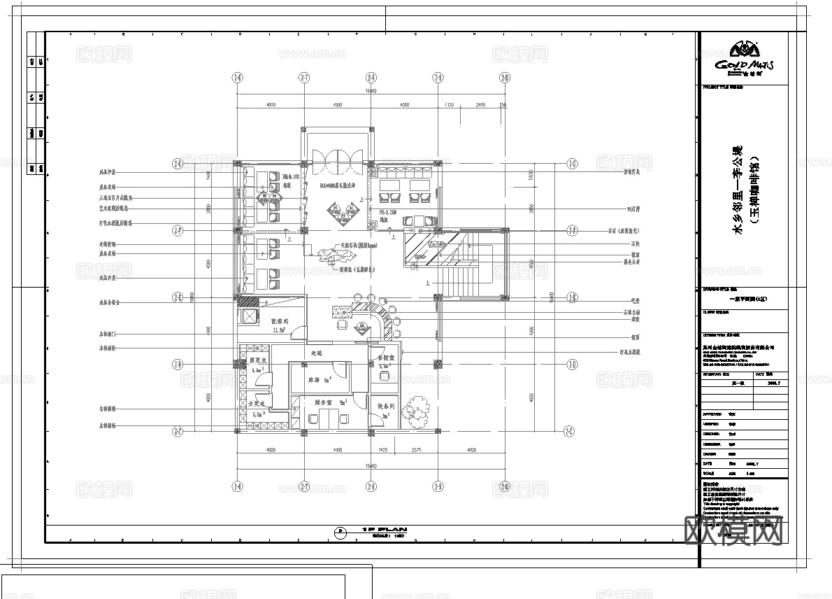
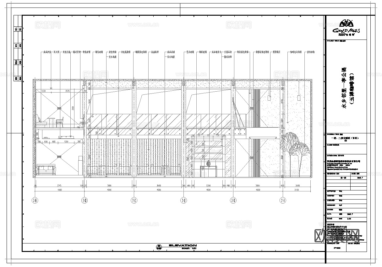
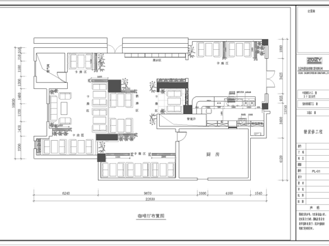
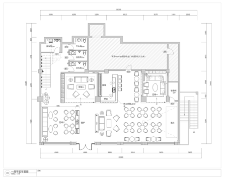
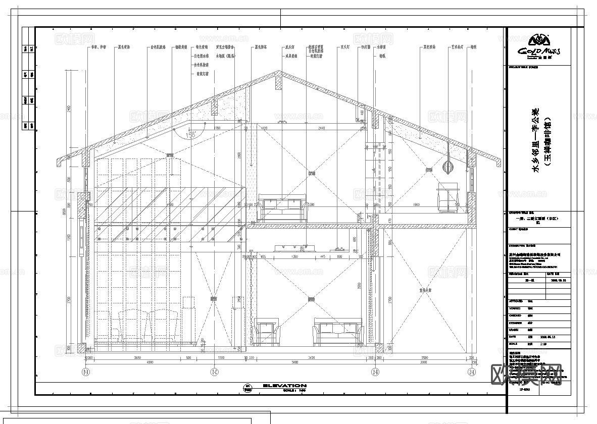
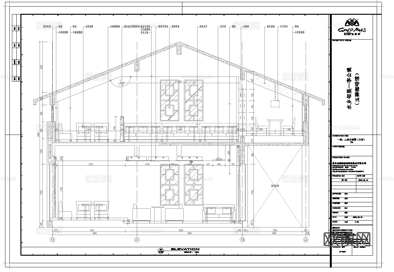
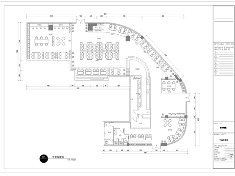
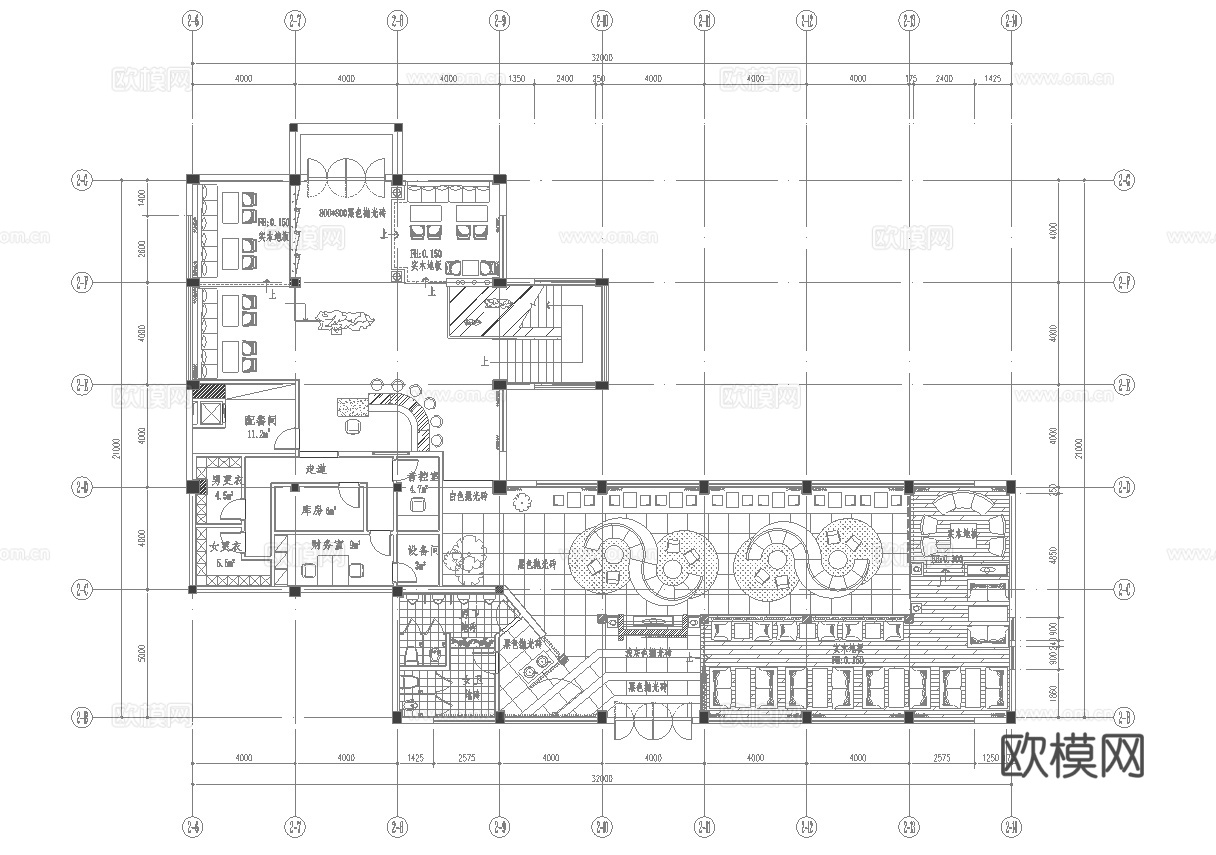
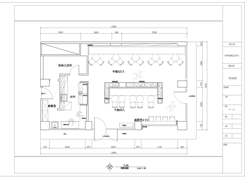
咖啡店 最新全套施工图合集cad施工图
ID:
5215575
咖啡店 最新全套施工图合集cad施工图 ID-5215575
所需欧币:
86
发布时间:
2025-12-09
下载请使用电脑登录欧模网,建议先收藏
收藏
分享
微笑丶纯属礼貌
关注
为您推荐
最新全套 咖啡店 施工图合集cad施工图
最新全套 咖啡店 施工图合集cad施工图
最新全套 咖啡店 施工图合集cad施工图
最新全套 咖啡店 施工图合集cad施工图
最新全套 咖啡店 施工图合集cad施工图
最新全套 奶茶咖啡店 施工图合集cad施工图
最新全套 星巴克咖啡店 施工图合集cad施工图
最新全套 工业风咖啡店 施工图合集cad施工图
最新全套 茶餐厅 施工图合集cad施工图
最新全套 海鲜餐厅 施工图合集cad施工图
最新全套 主题餐厅 施工图合集cad施工图
最新全套 足浴店 施工图合集cad施工图
最新全套 清吧 施工图合集cad施工图cad施工图
最新全套 面馆 施工图合集cad施工图
最新全套 音乐餐厅 施工图合集cad施工图
最新全套海鲜餐厅 施工图合集cad施工图
最新全套 茶楼 施工图合集cad施工图
KFC肯德基 最新全套施工图合集cad施工图
最新全套 音乐餐厅 施工图合集cad施工图
最新全套 足浴店 施工图合集cad施工图
点击加载更多
分享到
复制链接
保存海报
取消
请选择收藏夹
+新增收藏夹
新增收藏夹
取消
确认
退出查看