模型详情
1/8
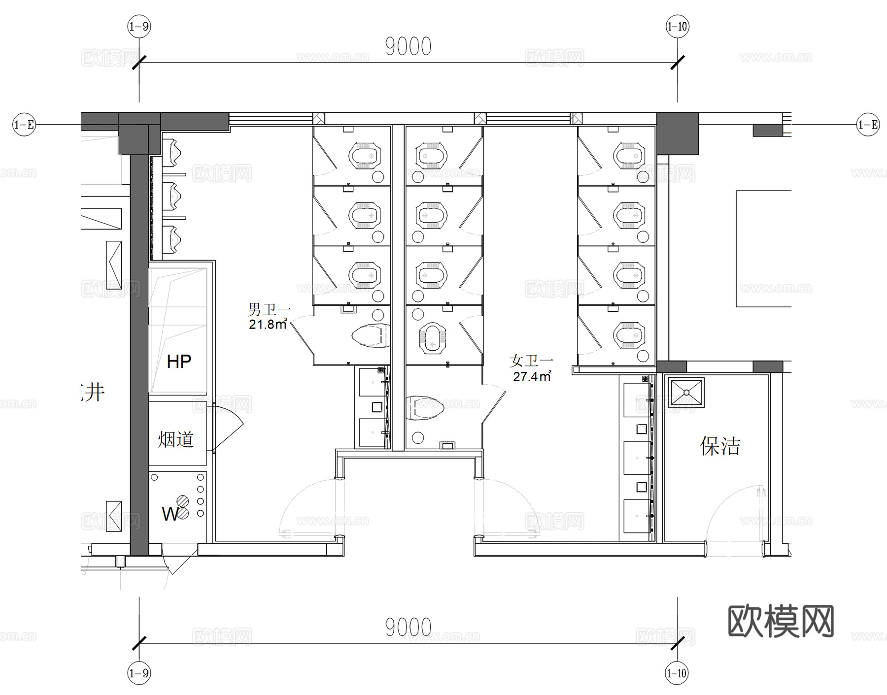
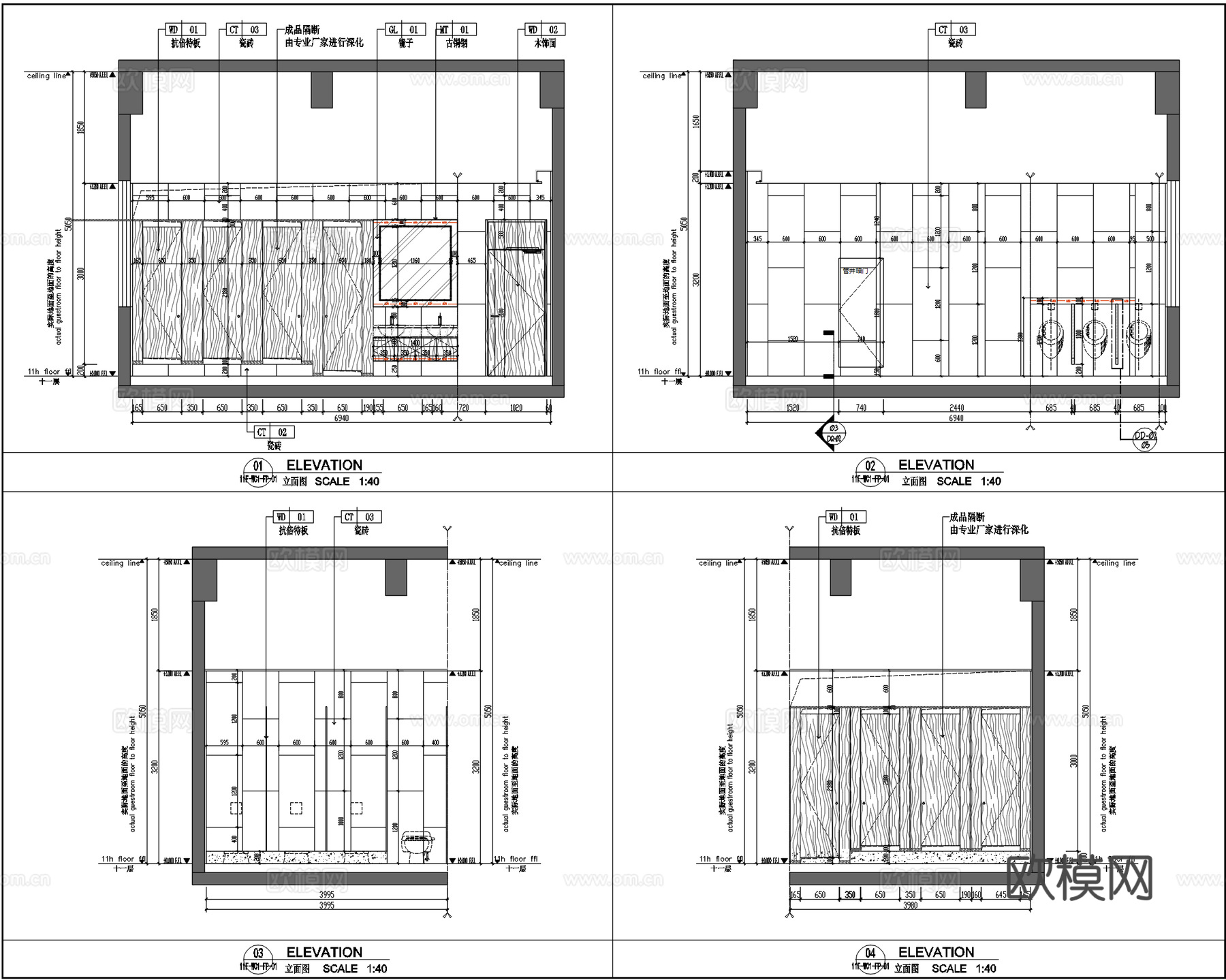
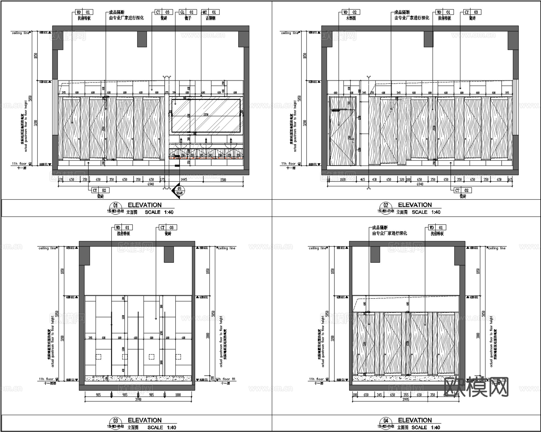
工装公共卫生间施工图,办公室卫生间,办公楼卫生间,商场卫生间cad施工图
ID:
5216883
工装公共卫生间施工图,办公室卫生间,办公楼卫生间,商场卫生间cad施工图 ID-5216883
所需欧币:
56
发布时间:
2025-12-11
下载请使用电脑登录欧模网,建议先收藏
收藏
分享
室内设计大哥大
关注
为您推荐
公共卫生间木隔断节点cad施工图cad施工图
卫生间图块CAD图库cad施工图
无障碍卫生间cad施工图
多种卫生间洁具cad施工图
卫生间立面图cad施工图
卫浴节点 卫生间墙面节点 卫生间平立面图 卫生间布局cad施工图
卫生间平面图 卫生间立面图 卫浴布局 卫生间节点cad施工图
公寓卫生间平面立面图cad施工图cad施工图
卫生间立面图 墙面节点 卫生间平面布局 卫浴节点cad施工图
现代卫生间 卫生间立面图 墙面布局图 墙面节点cad施工图
深圳城市广场五层商场室内工装CAD施工图cad施工图
卫生间墙面 石材墙面 墙面节点cad施工图
客厅、餐厅、卧室、厨房、卫生间、装饰、植物cad施工图
卫生间墙面 石材墙面 墙面节点cad施工图
主卧干湿分离卫生间室内家装 CADcad施工图
洗手台节点 洗手池洗手盆 卫生间节点 CAD施工图cad施工图
卫生间台盆 卫浴柜体 镜子 卫浴节点cad施工图cad施工图
2026年最新厨房卫浴卫生间洁具设施CAD图块图库cad施工图
中融碧玉蓝天办公楼总裁会所室内工装CAD施工图cad施工图
工装商业综合CAD图库cad施工图
点击加载更多
分享到
复制链接
保存海报
取消
请选择收藏夹
+新增收藏夹
新增收藏夹
取消
确认
退出查看