模型详情
1/7
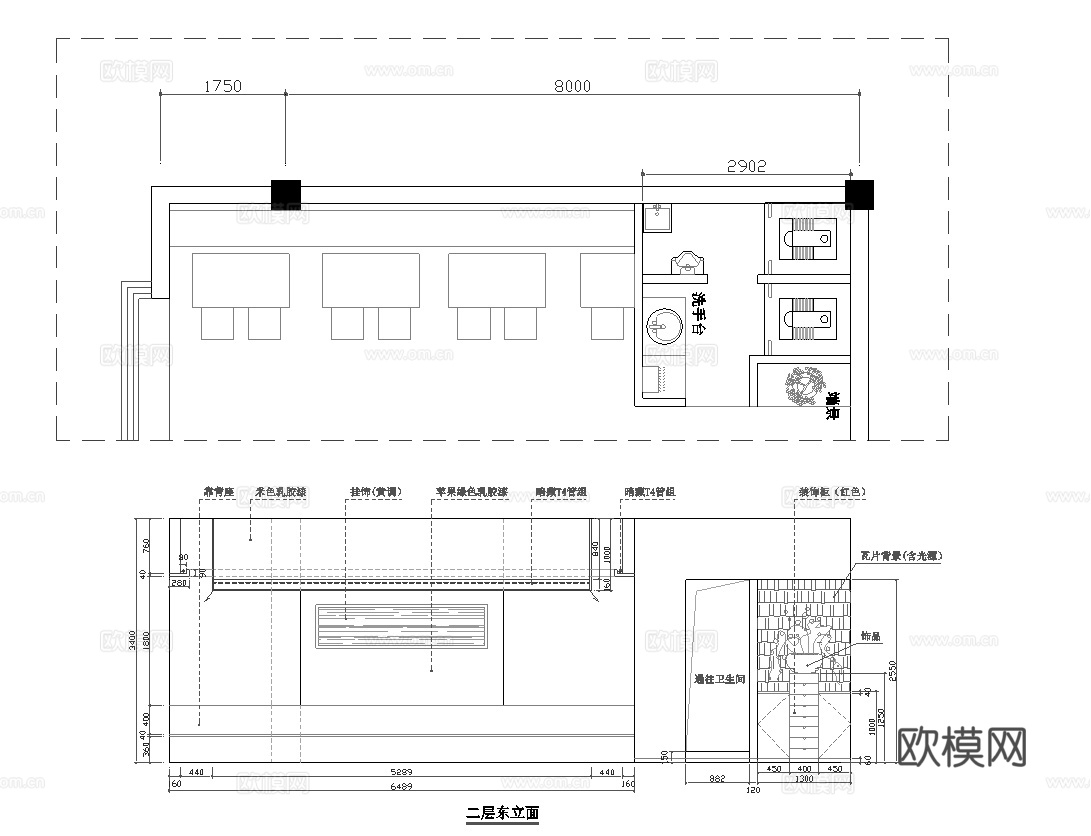
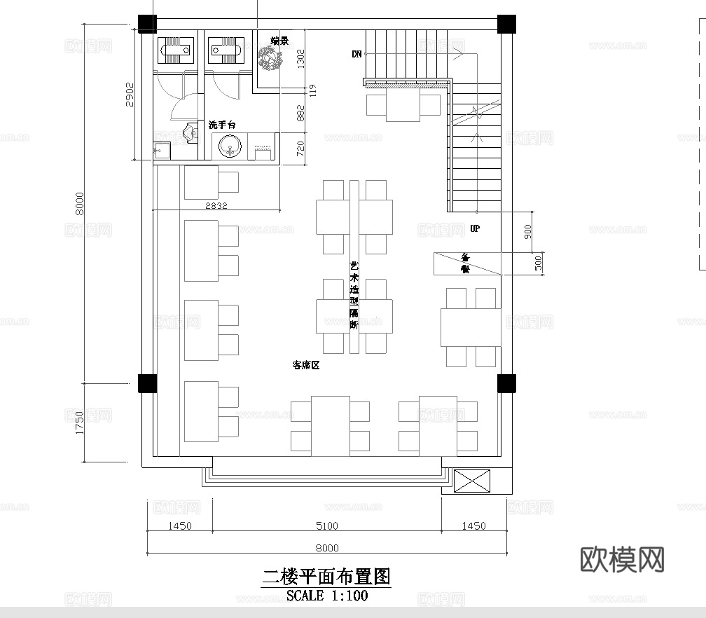
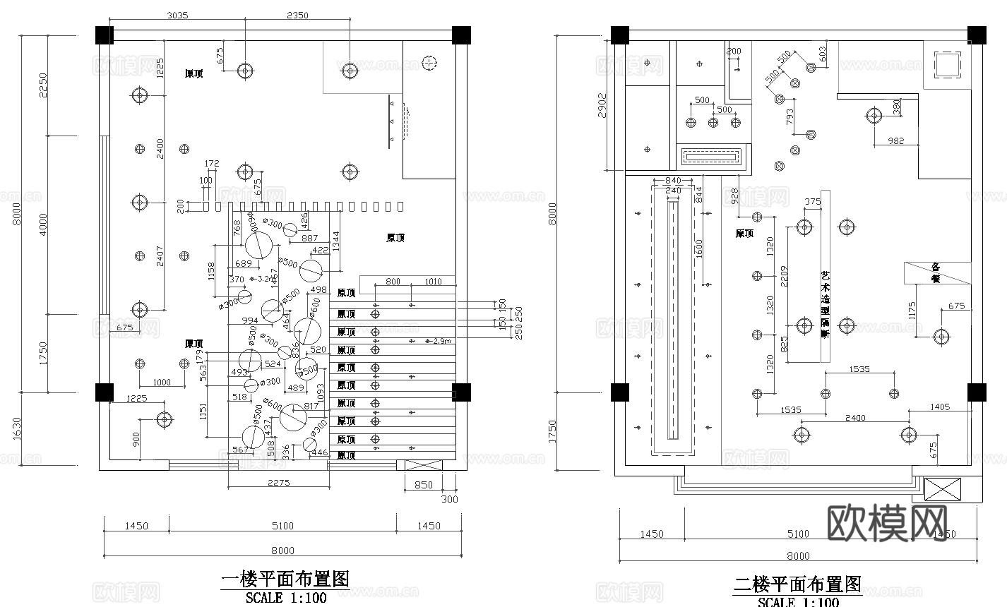
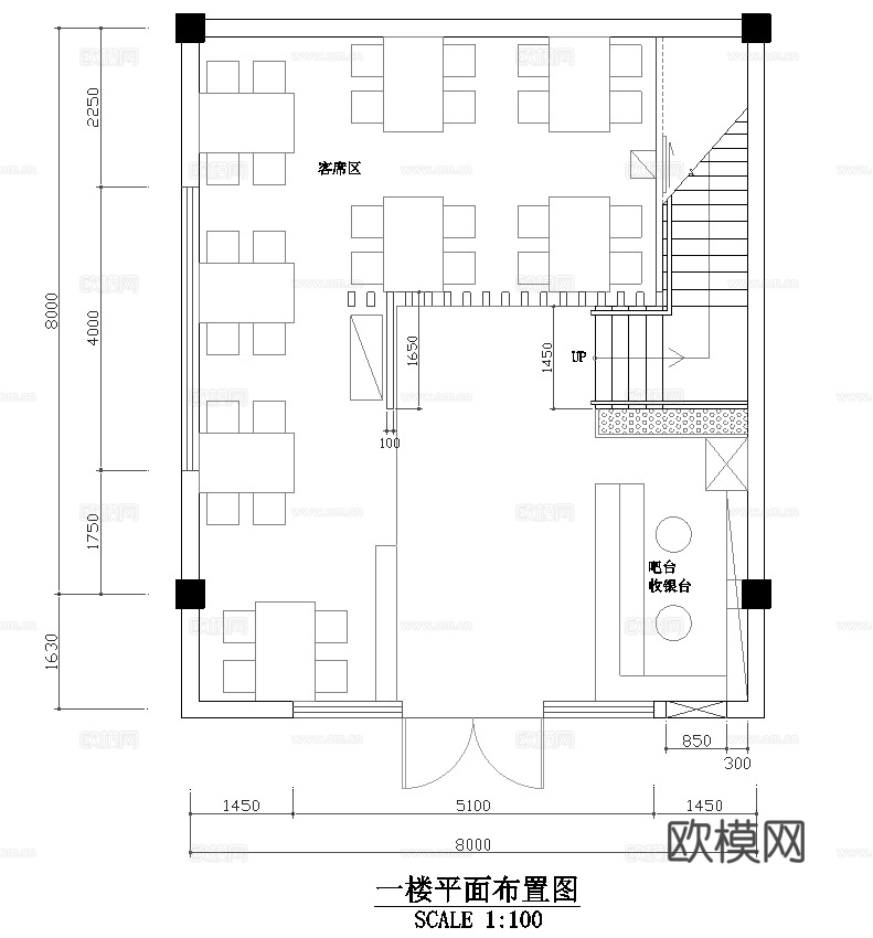
两层快餐厅 最新全套施工图合集cad施工图
ID:
5234115
两层快餐厅 最新全套施工图合集cad施工图 ID-5234115
所需欧币:
86
发布时间:
2025-12-16
下载请使用电脑登录欧模网,建议先收藏
收藏
分享
微笑丶纯属礼貌
关注
为您推荐
最新全套 快餐厅 施工图合集cad施工图
最新全套 快餐厅 中餐厅 施工图合集cad施工图
两层茶楼会所 最新全套施工图合集cad施工图
两层茶楼茶馆 最新全套施工图合集cad施工图
两层茶楼茶馆 最新全套施工图合集cad施工图
两层茶楼茶馆 最新全套施工图合集cad施工图
医院 最新全套施工图合集cad施工图
特色快餐厅 最新全套施工图 效果图合集cad施工图
特色快餐厅 最新全套施工图 效果图合集cad施工图
特色快餐厅 最新全套施工图 效果图合集cad施工图
特色快餐厅 最新全套施工图 效果图合集cad施工图
医院 最新全套施工图合集cad施工图
医院 最新全套施工图合集cad施工图
医院 最新全套施工图合集cad施工图
医院 最新全套施工图合集cad施工图
最新全套 740平两层中餐厅 施工图合集cad施工图
最新全套 茶餐厅 施工图合集cad施工图
韩式快餐厅 最新全套施工图 效果图合集cad施工图
最新全套 清吧 施工图合集cad施工图cad施工图
食堂 餐厅 最新全套施工图合集cad施工图
点击加载更多
分享到
复制链接
保存海报
取消
请选择收藏夹
+新增收藏夹
新增收藏夹
取消
确认
退出查看