模型详情
1/2
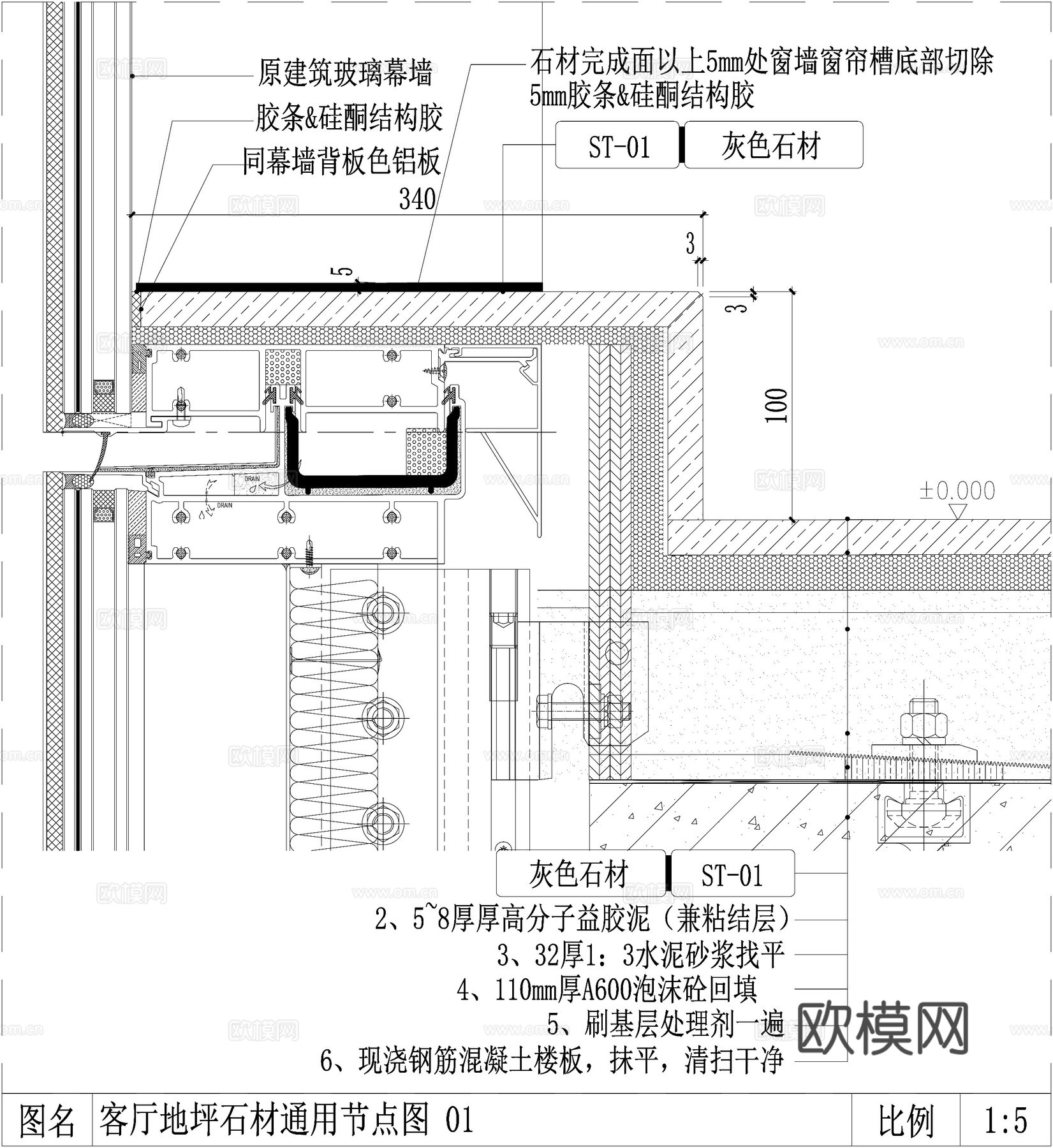
石材与窗台节点 地面节 地坪石材通用节点 客厅地坪节点cad施工图
ID:
5283989
石材与窗台节点 地面节 地坪石材通用节点 客厅地坪节点cad施工图 ID-5283989
所需欧币:
36
发布时间:
2025-12-29
下载请使用电脑登录欧模网,建议先收藏
收藏
分享
妮子1973
关注
为您推荐
玻璃地坪节点cad施工图
地毯节点 满铺地毯地坪节点cad施工图
地毯节点 块毯地坪cad施工图
楼梯踏步节点 木地板地面节点 沐浴房地坪 大理石地面节点cad施工图
架空地板地坪节点cad施工图cad施工图
各材质室内地面地坪节点大样详图CAD施工图cad施工图
塑木地板 地面节点 下沉庭院地坪 大理石地面铺装cad施工图
石材踏步节点cad施工图
排水沟节点 地坪排水导沟 CAD施工图cad施工图
排水沟地漏地坪地面墙面轻钢龙骨干挂石材壁纸详图节点CAD素材cad施工图
卫生间地面石材地漏节点cad施工图
地面常用做法石材地坪塑胶地板大理石地毯木地板收口剖面详图节点cad施工图
干挂石材节点cad施工图
隐形地漏(石材)节点cad施工图
干挂石材节点cad施工图
室内地坪地面节点大样详图CAD施工图集+配套示意图 43套cad施工图
石材暗门节点cad施工图
干区地漏通用节点图cad施工图
地台踏步节点 地台踏步平面 石材门槛石 地面节点cad施工图
排水沟节点 浴厕地坪导水沟 CAD施工图cad施工图
点击加载更多
分享到
复制链接
保存海报
取消
请选择收藏夹
+新增收藏夹
新增收藏夹
取消
确认
退出查看