模型详情
1/8
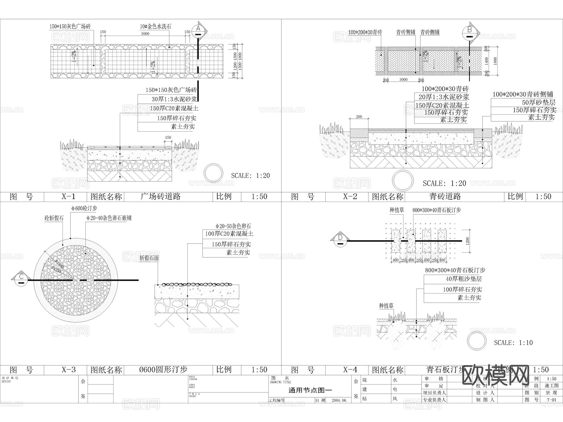
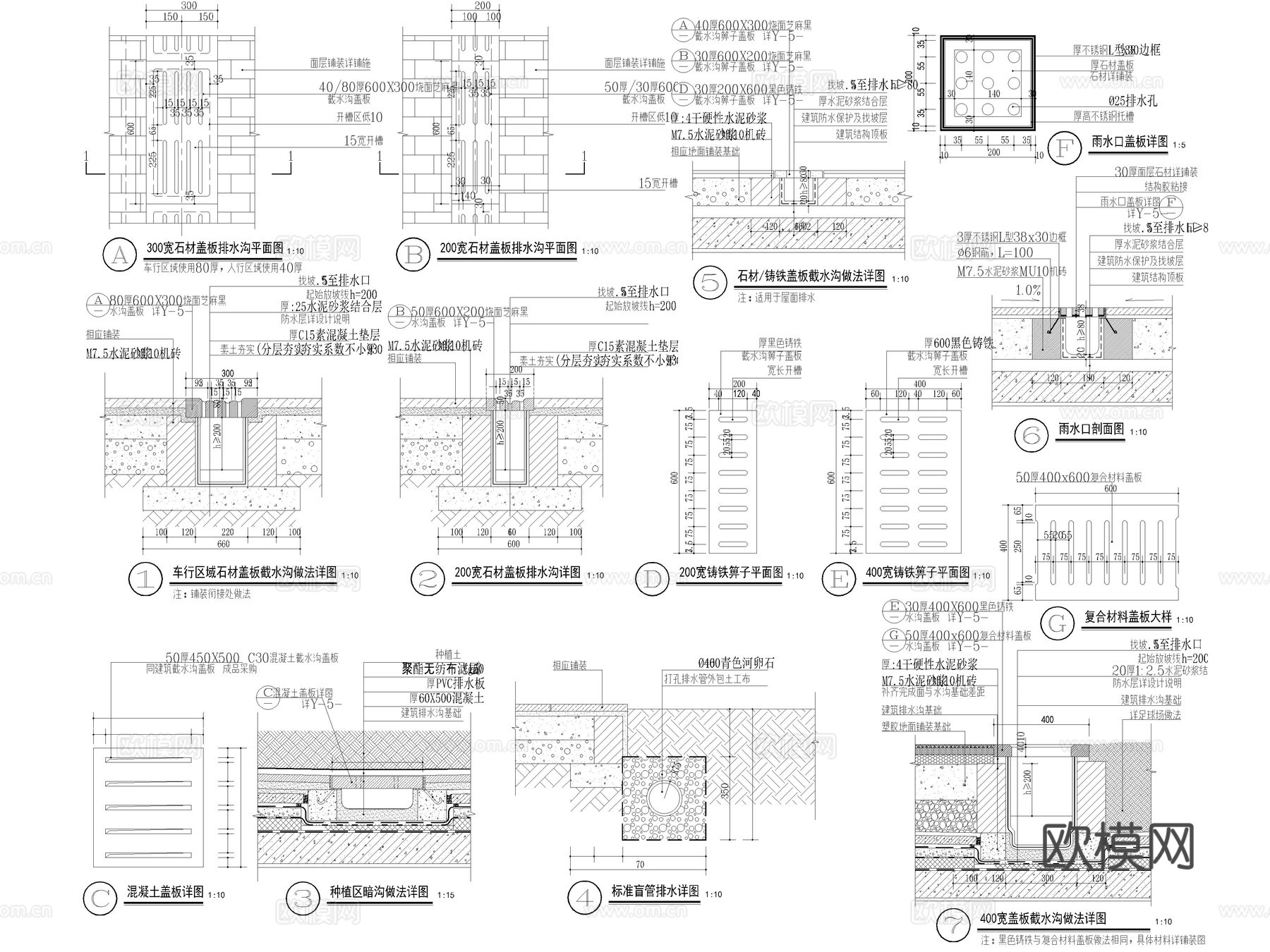
35套景观园林道路地面铺装标准做法节点详图CAD施工图cad施工图
ID:
5291980
35套景观园林道路地面铺装标准做法节点详图CAD施工图cad施工图 ID-5291980
所需欧币:
86
发布时间:
2025-12-31
下载请使用电脑登录欧模网,建议先收藏
收藏
分享
雅俗共赏
关注
为您推荐
景观道路铺装地面工艺做法节点大样详图CAD施工图cad施工图
景观道路铺装木平台标准节点大样详图CAD施工图cad施工图
景观道路铺装节点大样详图CAD施工图cad施工图
93款景观地面园路道路铺装样式做法详图CAD施工图cad施工图
景观园路道路铺装节点CAD施工图cad施工图
瓦片分隔节点景观地面铺装收边交接详图CAD施工图cad施工图
园林景观铺装大样详图CAD施工图集 45套cad施工图
青瓦砾石铺装景观节点详图CAD施工图cad施工图
青瓦铺装收边交接景观节点详图CAD施工图cad施工图cad施工图
铺装通用节点大样详图CAD施工图cad施工图
瓦片立铺收边做法景观节点CAD施工图cad施工图
道路广场园路铺装铺地铺砖地面景观CAD施工详图集 60套cad施工图
室内地面收口标准节点大样详图CAD施工图cad施工图
铺装通用做法花池挡墙节点CAD施工图cad施工图
景观沙池汀步铺装节点大样CAD施工详图cad施工图
天花吊顶反支撑做法节点详图CAD施工图cad施工图
道路景观绿化CAD施工图详图集cad施工图
砾石地面铺装收边节点CAD施工图cad施工图
2026年最新道路铺装地面铺装地面拼花CAD图库cad施工图
透水沥青铺装做法详图cad施工图
点击加载更多
分享到
复制链接
保存海报
取消
请选择收藏夹
+新增收藏夹
新增收藏夹
取消
确认
退出查看