模型详情
1/4
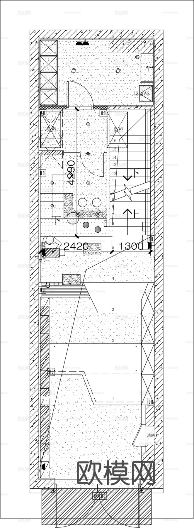
室内猫狗店装修设计方案施工图平面布置图cad施工图
ID:
5300377
室内猫狗店装修设计方案施工图平面布置图cad施工图 ID-5300377
所需欧币:
66
发布时间:
2026-01-05
下载请使用电脑登录欧模网,建议先收藏
收藏
分享
羅文華
关注
为您推荐
室内猫狗店装修设计方案施工图平面布置图cad施工图
室内猫狗店装修设计方案施工图平面布置图cad施工图cad施工图
酒店平面布置图室内装饰CAD施工图cad施工图
餐厅厨房室内工装平面布置图CAD施工图cad施工图
食堂CAD平面布置图cad施工图
现代体育馆室内平面装修CAD图集cad施工图
无印良品平面布置图cad施工图
男装店平面布置图设计方案cad施工图
影音室平面布置图cad施工图cad施工图
花店平面布置图CAD施工图cad施工图
花店平面布置图CAD施工图cad施工图
最新猫咖馆平面施工图设计cad施工图
花店平面布置图CAD施工图cad施工图
休闲会所平面布置图cad施工图
猫咖馆 最新平面施工图合集cad施工图
健身会所室内平面CAD施工图cad施工图cad施工图
spa美容院平面布置图cad施工图
咖啡厅平面布置图cad施工图
服装店平面布置图cad施工图
室内平面优化户型家具平面CAD施工图图块图库cad施工图
点击加载更多
分享到
复制链接
保存海报
取消
请选择收藏夹
+新增收藏夹
新增收藏夹
取消
确认
退出查看