模型详情
1/2
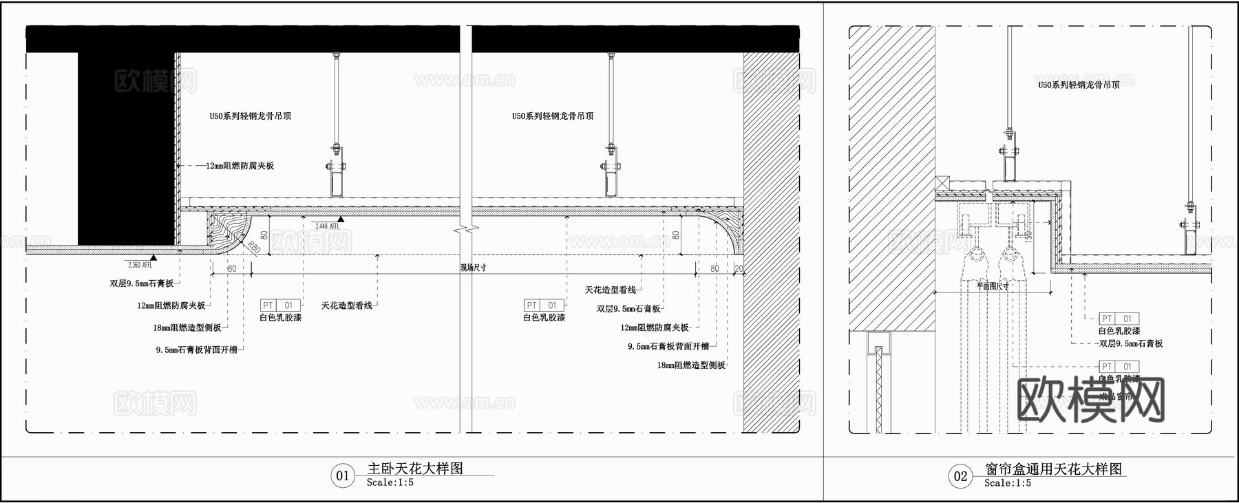
无主灯吊顶 石膏板吊顶 吊顶节点 卧室吊顶 弧形吊顶cad施工图
ID:
5311024
无主灯吊顶 石膏板吊顶 吊顶节点 卧室吊顶 弧形吊顶cad施工图 ID-5311024
所需欧币:
36
发布时间:
2026-01-12
下载请使用电脑登录欧模网,建议先收藏
收藏
分享
妮子1973
关注
为您推荐
吊顶节点 石膏板吊顶 无主灯吊顶 客厅卧室吊顶cad施工图
弧形吊顶 卧室吊顶 石膏板吊顶 吊顶节点cad施工图
石膏板吊顶 天花吊顶 弧形吊顶 现代吊顶 吊顶节点cad施工图
展厅泳池吊顶 蜂窝铝板吊顶 无主灯吊顶 吊顶节点cad施工图
弧形吊顶 天花吊顶 客厅吊顶 吊顶节点 顶面节点cad施工图
暗藏灯带节点 吊顶节点 顶面节点 现代吊顶 弧形吊顶cad施工图
石膏板吊顶 艺术涂料吊顶 别墅客厅吊顶 吊顶节点cad施工图
石膏板吊顶 客厅吊顶 平顶 吊顶节点cad施工图
现代吊顶 顶面节点 吊顶节点 弧形天花板 石膏板吊顶cad施工图
顶面吊顶节点 格栅吊顶 现代吊顶cad施工图
悬浮吊顶 石膏板吊顶 顶面节点 卧室吊顶cad施工图
客厅与天井通道吊顶 石膏板吊顶 顶面节点 吊顶节点cad施工图
工装天花吊顶 无主灯吊顶 办公室吊顶 透光软膜吊顶cad施工图
天花吊顶 异形吊顶 吊顶节点 顶面节点cad施工图
客厅吊顶 悬浮吊顶 顶面节点 石膏板吊顶cad施工图
酒店展厅吊顶 现代吊顶 格栅吊顶 顶面吊顶节点cad施工图
吊顶节点 顶面节点 透光软膜吊顶 工装吊顶cad施工图
悬浮吊顶 吊顶节点 电梯厅吊顶 石膏板吊顶cad施工图
吊顶节点 悬浮吊顶 天花吊顶 木饰面吊顶cad施工图
GRG天花吊顶 侘寂风吊顶 艺术涂料吊顶 吊顶节点cad施工图
点击加载更多
分享到
复制链接
保存海报
取消
请选择收藏夹
+新增收藏夹
新增收藏夹
取消
确认
退出查看