模型详情
1/8
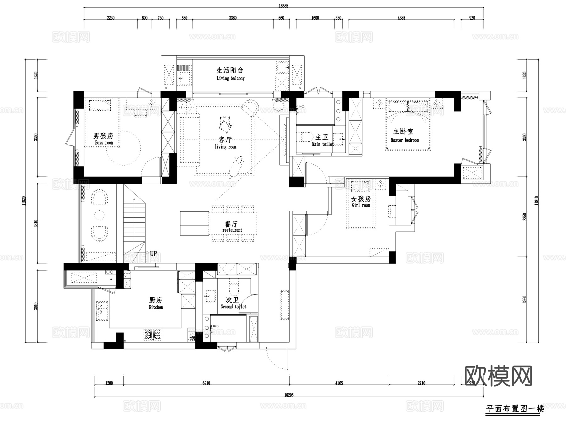
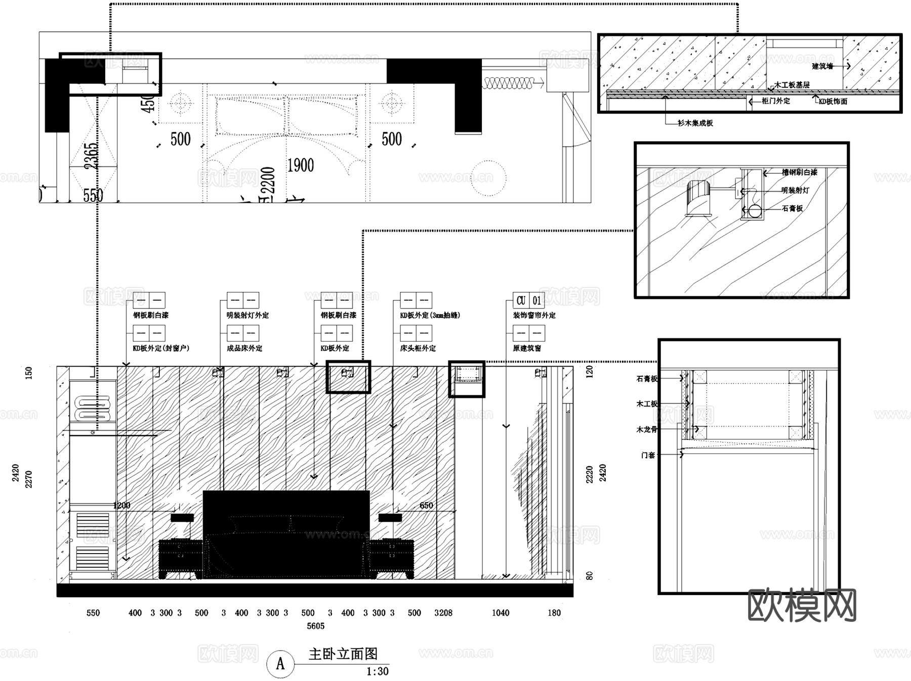
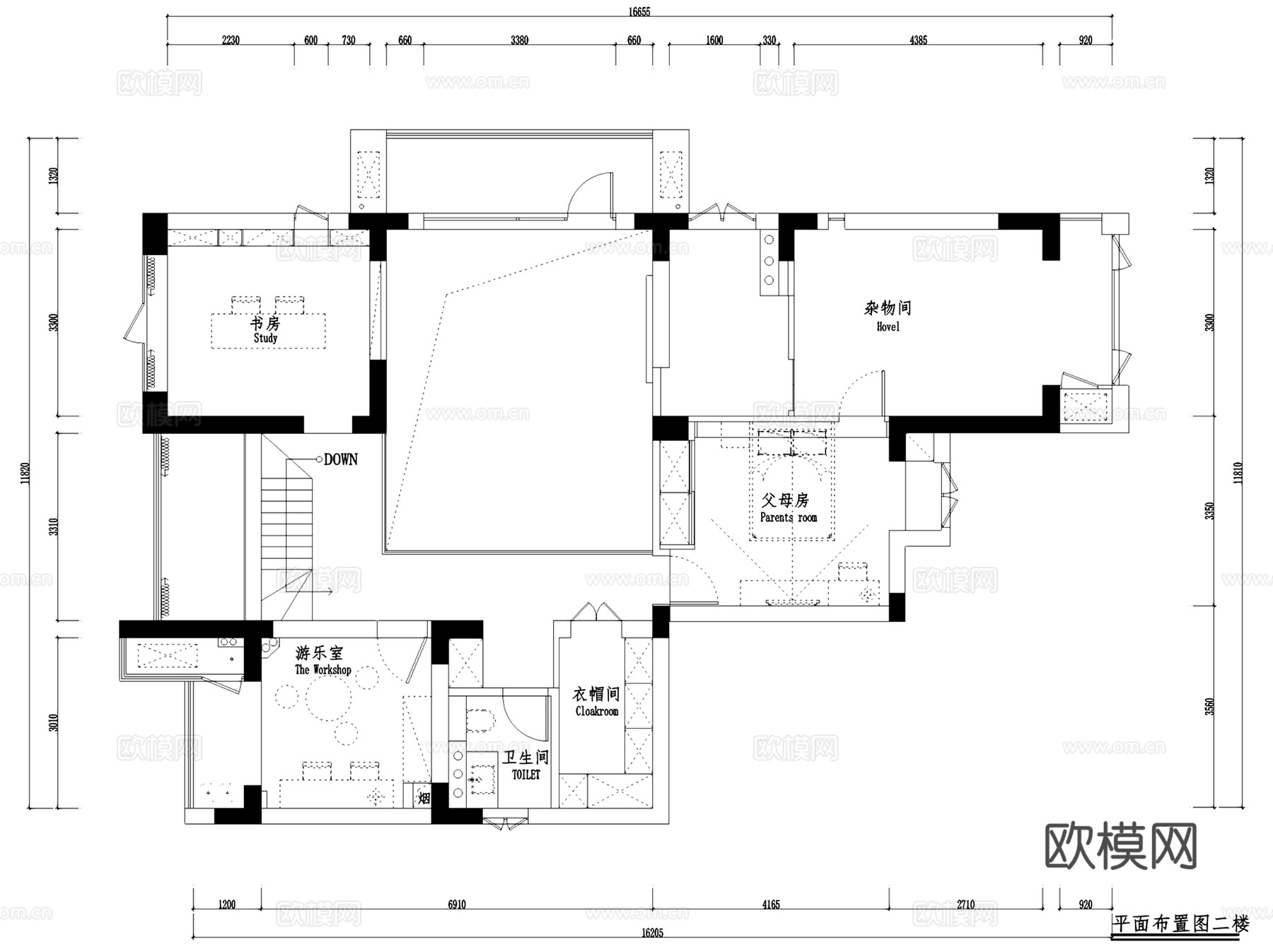
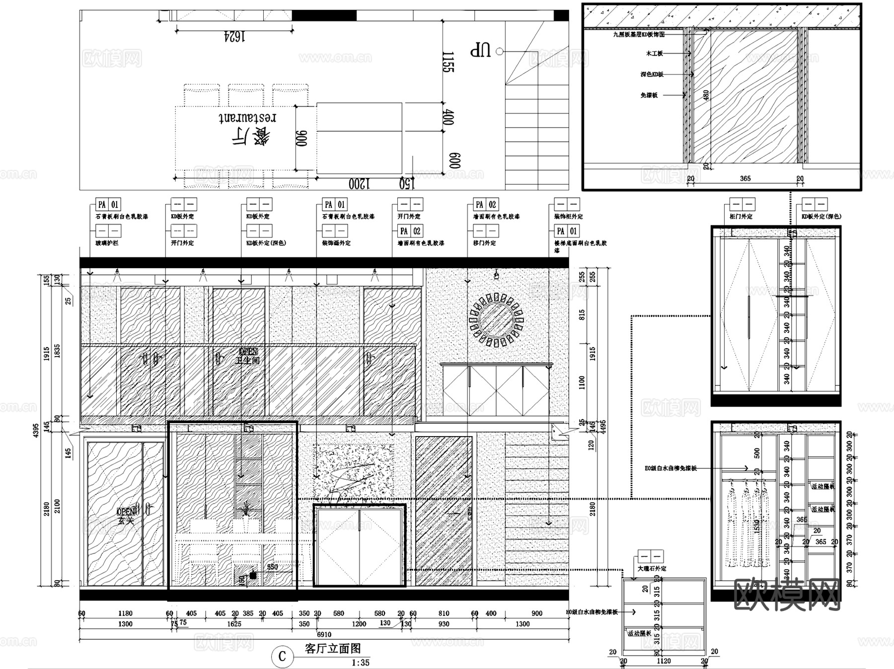
杭州风雅钱塘二层别墅室内家装CAD施工图整套cad施工图
ID:
5337383
杭州风雅钱塘二层别墅室内家装CAD施工图整套cad施工图 ID-5337383
所需欧币:
36
发布时间:
2026-01-26
下载请使用电脑登录欧模网,建议先收藏
收藏
分享
皮肤干燥
关注
为您推荐
深圳京基长岭二层别墅样板间室内家装CAD施工图整套cad施工图
松潭村二层别墅室内家装CAD施工图cad施工图
山东森蓝湖二层别墅奶油风室内家装CAD施工图整套+3Dmaxcad施工图
苏州万邦圆融莲花堤D19二层别墅室内家装CAD施工图整套cad施工图
二层别墅带地下室室内家装平面CAD施工图cad施工图
杭州现代新湖果岭2-3101复式挑空室内家装CAD施工图整套cad施工图
碧桂园欧式都市古堡二层别墅复式挑空室内家装CAD施工图cad施工图
华发世纪城中式二层别墅复式中空挑空室内家装CAD施工图cad施工图
常州昊胜遥观戚公馆别墅豪宅室内家装CAD施工图整套cad施工图
锦绣原著现代极简室内家装CAD施工图整套+SU模型cad施工图
高尔夫球场A型二层别墅室内家装CAD施工图cad施工图
御澜山4-4-101二层别墅室内家装CAD施工图cad施工图
欧式二层幼儿园建筑CAD施工图整套cad施工图
二层别墅建筑CAD施工图cad施工图
三层别墅室内家装CAD施工图cad施工图
别墅室内家装平面系统图CAD施工图cad施工图
新中式金辉城三层联排别墅复式挑空室内家装CAD施工图整套cad施工图
华韵城市海岸现代极简室内家装CAD施工图整套+SU模型cad施工图
二层独立别墅建筑平面CAD施工图cad施工图
学生公寓奶油风室内家装CAD施工图整套+3Dmax模型cad施工图
点击加载更多
分享到
复制链接
保存海报
取消
请选择收藏夹
+新增收藏夹
新增收藏夹
取消
确认
退出查看