模型详情
1/8
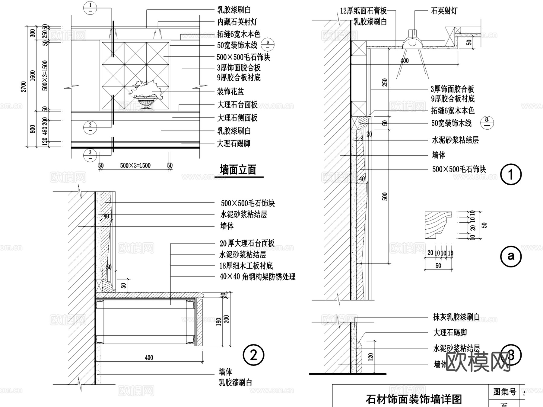
室内装修标准设计节点大样详图CAD施工图集cad施工图
ID:
5337446
室内装修标准设计节点大样详图CAD施工图集cad施工图 ID-5337446
所需欧币:
36
发布时间:
2026-01-26
下载请使用电脑登录欧模网,建议先收藏
收藏
分享
皮肤干燥
关注
为您推荐
室内家装节点大样详图CAD施工图集cad施工图
酒店装修设计室内CAD施工图集cad施工图
室内地面收口标准节点大样详图CAD施工图cad施工图
门工艺节点大样CAD施工详图集cad施工图
墙面工艺节点大样CAD施工详图集cad施工图
楼梯节点大样详图CAD施工图集cad施工图
室内壁炉悬浮柜火焰节点大样详图CAD施工图集cad施工图
吊顶工艺做法节点大样CAD施工详图集cad施工图
地平做法工艺节点大样CAD施工详图集cad施工图
欧式门窗节点大样详图CAD施工图集cad施工图
办公空间设计标准家具图块图库CAD施工图集cad施工图
室内外栏杆扶手护栏节点大样详图CAD施工图集 64套cad施工图
室内多种门节点大样CAD施工详图集+配套示意图cad施工图
CAD图框图表标准样式施工图集cad施工图
干挂石材节点大样CAD施工详图集cad施工图
钢梯及平台栏杆节点大样CAD施工详图集cad施工图
室内天花吊顶顶棚节点大样详图CAD施工图集 22套cad施工图
室内天花吊顶顶棚节点大样详图CAD施工图集 90套cad施工图
厨房餐厅厨柜设计室内装饰节点大样CAD施工详图集 250套cad施工图
景观雾喷CAD施工详图集cad施工图
点击加载更多
分享到
复制链接
保存海报
取消
请选择收藏夹
+新增收藏夹
新增收藏夹
取消
确认
退出查看