模型详情
1/8
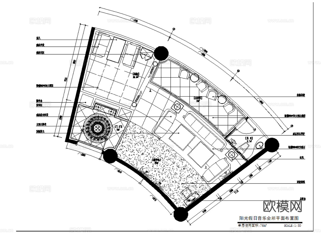
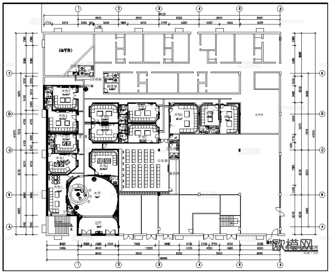
5套现代商务KTV室内CAD施工图效果图cad施工图
ID:
5340883
5套现代商务KTV室内CAD施工图效果图cad施工图 ID-5340883
所需欧币:
86
发布时间:
2026-01-26
下载请使用电脑登录欧模网,建议先收藏
收藏
分享
大可
关注
为您推荐
5套商务KTV室内CAD施工图效果图cad施工图
欧式福清KTV会所室内工装CAD施工图cad施工图
浅渡娱乐会所KTV室内工装CAD施工图cad施工图
安顺金莎国际KTV室内工装CAD施工图cad施工图
中骏蓝湾半岛会所KTV室内工装CAD施工图cad施工图cad施工图
广州音皇娱乐量贩式KTV室内工装CAD施工图cad施工图
最新7套 酒吧 KTV 施工图 效果图合集cad施工图cad施工图
长乐空港之夜音乐会所KTV室内工装CAD施工图cad施工图
欢乐壹佰卡拉OK厅KTV室内工装CAD施工图cad施工图
琴港演艺不夜城剧场餐饮KTV室内工装CAD施工图cad施工图
11套KTV娱乐空间室内CAD施工图最新整理合集cad施工图
晋城方程9+1酒吧舞厅KTV室内工装CAD施工图cad施工图
龙岗音派KTV音乐会所室内工装CAD施工图cad施工图
最新10套 酒吧 KTV 施工图 效果图合集cad施工图
最新6套 酒吧 KTV 施工图 效果图合集cad施工图
佛山某KTV会所cad施工图
最新6套 酒吧 KTV 施工图 效果图合集cad施工图
最新6套 酒吧 KTV 施工图 效果图合集cad施工图
最新8套 酒吧 KTV 施工图 效果图合集cad施工图
最新8套 酒吧 KTV 施工图 效果图合集cad施工图
点击加载更多
分享到
复制链接
保存海报
取消
请选择收藏夹
+新增收藏夹
新增收藏夹
取消
确认
退出查看