模型详情
1/8
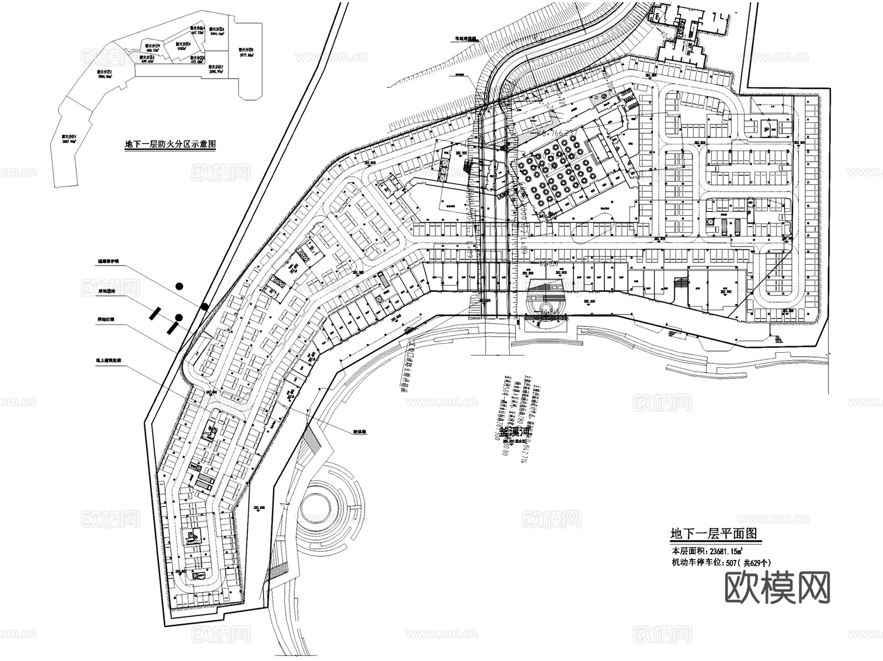
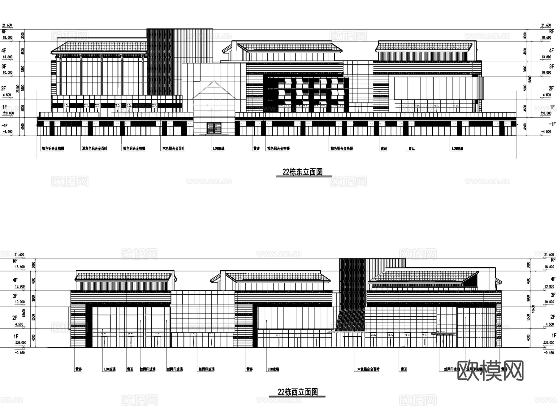
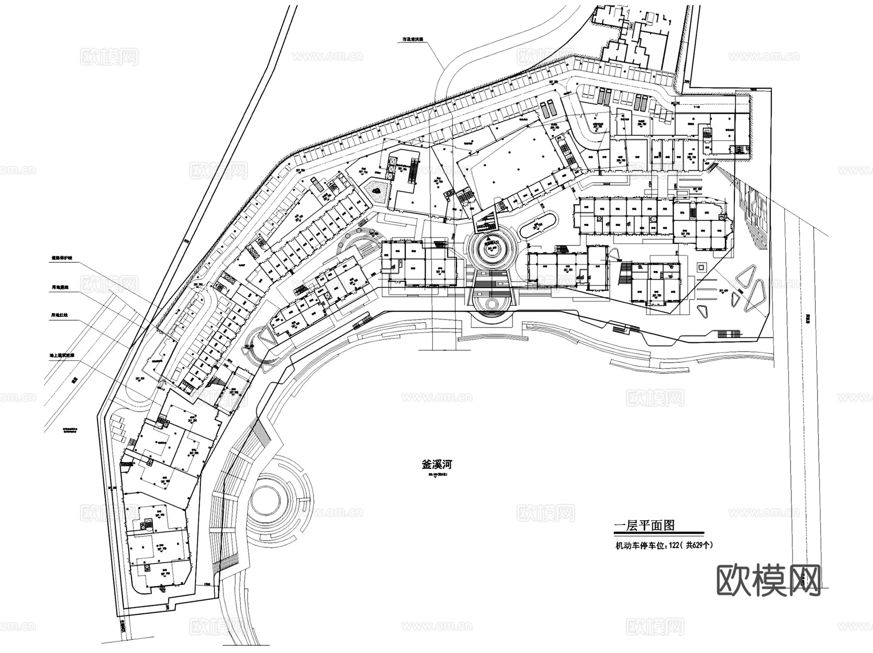
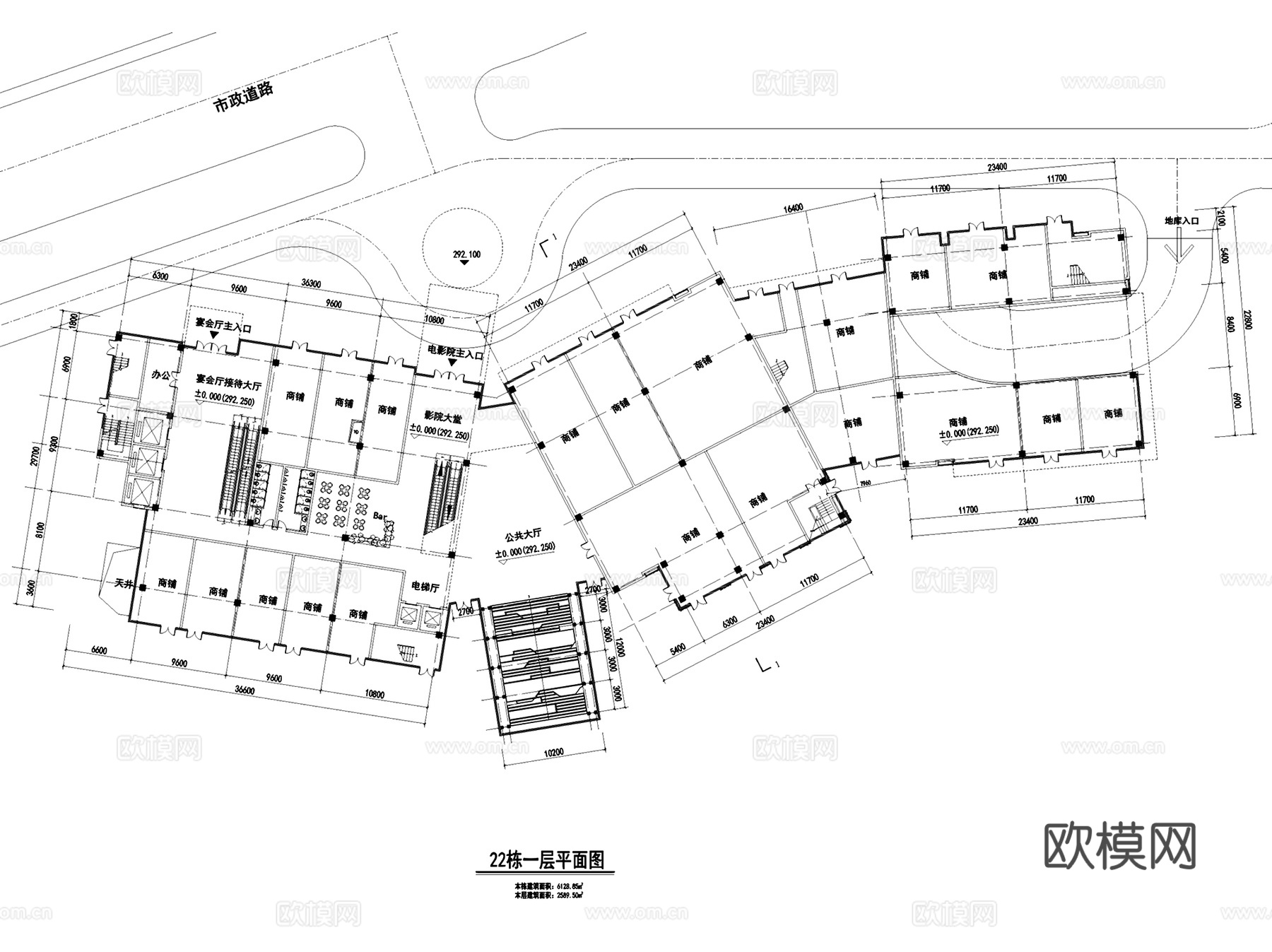
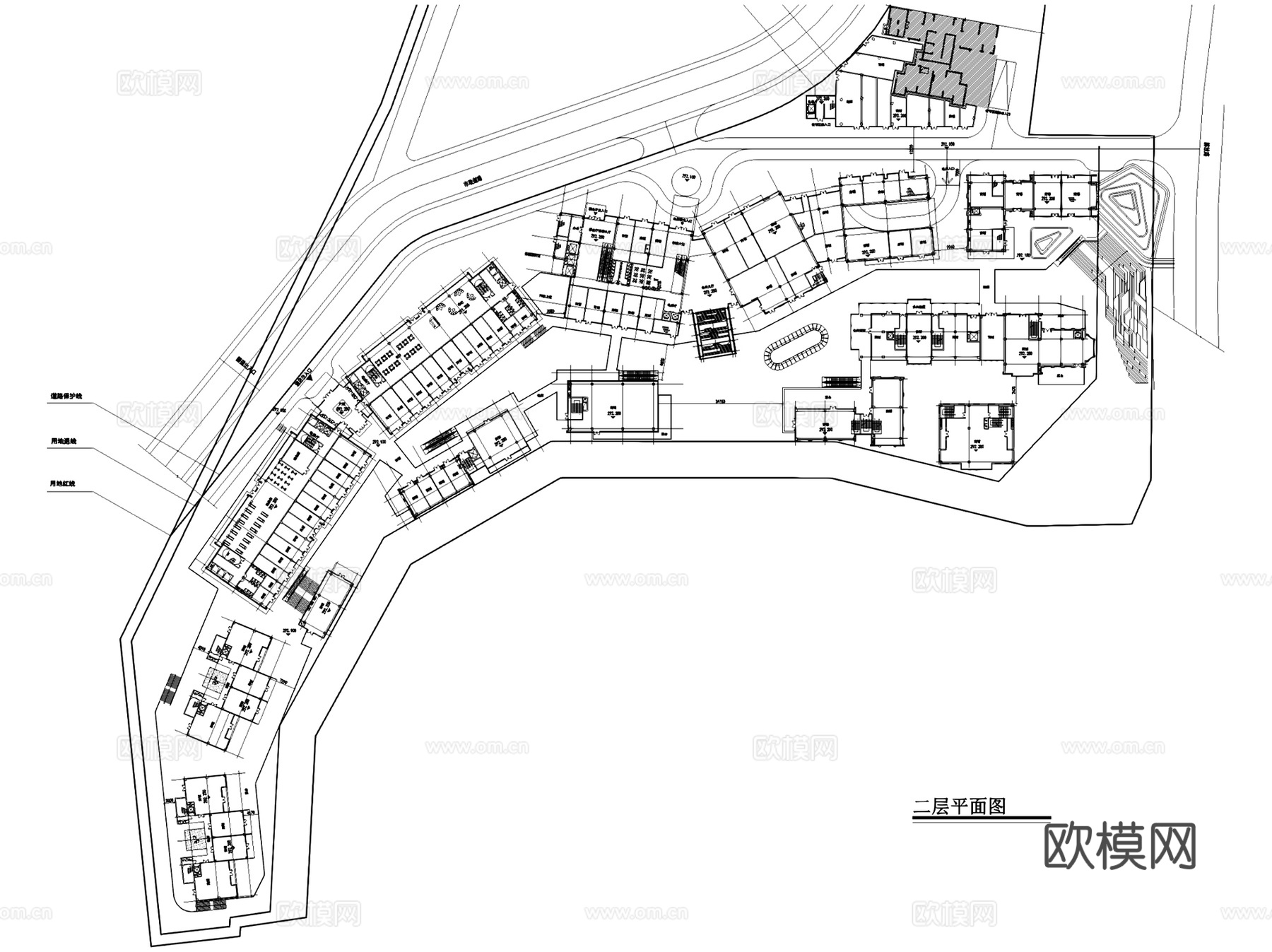
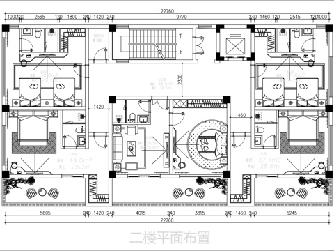
自贡帝泊湾新中式商业街建筑规划CAD施工图整套+文本cad施工图
ID:
5354604
自贡帝泊湾新中式商业街建筑规划CAD施工图整套+文本cad施工图 ID-5354604
所需欧币:
36
发布时间:
2026-01-29
下载请使用电脑登录欧模网,建议先收藏
收藏
分享
皮肤干燥
关注
为您推荐
整套民宿施工图cadcad施工图
韩城古城南片区历史街区风貌改造建筑规划CAD施工图集+文本cad施工图
天津滨海现代美术馆建筑CAD施工图整套cad施工图
南信愉珑湾2栋2101室内家装CAD施工图整套cad施工图
INVSON应尚服饰展厅室内工装CAD施工图整套+文本cad施工图
深圳帝豪湾公墅A栋13F中式室内家装CAD施工图cad施工图
民宿建筑总平面规划图cad施工图cad施工图
深圳湾一号T2-29样板房室内家装CAD施工图整套+文本cad施工图
庞口农业机械装备制造交易中心产业规划馆建筑CAD施工图整套cad施工图
苏州博物馆新馆建筑CAD施工图+文本cad施工图
三亚海棠湾四季酒店公寓标准层房型CAD施工图整套cad施工图
黄山城市展示馆展陈装饰室内工装CAD施工图整套+文本cad施工图
长威科技软件园企业展厅室内工装CAD施工图整套+文本cad施工图
浙江华茂艺术教育博物馆建筑室内CAD施工图整套cad施工图cad施工图
整套民宿平面图cadcad施工图
整套民宿平面图cadcad施工图
整套民宿平面图cadcad施工图
三亚海棠湾四季酒店别墅A型室内家装CAD施工图整套cad施工图
深圳湾壹号广场T5-6C户型室内家装CAD施工图整套cad施工图
10套高速服务区建筑景观规划CAD施工图cad施工图
点击加载更多
分享到
复制链接
保存海报
取消
请选择收藏夹
+新增收藏夹
新增收藏夹
取消
确认
退出查看