模型详情
1/4
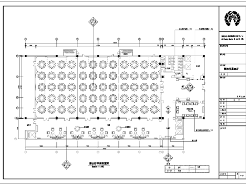
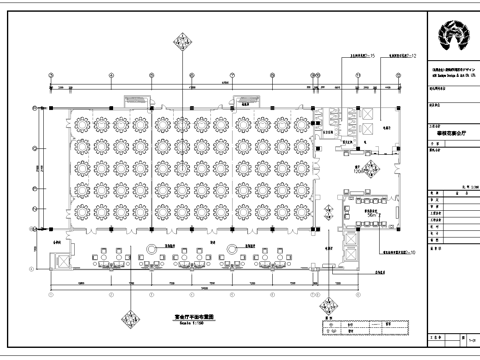
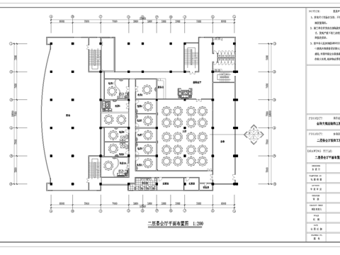
酒店娱乐城平顶面舞池舞厅舞台游泳池KTV饭厅棋牌室宴会厅包厢cad施工图
ID:
5354675
酒店娱乐城平顶面舞池舞厅舞台游泳池KTV饭厅棋牌室宴会厅包厢cad施工图 ID-5354675
所需欧币:
16
发布时间:
2026-01-29
下载请使用电脑登录欧模网,建议先收藏
收藏
分享
皮肤干燥
关注
为您推荐
晋城方程9+1酒吧舞厅KTV室内工装CAD施工图cad施工图
酒店平立面建筑CAD施工图集cad施工图
酒店建筑平立剖面CAD施工图集cad施工图
酒店展厅吊顶 现代吊顶 格栅吊顶 顶面吊顶节点cad施工图
酒吧舞厅室内装饰CAD施工图集cad施工图
游泳池CAD施工图cad施工图
酒店大堂 多功能厅 酒店前厅 会议大厅 酒店宴会厅cad施工图cad施工图
200平棋牌室 茶楼 最新平面施工图设计cad施工图cad施工图
宴会厅包厢包间平面图cad施工图
咖啡厅包厢棋牌室室内工装CAD施工图cad施工图
300平棋牌室 茶楼 最新平面施工图设计cad施工图
800平棋牌室 茶楼 最新平面施工图设计cad施工图
600平棋牌室 茶楼 最新平面施工图设计cad施工图
500平棋牌室 茶楼 最新平面施工图设计cad施工图
350平棋牌室 茶楼 最新平面施工图设计cad施工图
800平棋牌室 茶楼 最新平面施工图设计cad施工图
300平棋牌室 茶楼 最新平面施工图设计cad施工图
私人会所平面图 棋牌室 KTV包厢 台球室乒乓球室 CADcad施工图
酒店酒楼宴会厅餐厅平面图cad施工图
墙面与顶面材质相接工艺做法CAD详图集cad施工图
点击加载更多
分享到
复制链接
保存海报
取消
请选择收藏夹
+新增收藏夹
新增收藏夹
取消
确认
退出查看