模型详情
1/2
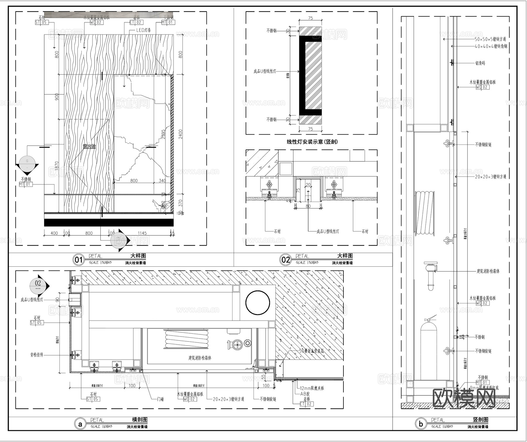
墙面内嵌线性灯 石材墙面 消防栓节点 消防栓背景墙cad施工图
ID:
5360658
墙面内嵌线性灯 石材墙面 消防栓节点 消防栓背景墙cad施工图 ID-5360658
所需欧币:
36
发布时间:
2026-01-31
下载请使用电脑登录欧模网,建议先收藏
收藏
分享
妮子1973
关注
为您推荐
消防栓隐形石材门节点cad施工图
现代墙面 墙面石材铺装 石材墙面 墙面节点cad施工图
扪皮墙面 餐厅背景墙 装饰墙面 墙面节点cad施工图
墙面装饰 墙面节点 石材立体墙面 L型石材墙面cad施工图
墙面涂料做法石材铺设天花消防栓石材暗门节点CAD素材图库cad施工图
墙面节点 现代火炉 壁炉墙体 内嵌层板架cad施工图
消防栓暗藏节点大样图cad施工图
电视背景墙 现代墙面 扪皮墙面 墙面节点cad施工图
墙面节点 墙面凿洞节点 儿童室内墙面装饰cad施工图
墙面节点 卧室墙面 硬包墙面 床头背景墙cad施工图
墙纸饰面墙面 墙面剖面图 墙面节点cad施工图
铝板墙面节点CAD施工图cad施工图
电视墙背景墙面 现代轻奢墙面 古铜金属墙面 墙面节点cad施工图
墙面节点 硬包墙面 背景墙大样图 现代沙发背景墙cad施工图
硬包节点 墙面硬包节点cad施工图
肌理涂料墙面 石材饰面墙面 石膏线条吊顶 墙面节点cad施工图
影视厅墙面节点 影视厅平立面图 墙面布局 墙面节点cad施工图
墙面立面图 现代电视背景墙壁布硬包墙面 墙面节点cad施工图
背景墙立面图 石材背景墙 客厅背景墙 墙面节点cad施工图
铝单板发光墙面节点CAD施工图cad施工图
点击加载更多
分享到
复制链接
保存海报
取消
请选择收藏夹
+新增收藏夹
新增收藏夹
取消
确认
退出查看