模型详情
1/8
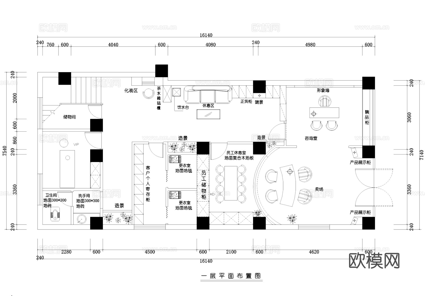
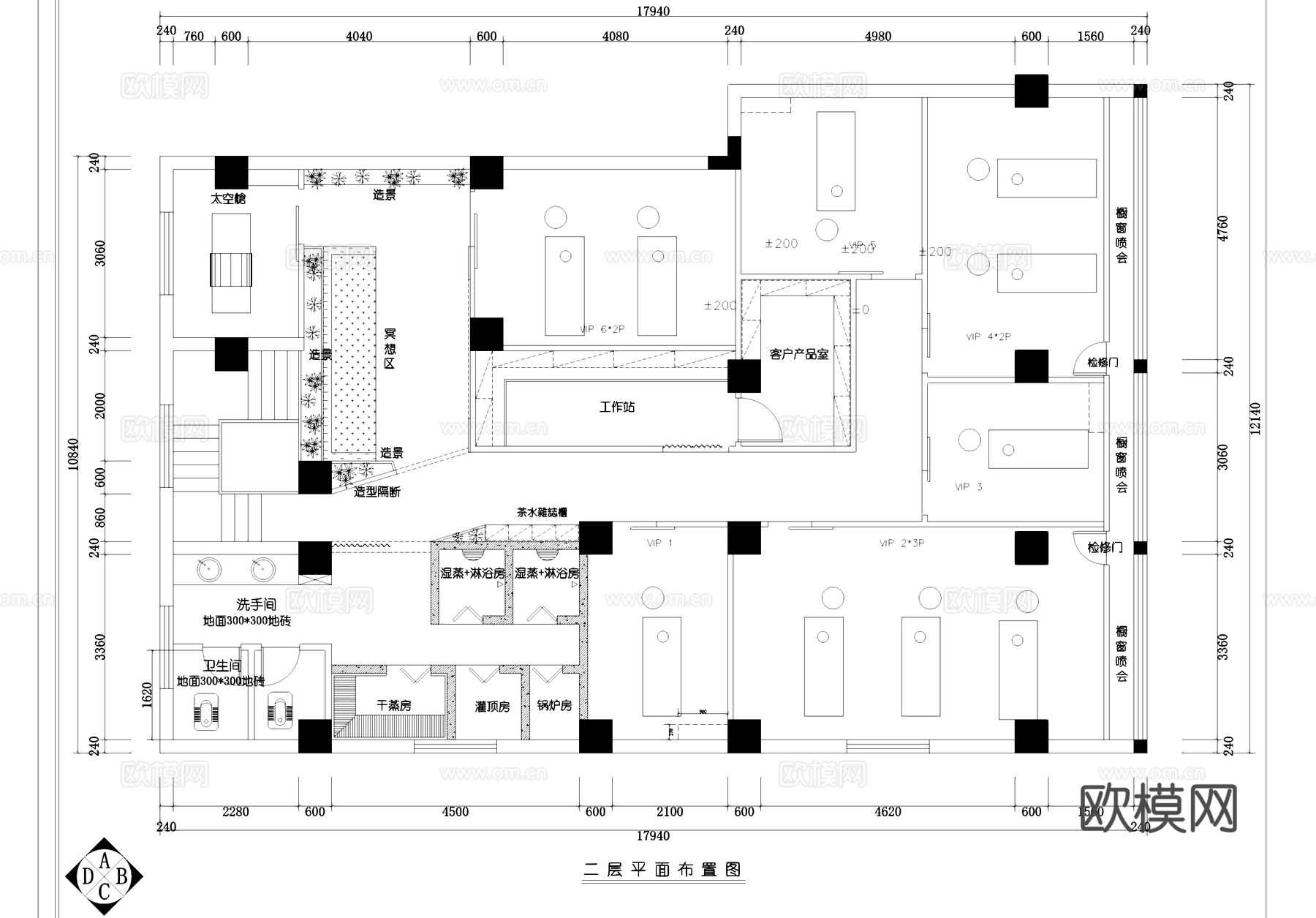
佐登妮丝美容SPA生活馆室内工装CAD施工图cad施工图
ID:
5362517
佐登妮丝美容SPA生活馆室内工装CAD施工图cad施工图 ID-5362517
所需欧币:
16
发布时间:
2026-01-31
下载请使用电脑登录欧模网,建议先收藏
收藏
分享
皮肤干燥
关注
为您推荐
美容美发足疗按摩一丝不苟会所室内工装CAD施工图cad施工图
缘爱小天使母婴生活馆室内工装CAD施工图cad施工图
育婴房奶粉童装母婴生活馆室内工装CAD施工图cad施工图
母婴坊婴童时尚生活馆室内工装CAD施工图cad施工图
南京金地自在中心宠物生活馆室内工装CAD施工图cad施工图
假日酒店高登威桑拿房室内工装CAD施工图cad施工图
小型书吧室内工装CAD施工图cad施工图
美容 SPA 养生会所 最新全套施工图cad施工图
综合工装室内CAD图库cad施工图
室内工装综合CAD图库cad施工图
玉雕文化展厅室内工装CAD施工图cad施工图cad施工图
室内建筑景观工装综合CAD图库cad施工图cad施工图
民宿酒店室内工装CAD施工图cad施工图
西餐厅室内工装CAD施工图cad施工图
民宿酒店室内工装CAD施工图cad施工图
咖啡厅室内工装CAD施工图cad施工图
桑拿休息大厅室内工装CAD施工图cad施工图
现代度假风民宿室内工装CAD施工图cad施工图
茶文化展厅室内工装CAD施工图cad施工图
西餐厅室内工装CAD施工图cad施工图
点击加载更多
分享到
复制链接
保存海报
取消
请选择收藏夹
+新增收藏夹
新增收藏夹
取消
确认
退出查看