模型详情
1/8
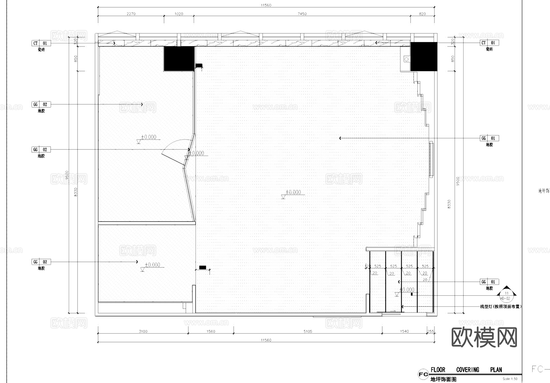
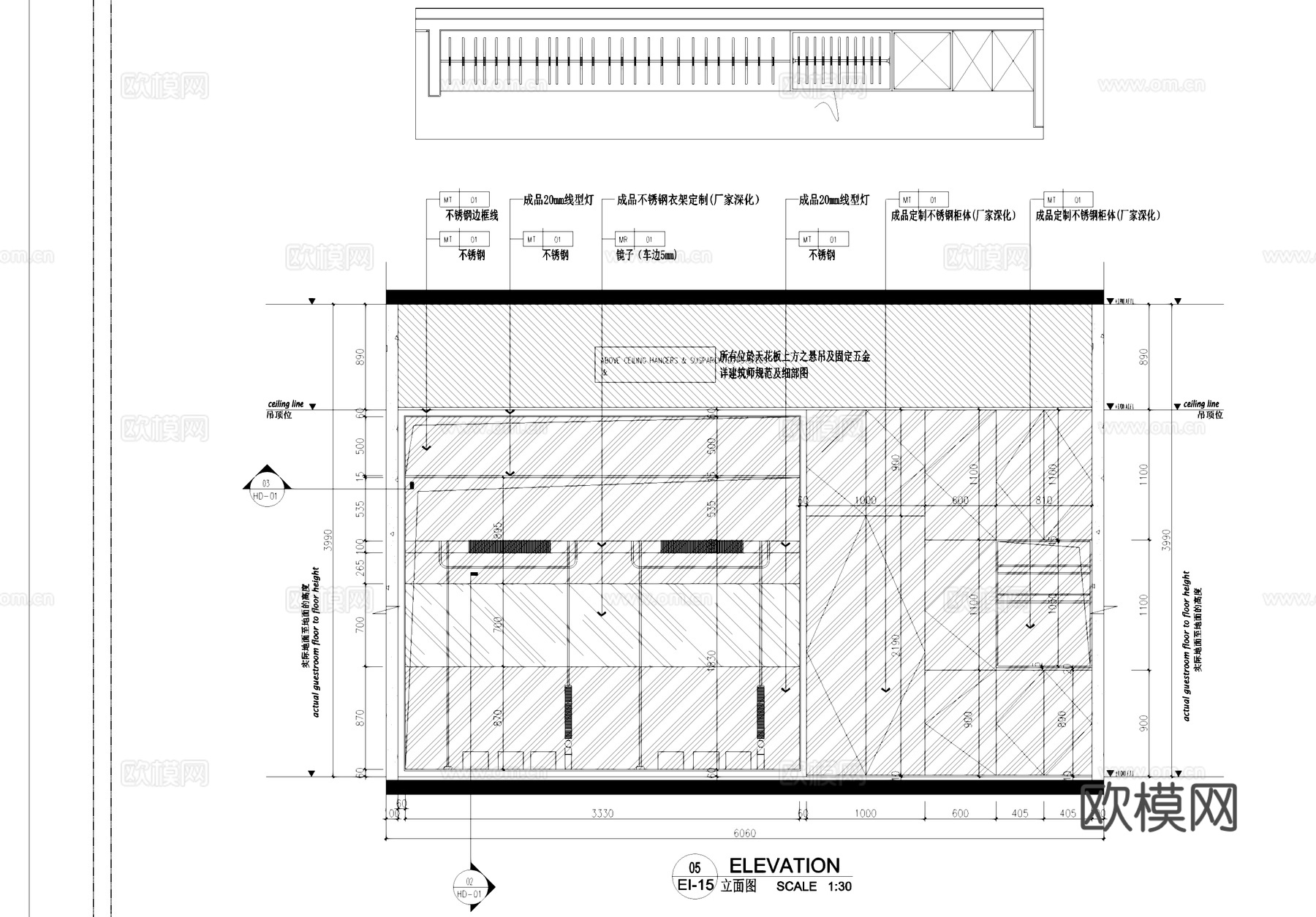
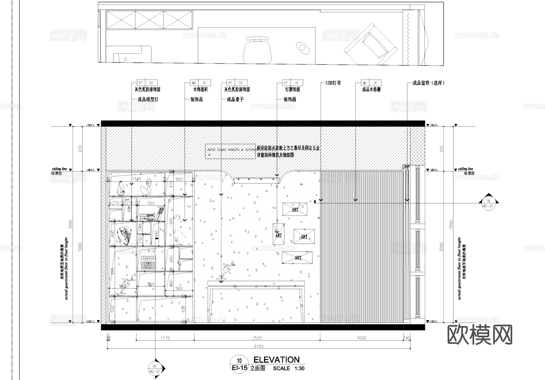
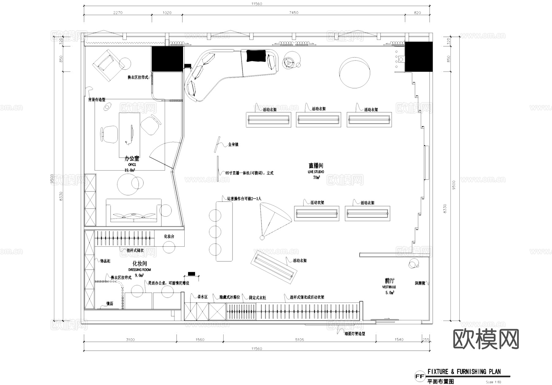
汉京国际16J服装工作室直播间室内工装CAD施工图cad施工图
ID:
5362955
汉京国际16J服装工作室直播间室内工装CAD施工图cad施工图 ID-5362955
所需欧币:
16
发布时间:
2026-02-02
下载请使用电脑登录欧模网,建议先收藏
收藏
分享
皮肤干燥
关注
为您推荐
安顺金莎国际KTV室内工装CAD施工图cad施工图
鞋店服装店室内工装CAD施工图cad施工图
母婴服装奶粉玩具店室内工装CAD施工图cad施工图
小型书吧室内工装CAD施工图cad施工图
综合工装室内CAD图库cad施工图
室内工装综合CAD图库cad施工图
玉雕文化展厅室内工装CAD施工图cad施工图cad施工图
福州名城国际营销中心售楼处室内工装CAD施工图cad施工图
服装店服饰专卖店室内工装CAD施工图集 55套cad施工图
室内建筑景观工装综合CAD图库cad施工图cad施工图
民宿酒店室内工装CAD施工图cad施工图
西餐厅室内工装CAD施工图cad施工图
民宿酒店室内工装CAD施工图cad施工图
幸福一生服装服饰店室内工装CAD施工图cad施工图
茶文化展厅室内工装CAD施工图cad施工图
西餐厅室内工装CAD施工图cad施工图
咖啡厅室内工装CAD施工图cad施工图
桑拿休息大厅室内工装CAD施工图cad施工图
现代度假风民宿室内工装CAD施工图cad施工图
广州南沙餐厅室内工装CAD施工图cad施工图
点击加载更多
分享到
复制链接
保存海报
取消
请选择收藏夹
+新增收藏夹
新增收藏夹
取消
确认
退出查看