模型详情
1/4
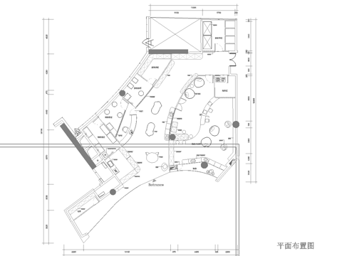
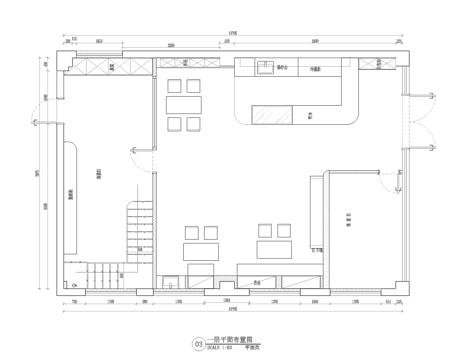
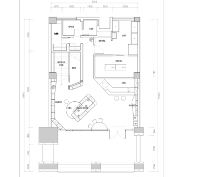
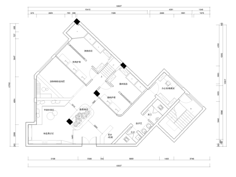
宠物乐园萌宠训练场活动区CAD施工图cad施工图
ID:
5362974
宠物乐园萌宠训练场活动区CAD施工图cad施工图 ID-5362974
所需欧币:
16
发布时间:
2026-02-02
下载请使用电脑登录欧模网,建议先收藏
收藏
分享
皮肤干燥
关注
为您推荐
宠物乐园萌宠训练场亲子乐园平面图CAD施工图集 10套cad施工图
宠物运动训练场地萌宠乐园平面图cad施工图
萌宠乐园宠物运动训练场地平面图cad施工图
萌宠乐园CADcad施工图
萌宠乐园宠物活动场地景观节点CAD施工图cad施工图
宠物运动训练场地 平面图 萌宠乐园 宠物活动娱乐区cad施工图
萌宠乐园 宠物活动娱乐区游乐设施 宠物运动训练场地 平面图cad施工图
宠物乐园攀爬平台跨栏障碍杆萌宠导视牌玻璃钢坐凳CAD施工图cad施工图
萌宠王国宠物店品牌展厅室内工装CAD施工图cad施工图
Q宠联盟宠物店室内工装CAD施工图cad施工图
宠物店cad平面图cad施工图
儿童活动区cad施工图
宠物店 最新全套施工图合集cad施工图
多套宠物店猫咖CAD平面布局cad施工图
北京玺萌地产会所室内工装平面系统图CAD施工图cad施工图
宠物店 最新平面施工图合集cad施工图
最新宠物店平面施工图设计cad施工图
宠物店 最新平面施工图合集cad施工图
宠物店 最新全套面施工图合集cad施工图
宠物店 最新平面施工图合集cad施工图
点击加载更多
分享到
复制链接
保存海报
取消
请选择收藏夹
+新增收藏夹
新增收藏夹
取消
确认
退出查看