模型详情
1/4
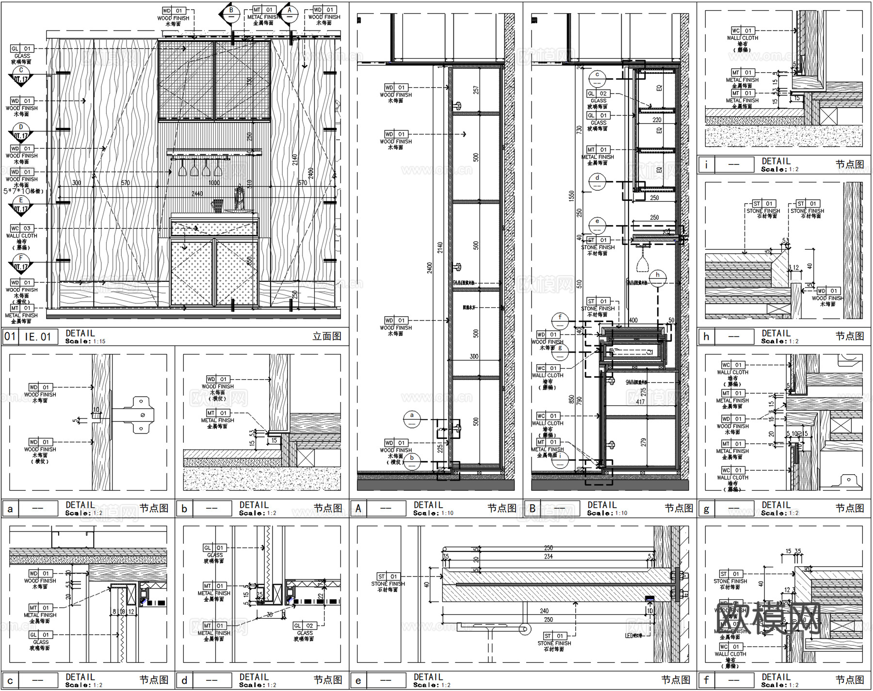
餐边柜大样图、内嵌端景柜造型、嵌入式餐边柜详图、墙布柜门工艺cad施工图
ID:
5364759
餐边柜大样图、内嵌端景柜造型、嵌入式餐边柜详图、墙布柜门工艺cad施工图 ID-5364759
所需欧币:
36
发布时间:
2026-02-02
下载请使用电脑登录欧模网,建议先收藏
收藏
分享
设计爱好姐
关注
为您推荐
九大工艺节点详图cad施工图
墙地相接工艺做法CAD详图集cad施工图
墙面工艺节点大样CAD施工详图集cad施工图
墙面与顶面材质相接工艺做法CAD详图集cad施工图
门工艺节点大样CAD施工详图集cad施工图
天花吊顶造型节点客厅天花工艺节点大样详图CAD素材图库cad施工图
门详图房门推门剖面做法工艺详图节点CAD素材图库cad施工图
吊顶工艺做法节点大样CAD施工详图集cad施工图
地平做法工艺节点大样CAD施工详图集cad施工图
平开门详图房门推门剖面做法工艺详图节点CAD素材图库cad施工图
硬包软包壁纸墙纸涂料工艺做法剖面详图节点大样CAD素材图库cad施工图
景观道路铺装地面工艺做法节点大样详图CAD施工图cad施工图
工装节点大样图沙发卡座更衣柜剖面详图节点工艺图CAD素材图库cad施工图
工装节点大样图地面墙面墙身软包剖面详图节点工艺图CAD素材图cad施工图
门板房门剖面做法工艺详图节点CAD素材图库cad施工图
玄关背景墙面造型施工大样详图 玄关端景造型墙 不锈钢造型cad施工图
景观小品详图CAD施工图cad施工图
景观坐凳详图CAD施工图cad施工图
楼梯大样图钢结构楼梯详图圆弧楼梯详图CAD素材图库cad施工图
鞋柜玄关柜家具边柜衣柜装饰柜餐边柜剖面详图节点素材CAD图库cad施工图
点击加载更多
分享到
复制链接
保存海报
取消
请选择收藏夹
+新增收藏夹
新增收藏夹
取消
确认
退出查看