模型详情
1/8
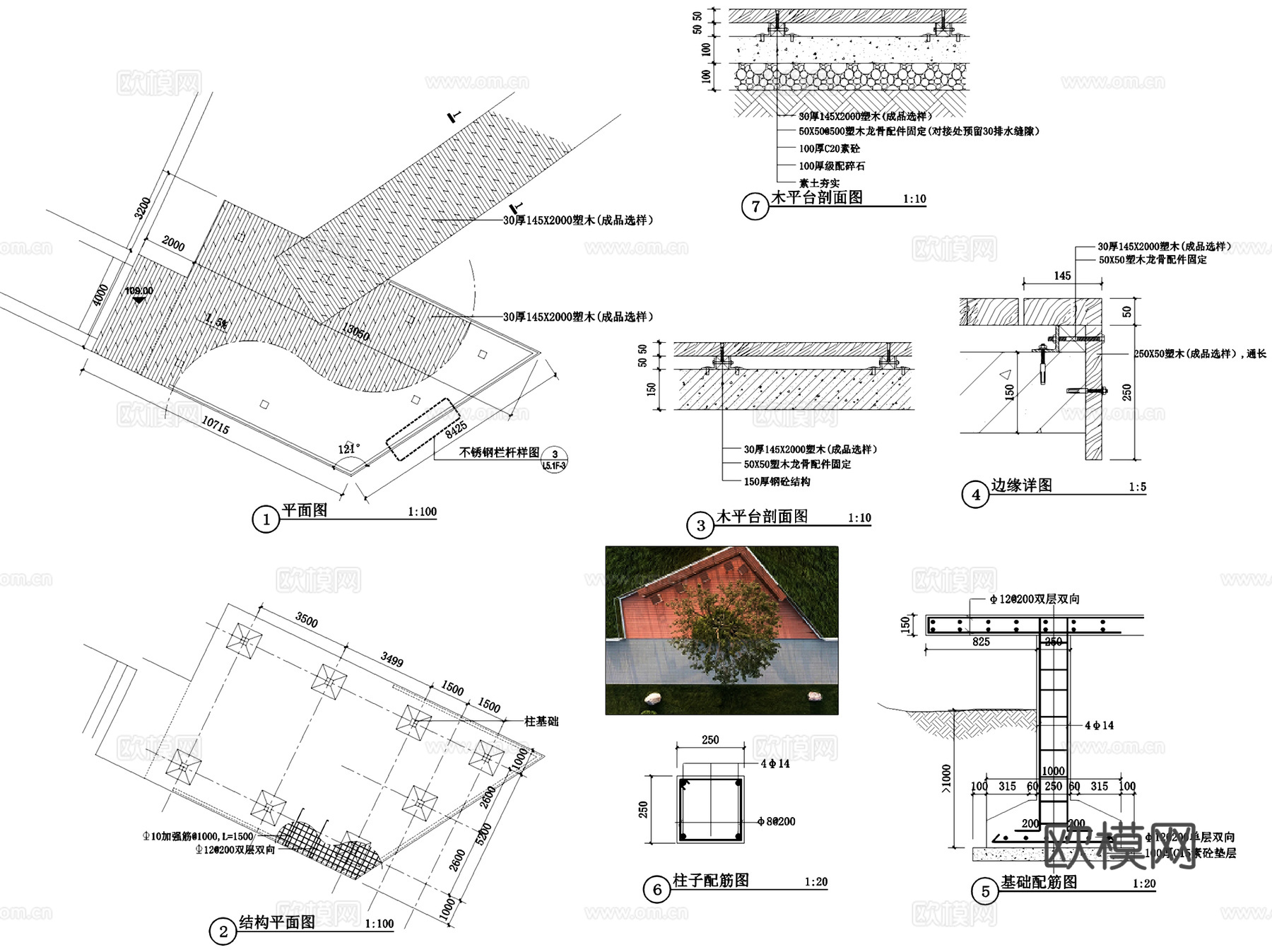
观景木平台亲水悬挑平台景观节点CAD施工图集 12套cad施工图
ID:
5367757
观景木平台亲水悬挑平台景观节点CAD施工图集 12套cad施工图 ID-5367757
所需欧币:
36
发布时间:
2026-02-02
下载请使用电脑登录欧模网,建议先收藏
收藏
分享
皮肤干燥
关注
为您推荐
塑木平台 悬挑木平台cad施工图
木平台 出挑悬挑平台立面 观景台 亲水台 木栏杆cad施工图
滨水观景平台节点大样CAD施工图集cad施工图
观景平台景观节点CAD施工详图cad施工图
观景平台CAD施工图cad施工图
木栈桥平台景观CAD施工图集cad施工图
木平台 亲水台 观景台cad施工图
观景木平台 亲水台 木栈道廊架木栏杆 CAD施工图cad施工图
木平台 亲水台 观景台cad施工图
滨水篝火平台景观CAD施工图集cad施工图
木平台 亲水台 观景台 挑台cad施工图cad施工图
木平台 竹木平台 排水沟节点 CAD施工图cad施工图
钓鱼台 木平台 亲水台 观景台 塑木平台 CAD施工图cad施工图
木平台 竹木平台 CAD施工图cad施工图
木平台 竹木平台 CAD施工图cad施工图
木平台 竹木平台 CAD施工图cad施工图
木平台 亲水台 观景台 钢结构平台 木栏杆扶手cad施工图
木平台 亲水台 观景台 钢结构平台 麻绳木栏杆cad施工图
亲水平台及栏杆大样CAD施工详图cad施工图
户外休闲平台景观节点CAD施工图cad施工图
点击加载更多
分享到
复制链接
保存海报
取消
请选择收藏夹
+新增收藏夹
新增收藏夹
取消
确认
退出查看