模型详情
1/8
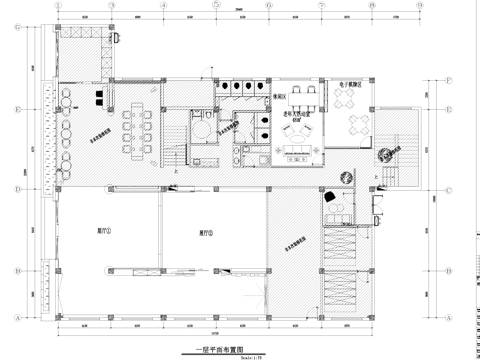
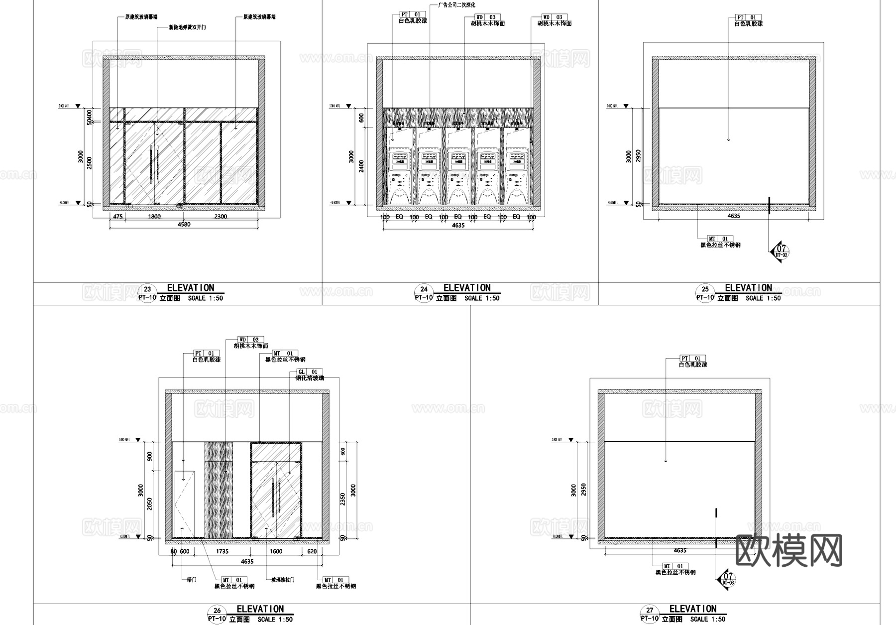
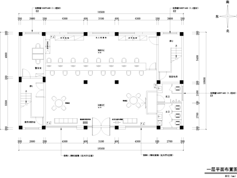
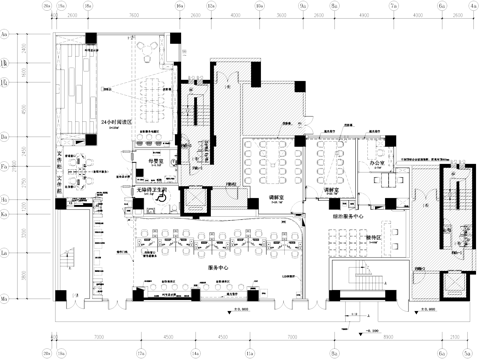
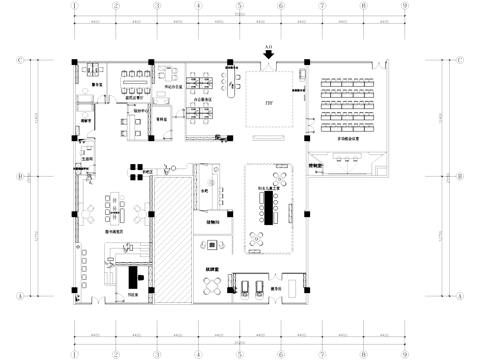
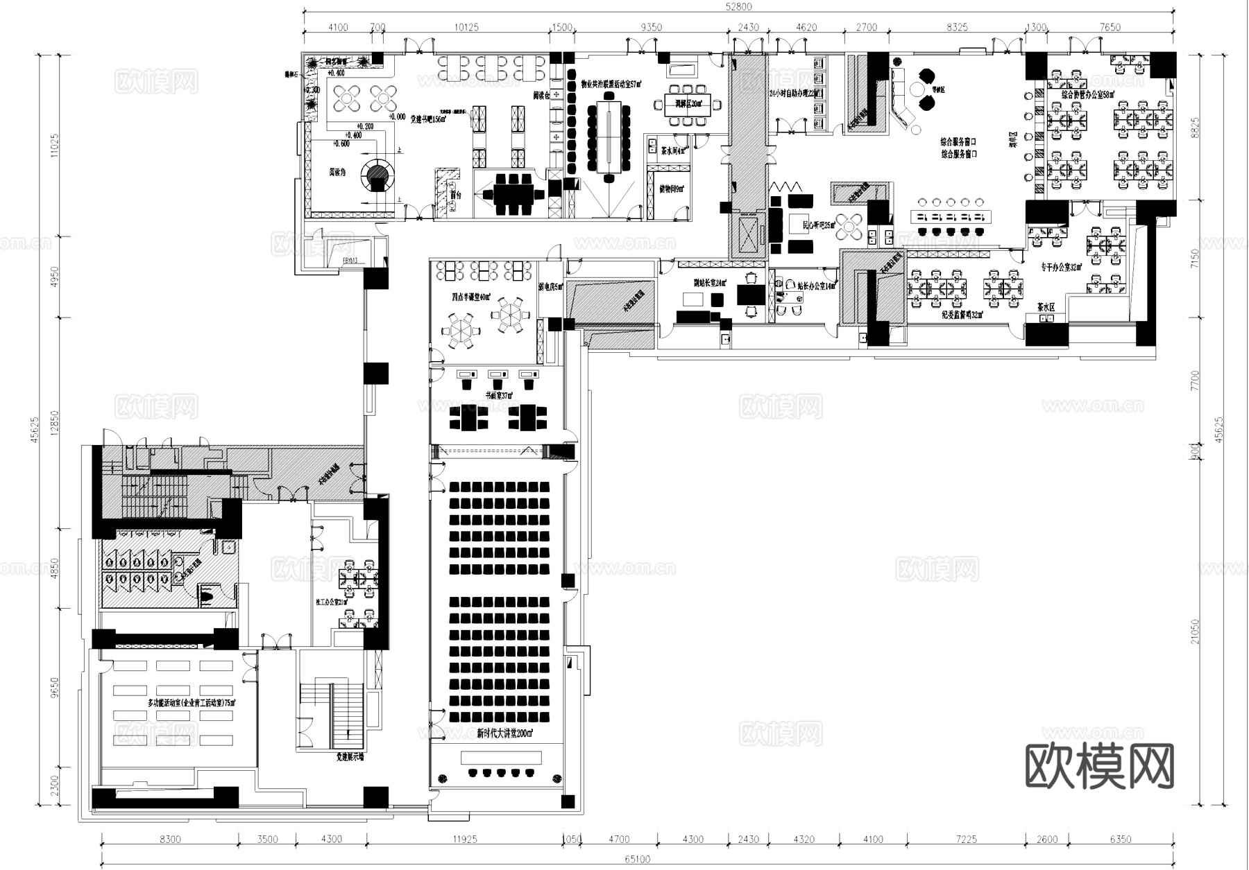
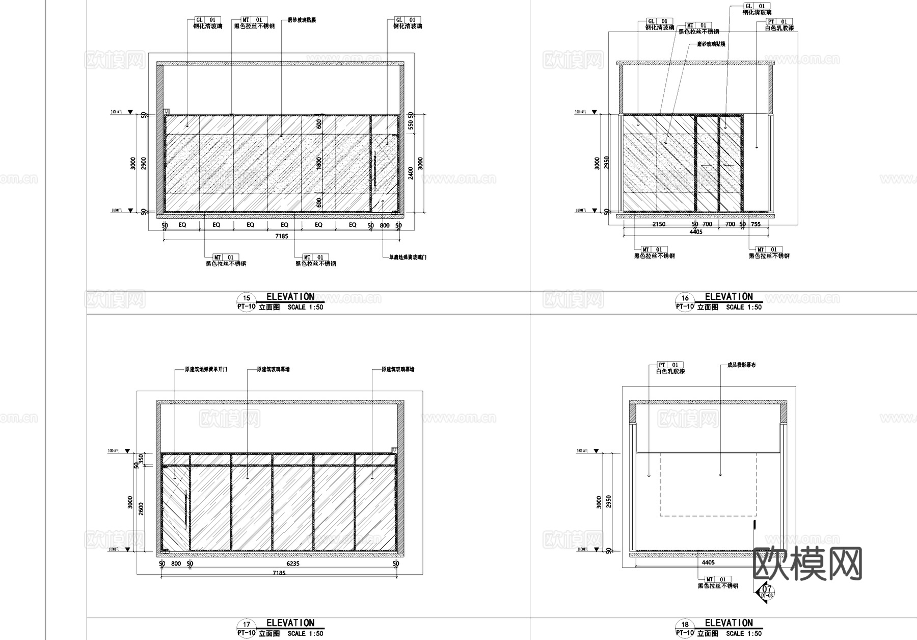
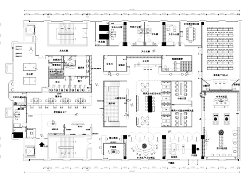
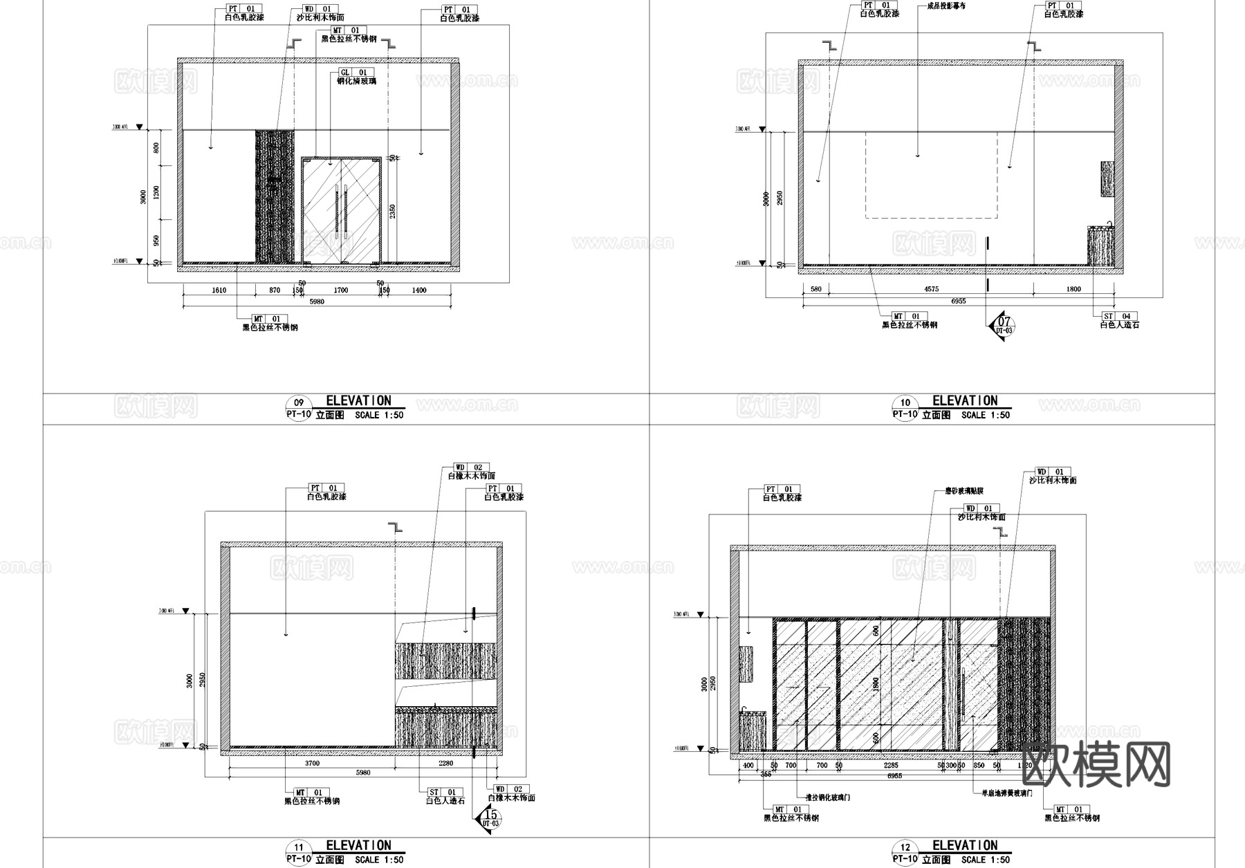
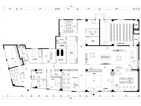
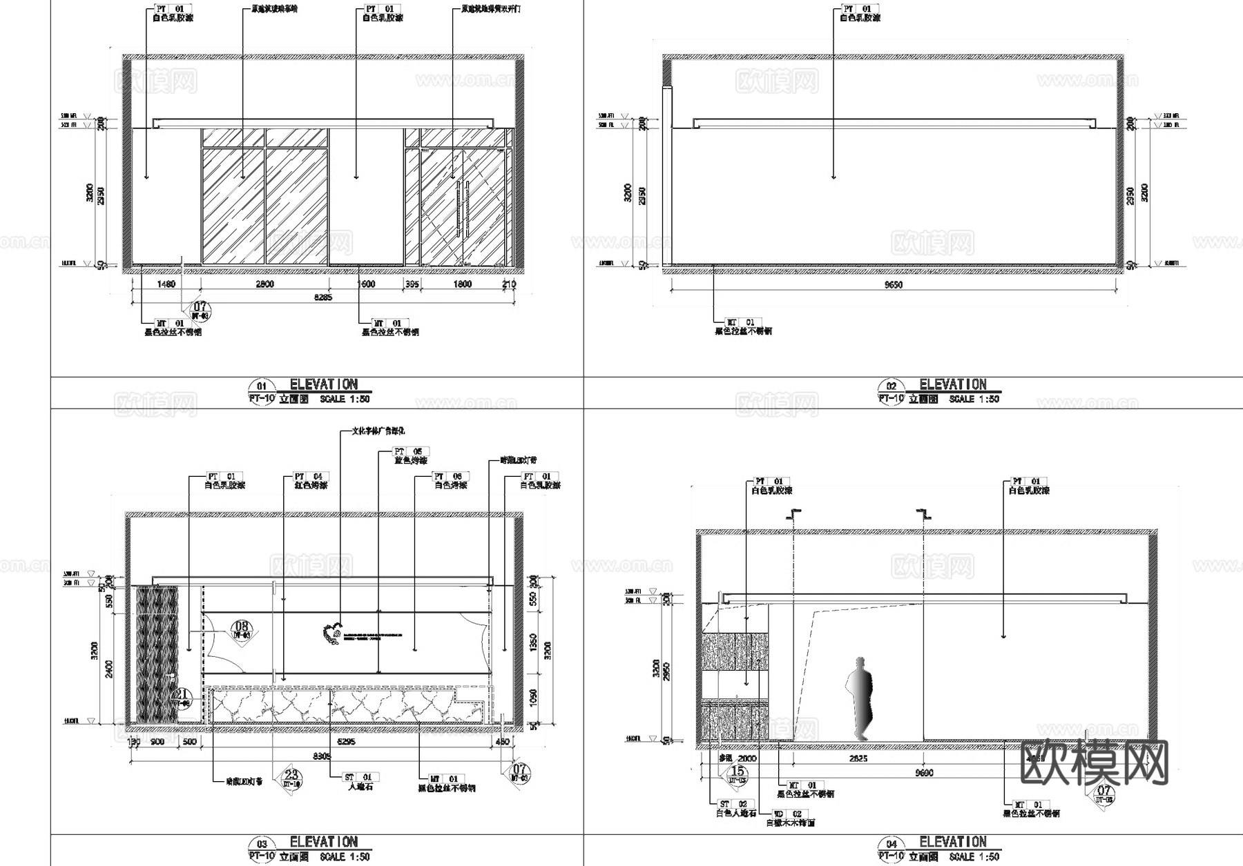
社区党群服务活动中心室内工装CAD施工图cad施工图
ID:
5367899
社区党群服务活动中心室内工装CAD施工图cad施工图 ID-5367899
所需欧币:
16
发布时间:
2026-02-02
下载请使用电脑登录欧模网,建议先收藏
收藏
分享
皮肤干燥
关注
为您推荐
二层社区党群服务中心展厅室内工装CAD施工图cad施工图
社区党群服务中心室内工装平面图cad施工图
社区党群服务中心室内工装平面图cad施工图
桥东社区三层党群服务中心室内工装CAD施工图cad施工图
红岩党群服务中心室内工装CAD施工图cad施工图
党群服务中心室内工装平面图cad施工图
党群服务中心室内工装平面图cad施工图
丽豪社区党群服务中心平面系统图CAD施工图cad施工图
小型书吧室内工装CAD施工图cad施工图
综合工装室内CAD图库cad施工图
室内工装综合CAD图库cad施工图
玉雕文化展厅室内工装CAD施工图cad施工图cad施工图
政务服务大厅办公室室内工装平面图CAD施工图cad施工图
室内建筑景观工装综合CAD图库cad施工图cad施工图
民宿酒店室内工装CAD施工图cad施工图
西餐厅室内工装CAD施工图cad施工图
民宿酒店室内工装CAD施工图cad施工图
咖啡厅室内工装CAD施工图cad施工图
桑拿休息大厅室内工装CAD施工图cad施工图
现代度假风民宿室内工装CAD施工图cad施工图
点击加载更多
分享到
复制链接
保存海报
取消
请选择收藏夹
+新增收藏夹
新增收藏夹
取消
确认
退出查看