模型详情
1/8
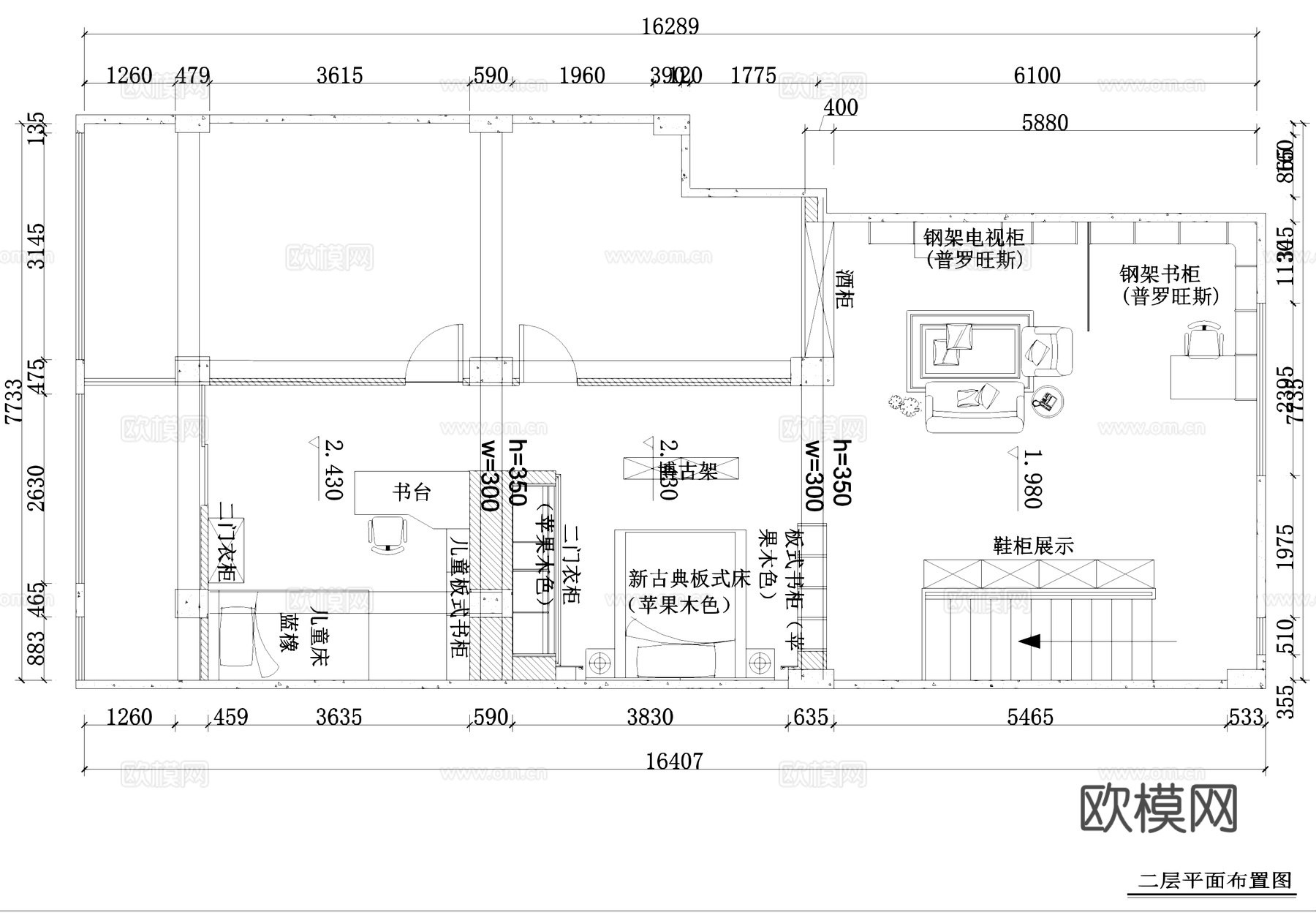
家具专卖店室内工装CAD施工图cad施工图
ID:
5368560
家具专卖店室内工装CAD施工图cad施工图 ID-5368560
所需欧币:
16
发布时间:
2026-02-02
下载请使用电脑登录欧模网,建议先收藏
收藏
分享
皮肤干燥
关注
为您推荐
家具专卖店室内工装CAD施工图集 13套cad施工图
德威地板专卖店室内工装CAD施工图cad施工图
德威地板专卖店室内工装CAD施工图cad施工图
SONY索尼专卖店室内工装CAD施工图cad施工图
欧雅壁纸专卖店室内工装CAD施工图cad施工图
德威毕加索地板专卖店室内工装CAD施工图cad施工图
阪神卫浴产品专卖店室内工装CAD施工图cad施工图
唐山博华陶瓷专卖店室内工装CAD施工图cad施工图
服装店服饰专卖店室内工装CAD施工图集 55套cad施工图
Art Mansion家具展厅室内工装CAD施工图cad施工图
方内家具旗舰店展厅室内工装CAD施工图cad施工图
意都整体家居系统专卖店室内工装CAD施工图cad施工图
家具工装室内构件综合CAD图库cad施工图
室内工装家装家具构件CAD图库cad施工图
水果店果切专卖店室内工装CAD施工图cad施工图
13套家具专卖店 最新全套施工图设计cad施工图
室内家具平立面工装图块图库CAD施工图cad施工图
欧神诺陶瓷瓷砖专卖店室内工装CAD施工图cad施工图
室内家具CAD图库cad施工图
工装家具图库cad施工图
点击加载更多
分享到
复制链接
保存海报
取消
请选择收藏夹
+新增收藏夹
新增收藏夹
取消
确认
退出查看