模型详情
1/1
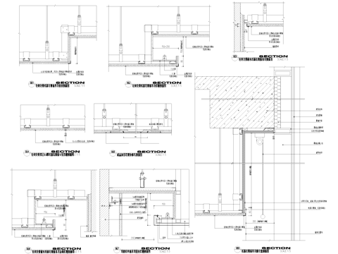
轻钢龙骨石膏板吊顶节点CAD施工图cad施工图
ID:
5381831
轻钢龙骨石膏板吊顶节点CAD施工图cad施工图 ID-5381831
所需欧币:
16
发布时间:
2026-02-05
下载请使用电脑登录欧模网,建议先收藏
收藏
分享
皮肤干燥
关注
为您推荐
轻钢龙骨石膏板吊顶隐形检修口节点cad施工图
轻钢龙骨耐水纸面石膏板吊顶天花节点CAD施工图cad施工图
常用轻钢龙骨石膏板天花节点cad施工图
轻钢龙骨石膏板隔墙节点大样CAD施工详图cad施工图
石膏板吊顶节点CAD施工图cad施工图
轻钢龙骨隔墙节点大样CAD施工详图cad施工图
轻钢龙骨隔墙 涂料墙面剖面节点cad施工图
轻钢龙骨吊顶金属吊顶矿棉板石膏板吊顶天花灯槽节点CAD素材图cad施工图
墙面工艺地面地板石材节点吊顶房门节点轻钢龙骨隔墙CAD素材图cad施工图
石膏板吊顶 客厅吊顶 平顶 吊顶节点cad施工图
客厅与天井通道吊顶 石膏板吊顶 顶面节点 吊顶节点cad施工图
轻钢龙骨隔墙 硬包饰面墙面节点cad施工图
弧形吊顶 卧室吊顶 石膏板吊顶 吊顶节点cad施工图
轻钢龙骨笔槽节点大样图cad施工图
轻钢龙骨隔墙 软包饰面墙面节点cad施工图
客厅吊顶 悬浮吊顶 顶面节点 石膏板吊顶cad施工图
石膏板吊顶 艺术涂料吊顶 别墅客厅吊顶 吊顶节点cad施工图
石膏板吊顶 天花吊顶 弧形吊顶 现代吊顶 吊顶节点cad施工图
双层纸面石膏板吊顶天花节点CAD施工图cad施工图
天花吊顶节点CAD施工图cad施工图
点击加载更多
分享到
复制链接
保存海报
取消
请选择收藏夹
+新增收藏夹
新增收藏夹
取消
确认
退出查看