模型详情
1/8
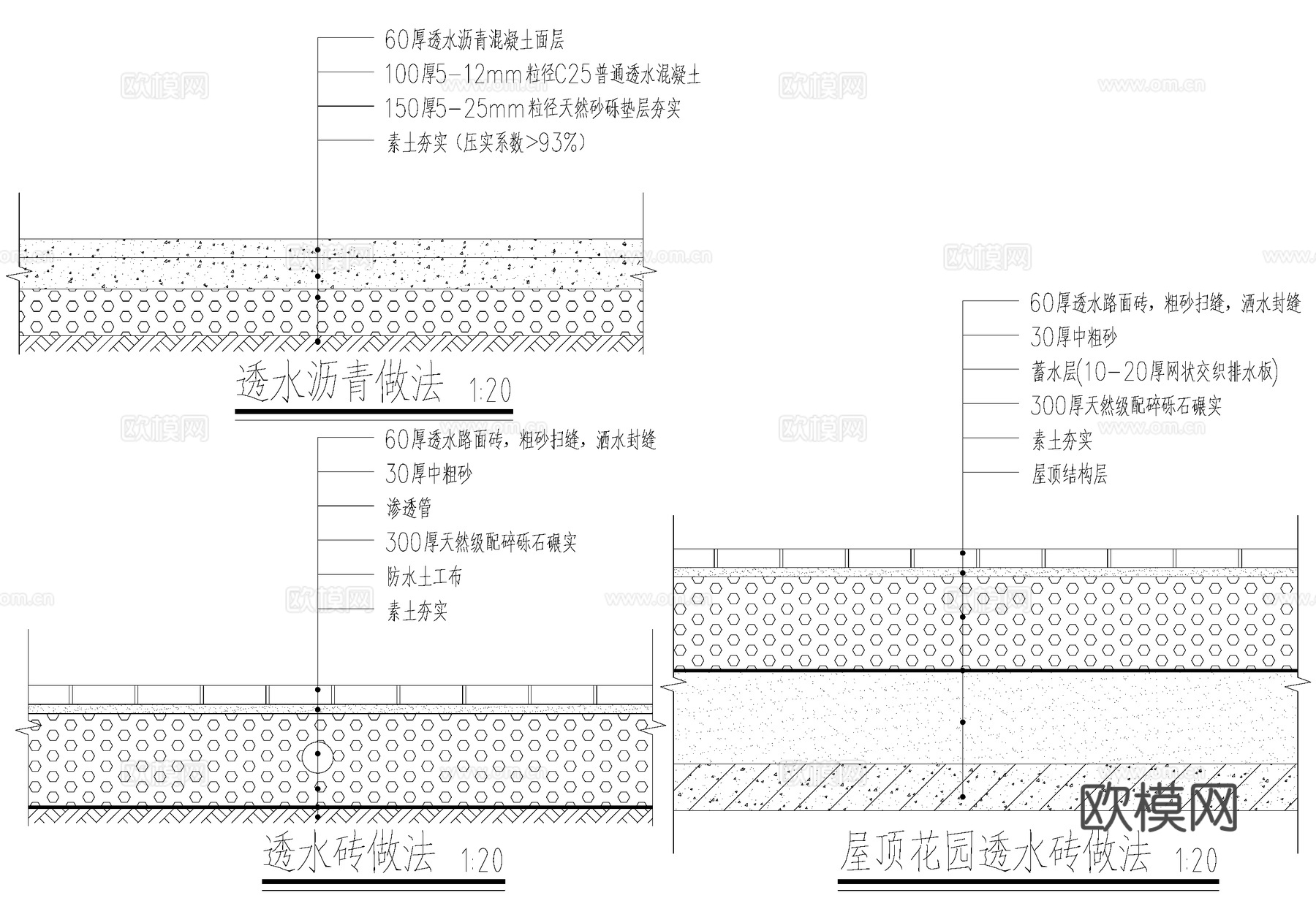
雨水花园旱溪湿式干式渗透型植草沟海绵城市透水铺装下凹式绿地cad施工图
ID:
5384257
雨水花园旱溪湿式干式渗透型植草沟海绵城市透水铺装下凹式绿地cad施工图 ID-5384257
所需欧币:
16
发布时间:
2026-02-06
下载请使用电脑登录欧模网,建议先收藏
收藏
分享
皮肤干燥
关注
为您推荐
雨水花园植草沟溢流口给排水节点cad施工图
转输型植草沟剖面 给排水节点cad施工图
雨水花园 生态植草沟 溢流口 给排水节点cad施工图
植草沟渗管系统 透水混凝土园路 给排水节点cad施工图
排水沟节点 线性排水沟 缝隙式排水沟 透水管cad施工图
旱溪 CAD施工图cad施工图
雨水井节点 井盖节点 绿地植草井盖板 种植盘 CAD施工图cad施工图
旱溪施工图CADcad施工图
旱溪施工图CADcad施工图
旱溪施工图CADcad施工图
旱溪施工图CADcad施工图
旱溪施工图CADcad施工图
旱溪施工图CAD图纸cad施工图
旱溪施工图CADcad施工图
旱溪施工图CADcad施工图
旱溪施工图CADcad施工图
旱溪施工图CAD图纸cad施工图
旱溪施工图CADcad施工图
线性排水沟 边缝式排水沟节点cad施工图
井盖节点 草地隐蔽式井盖 篦子 雨水口节点 混凝土路面铺装cad施工图
点击加载更多
分享到
复制链接
保存海报
取消
请选择收藏夹
+新增收藏夹
新增收藏夹
取消
确认
退出查看