模型详情
1/2
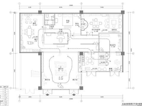
全屋水系统点位灯具电器图标机电连线图开关插座水电点位CADcad施工图
ID:
5385288
全屋水系统点位灯具电器图标机电连线图开关插座水电点位CADcad施工图 ID-5385288
所需欧币:
36
发布时间:
2026-02-06
下载请使用电脑登录欧模网,建议先收藏
收藏
分享
158****5924
关注
为您推荐
全屋插座水电点位室内家装CAD施工图cad施工图
电器开关插座照明灯具图库图块CADcad施工图
别墅室内家装首层平面 机电平面布置图 灯具插座连线图 CADcad施工图
弱电安防系统电器图标符号CAD图例cad施工图
北街幼儿园水电系统图cad施工图
开关插座灯具电器CAD图例cad施工图
一点点奶茶店室内工装CAD施工图cad施工图
灯具图例CADcad施工图
变电站主接线图 系统图cad施工图
点式景观绿化节点CAD施工图集cad施工图
电气图标图例CADcad施工图
后厨平面系统图 水电照明排烟 食堂餐厅饭堂 厨房cad施工图
别墅平面系统图 户型图 吊顶图 水电图 CAD施工图cad施工图
全屋定制家具展厅 最新全套施工图设计cad施工图
全屋定制家具展厅 最新全套施工图设计cad施工图
后厨厨房平面系统图 学校学生教师食堂餐厅 给排水电抽送风cad施工图
变电站 电气主接线图 系统图cad施工图
2026最新全屋定制标准设计图纸cad施工图
全屋定制家具展厅 最新平面施工图设计cad施工图
全屋定制家具展厅 最新平面施工图设计cad施工图
点击加载更多
分享到
复制链接
保存海报
取消
请选择收藏夹
+新增收藏夹
新增收藏夹
取消
确认
退出查看