模型详情
1/2
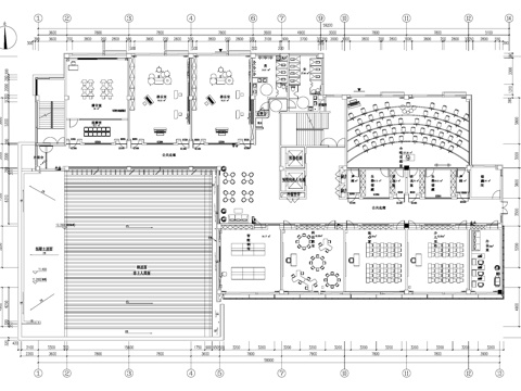
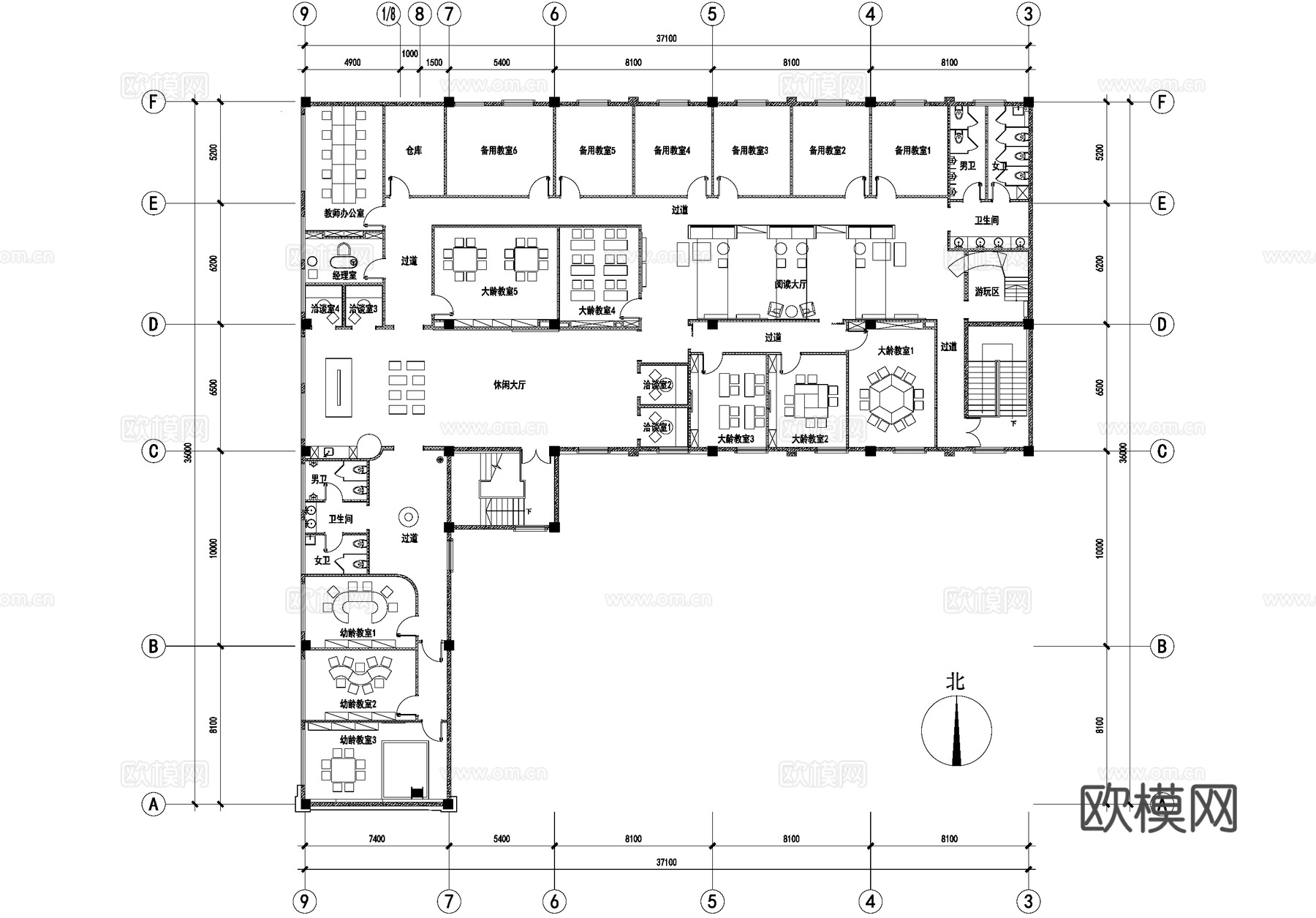
少儿教育培训机构中心幼儿学生教室平面图cad施工图
ID:
5385475
少儿教育培训机构中心幼儿学生教室平面图cad施工图 ID-5385475
所需欧币:
16
发布时间:
2026-02-09
下载请使用电脑登录欧模网,建议先收藏
收藏
分享
皮肤干燥
关注
为您推荐
少儿教育培训中心少年宫平面图cad施工图
11教培中心教育培训机构平面CAD图纸最新整理合集cad施工图
幼儿园 早教中心 教室 托儿所 培训中心 托育园cad施工图
9套早教少儿青年培训机构CAD内装施工图最新整理合集cad施工图
20套培训机构CAD平面图纸2026最新整理cad施工图
书法教室课堂平面图 培训室cad施工图
幼儿园20人托班教室平面图cad施工图
15套幼儿园托育早教中心托管中心教室CAD施工图附效果图cad施工图
教室课堂活动室培训室平面图cad施工图
陶艺劳技教室课堂平面图 培训室cad施工图
会计综合实训室教室培训室平面图cad施工图
教室课堂培训室自习室平面图cad施工图
烹饪厨艺劳技教室课堂平面图 培训室cad施工图
幼教教室桌椅 校园儿童教具 幼儿园课桌椅 少儿学堂家具cad施工图
少儿跑步 儿童慢跑 孩童奔跑 幼儿跑步 儿童体能跑cad施工图
计算机教室机房课堂平面图 多功能培训室cad施工图
美术教室课堂平面图cad施工图
49人课堂教室平面图cad施工图
六安图书馆少儿区室内工装平面图CAD施工图cad施工图
教室阶梯课室实训室自习室培训室室内工装平面图CAD施工图集cad施工图
点击加载更多
分享到
复制链接
保存海报
取消
请选择收藏夹
+新增收藏夹
新增收藏夹
取消
确认
退出查看