模型详情
1/8
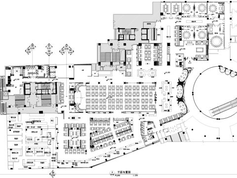
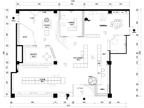
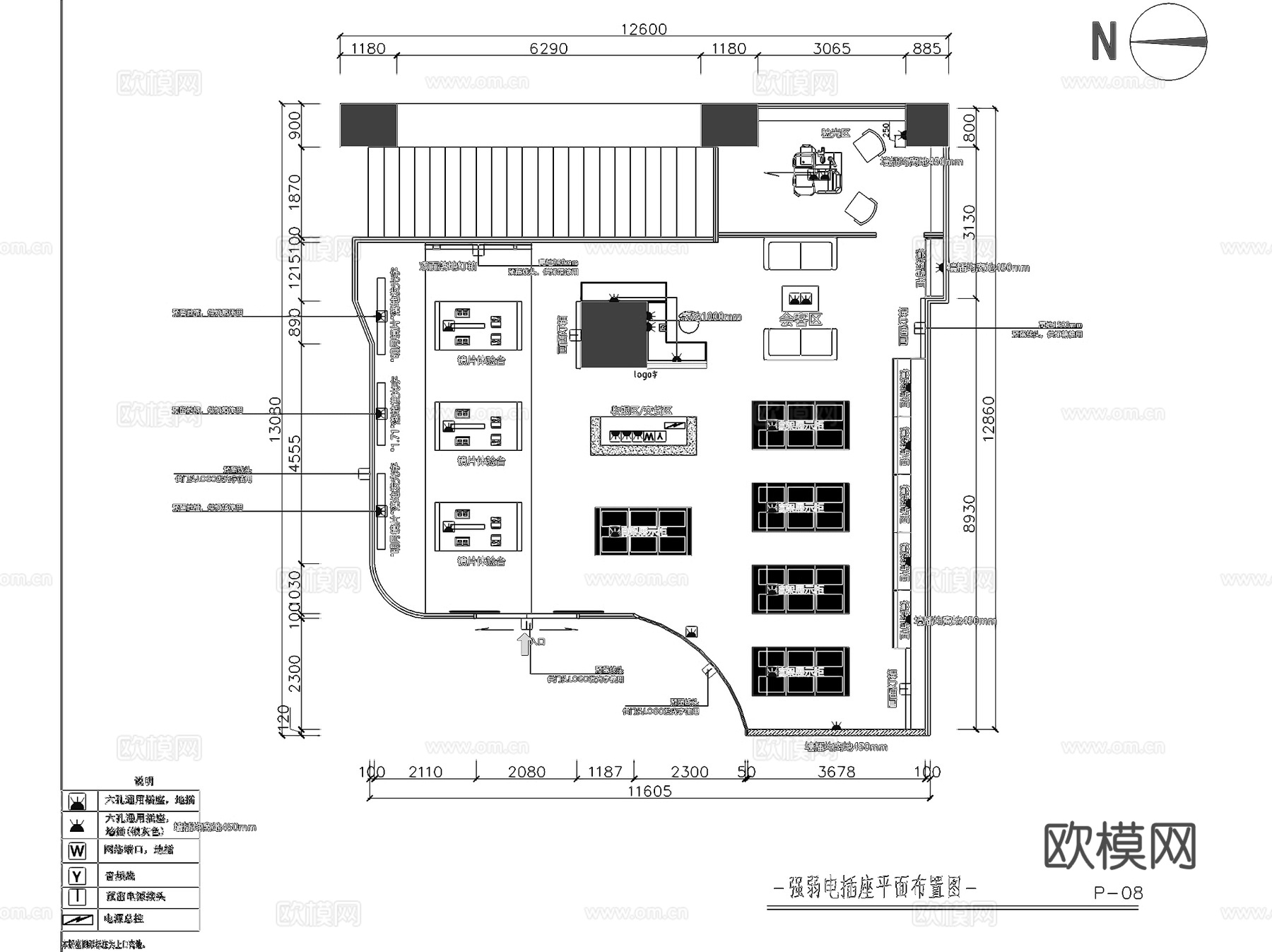
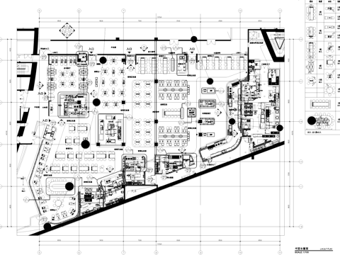
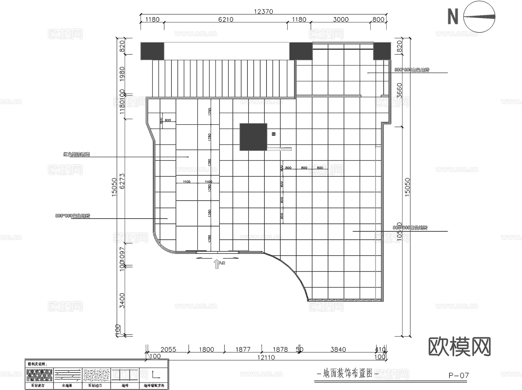
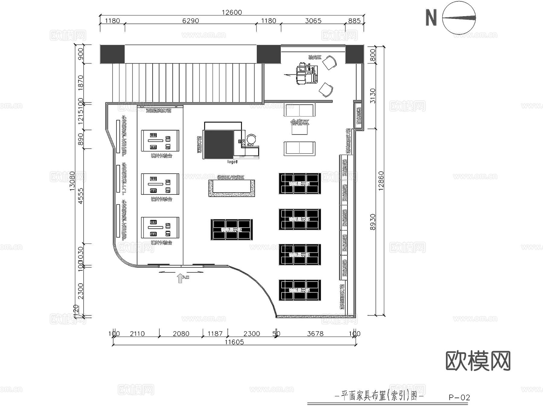
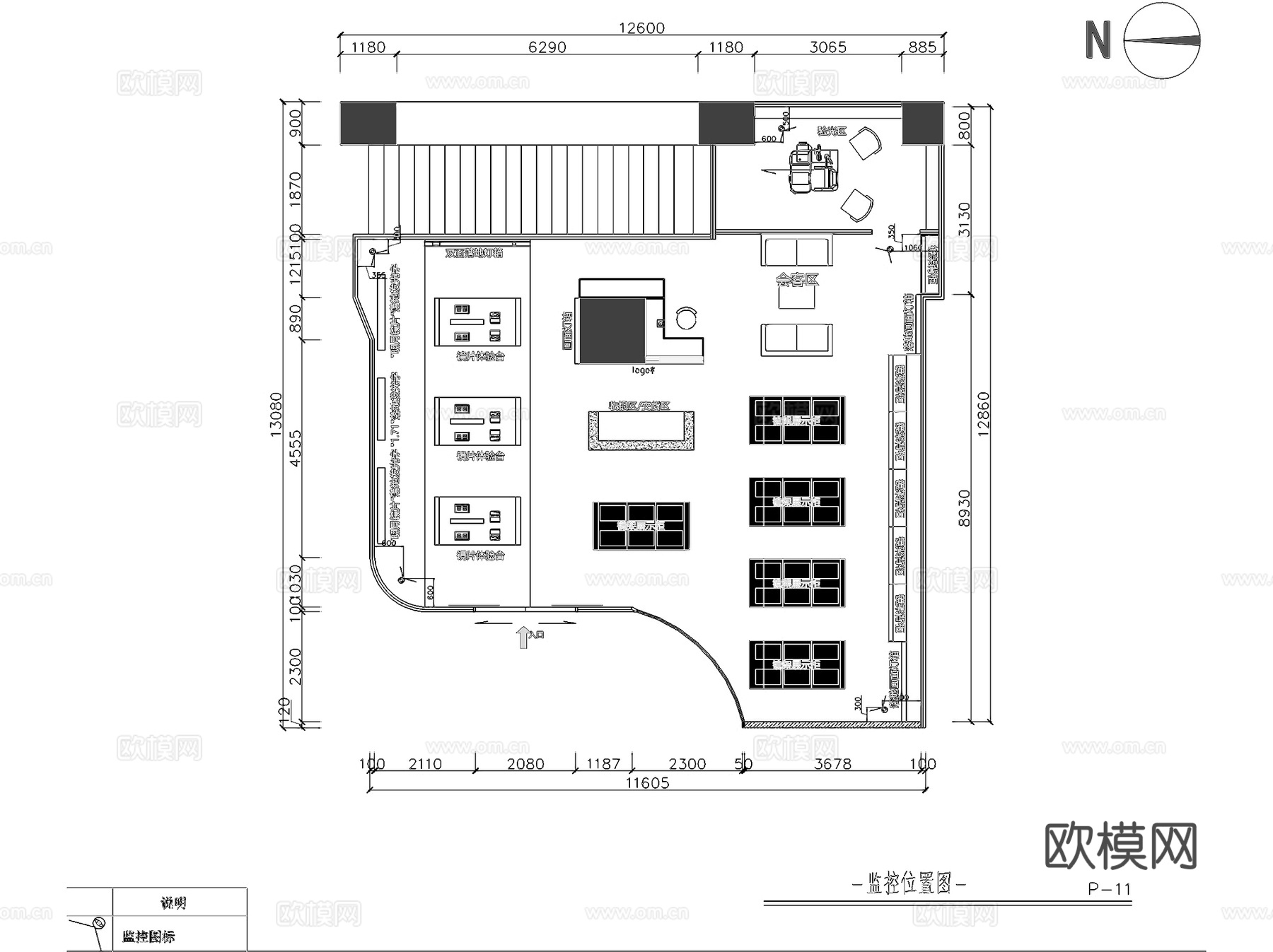
明月镜片眼镜店室内工装平面系统图CAD施工图cad施工图
ID:
5394015
明月镜片眼镜店室内工装平面系统图CAD施工图cad施工图 ID-5394015
所需欧币:
16
发布时间:
2026-02-09
下载请使用电脑登录欧模网,建议先收藏
收藏
分享
皮肤干燥
关注
为您推荐
超市室内工装平面系统图CAD施工图cad施工图
餐厅饭店室内工装平面系统图CAD施工图cad施工图
221健身房室内工装平面系统图CAD施工图cad施工图
美食广场小吃城室内工装平面系统图CAD施工图cad施工图
IP宠物店室内工装平面系统图CAD施工图cad施工图
美食广场小吃城室内工装平面系统图CAD施工图cad施工图
眼镜店室内工装平面图cad施工图
北京玺萌地产会所室内工装平面系统图CAD施工图cad施工图
民宿大堂大厅公区室内工装平面系统图CAD施工图cad施工图
眼科眼镜店室内工装平面图cad施工图
别墅室内家装平面系统图CAD施工图cad施工图
眼镜店眼科室内工装平面图cad施工图
新疆特色餐厅万达店室内工装平面系统图CAD施工图cad施工图
餐厅大堂室内工装平面图CAD施工图cad施工图cad施工图
亨达利眼镜店室内工装CAD施工图cad施工图
爱目堂眼镜店室内工装CAD施工图cad施工图
高视眼科眼镜店室内工装CAD施工图cad施工图
三层运动会所健身房室内工装平面系统图CAD施工图cad施工图
八宝坑胡同35号酒店室内工装平面系统图CAD施工图cad施工图
商务会所首层大堂室内工装平面CAD施工图cad施工图
点击加载更多
分享到
复制链接
保存海报
取消
请选择收藏夹
+新增收藏夹
新增收藏夹
取消
确认
退出查看