模型详情
1/8
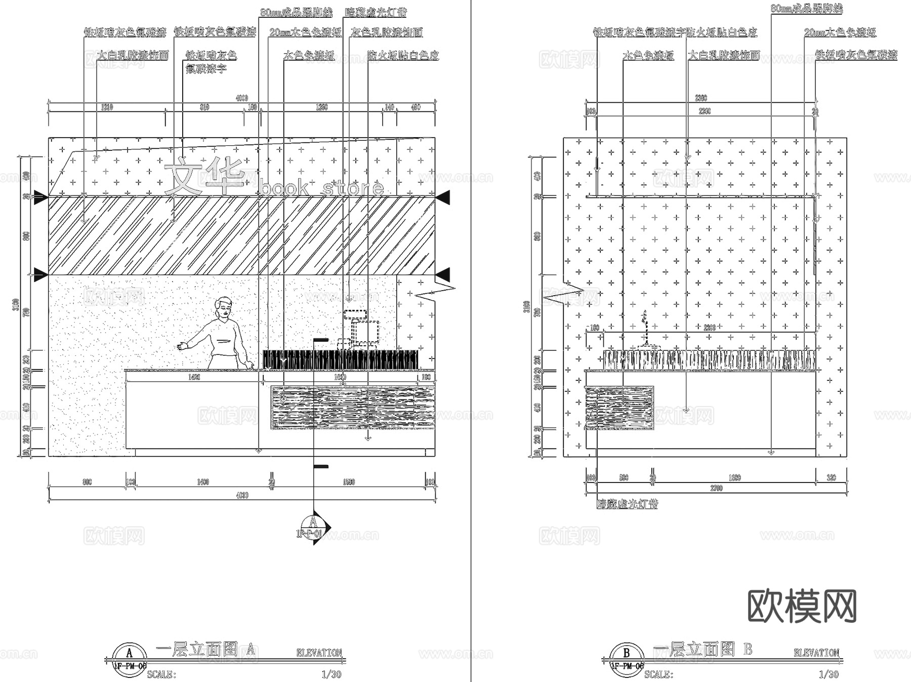
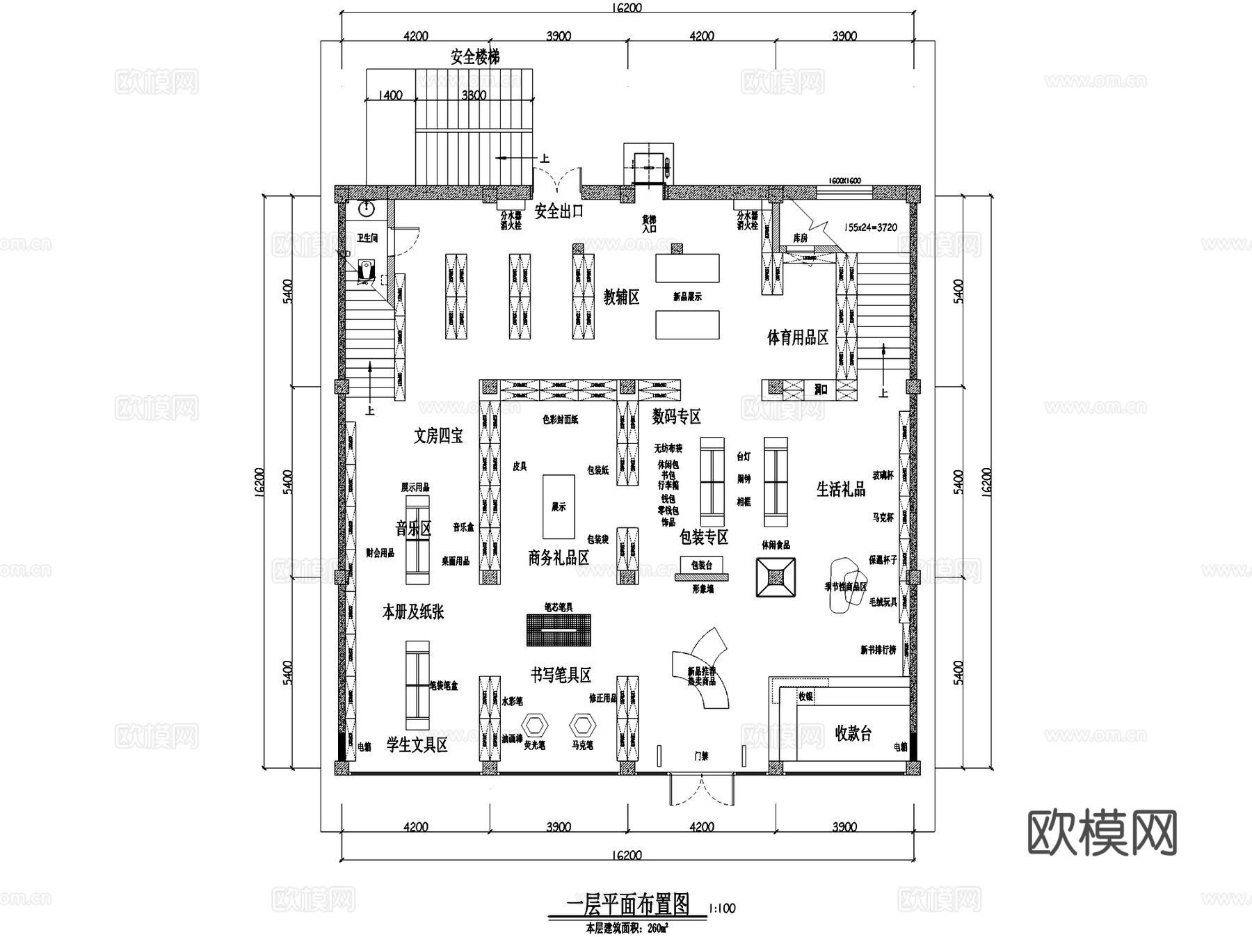
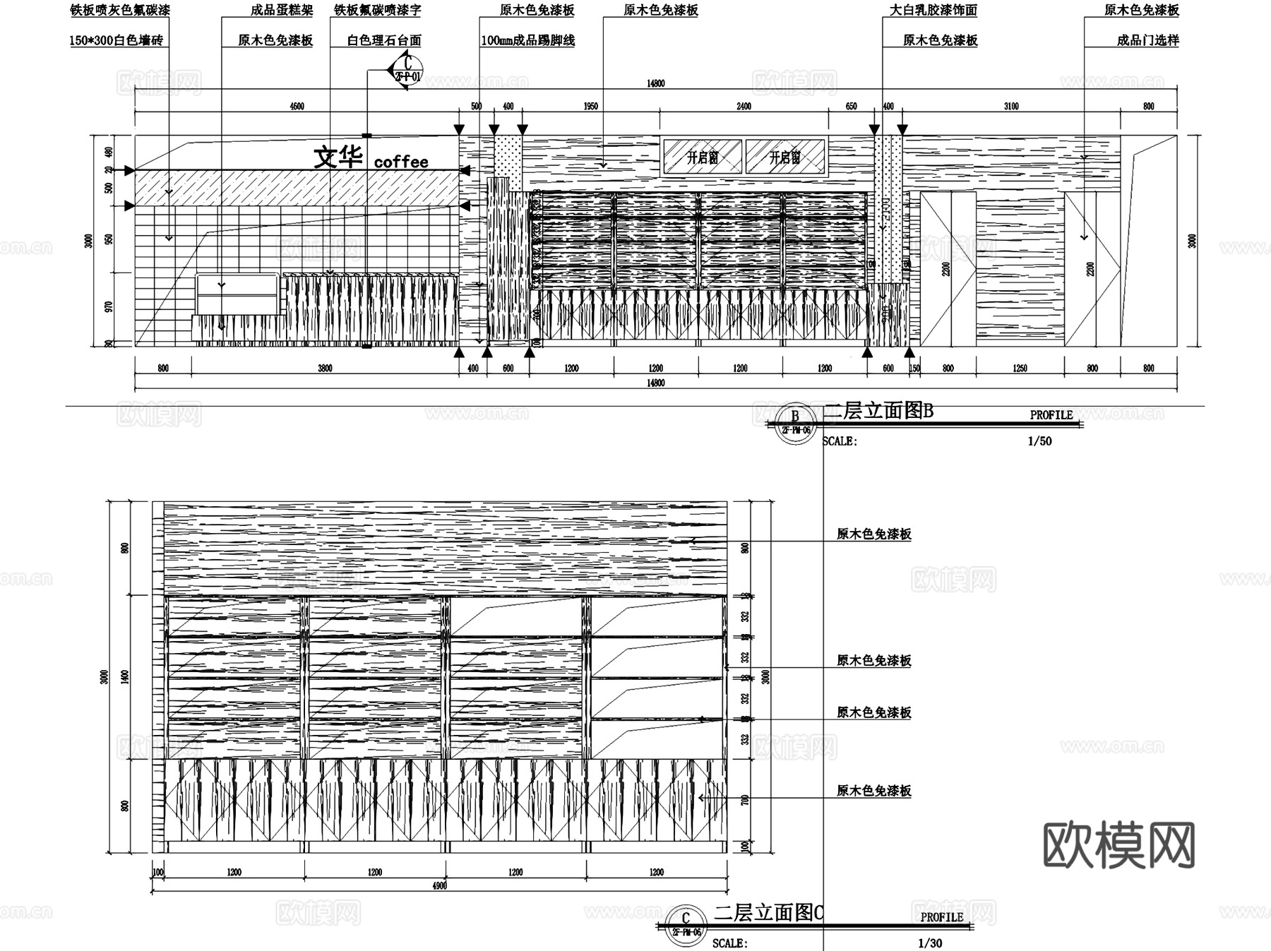
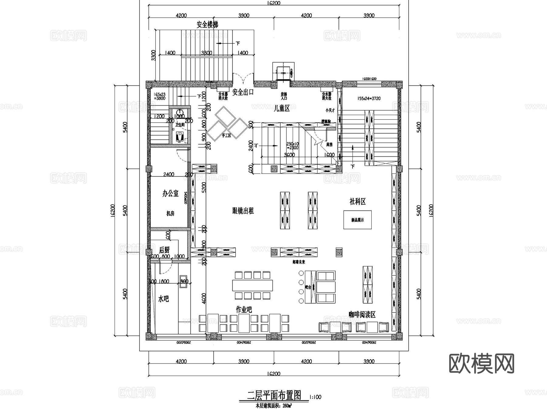
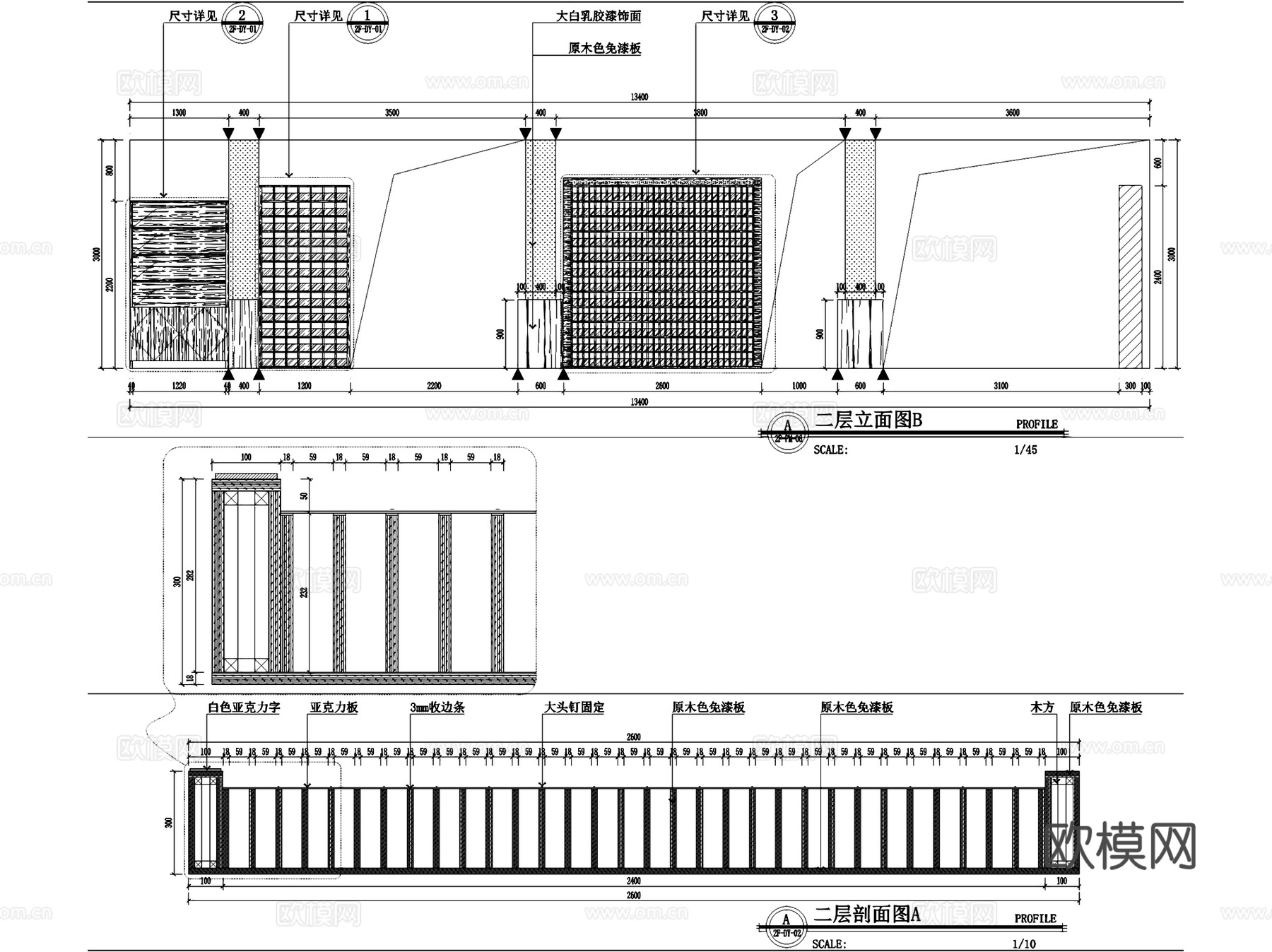
法库文华书店书吧室内工装CAD施工图cad施工图
ID:
5394126
法库文华书店书吧室内工装CAD施工图cad施工图 ID-5394126
所需欧币:
36
发布时间:
2026-02-09
下载请使用电脑登录欧模网,建议先收藏
收藏
分享
皮肤干燥
关注
为您推荐
法库文华书店室内工装CAD施工图cad施工图
休闲书店书吧室内工装CAD施工图cad施工图
高校休闲书吧书店室内工装CAD施工图cad施工图
小型书吧室内工装CAD施工图cad施工图
大连中信书店室内工装CAD施工图cad施工图
二层有氧书吧室内工装CAD施工图cad施工图
成都九方书店室内工装CAD施工图cad施工图
芝士公园新华书店室内工装CAD施工图cad施工图
花店精品书店室内工装CAD施工图cad施工图
休闲书吧书咖书店CADcad施工图
图书馆书吧茶吧室内工装CAD施工图cad施工图
二层休闲书吧室内工装CAD施工图cad施工图
休闲书吧书咖书店CADcad施工图
休闲书吧书咖书店CADcad施工图
休闲会所书吧红酒吧室内工装CAD施工图cad施工图
休闲书吧书咖书店CADcad施工图
休闲书吧书咖书店CADcad施工图
七星总裁书吧书房室内工装CAD施工图cad施工图
苏州诚品书店餐厅室内工装平面节点CAD施工图cad施工图
书店咖啡书吧平面图cad施工图
点击加载更多
分享到
复制链接
保存海报
取消
请选择收藏夹
+新增收藏夹
新增收藏夹
取消
确认
退出查看