模型详情
1/8
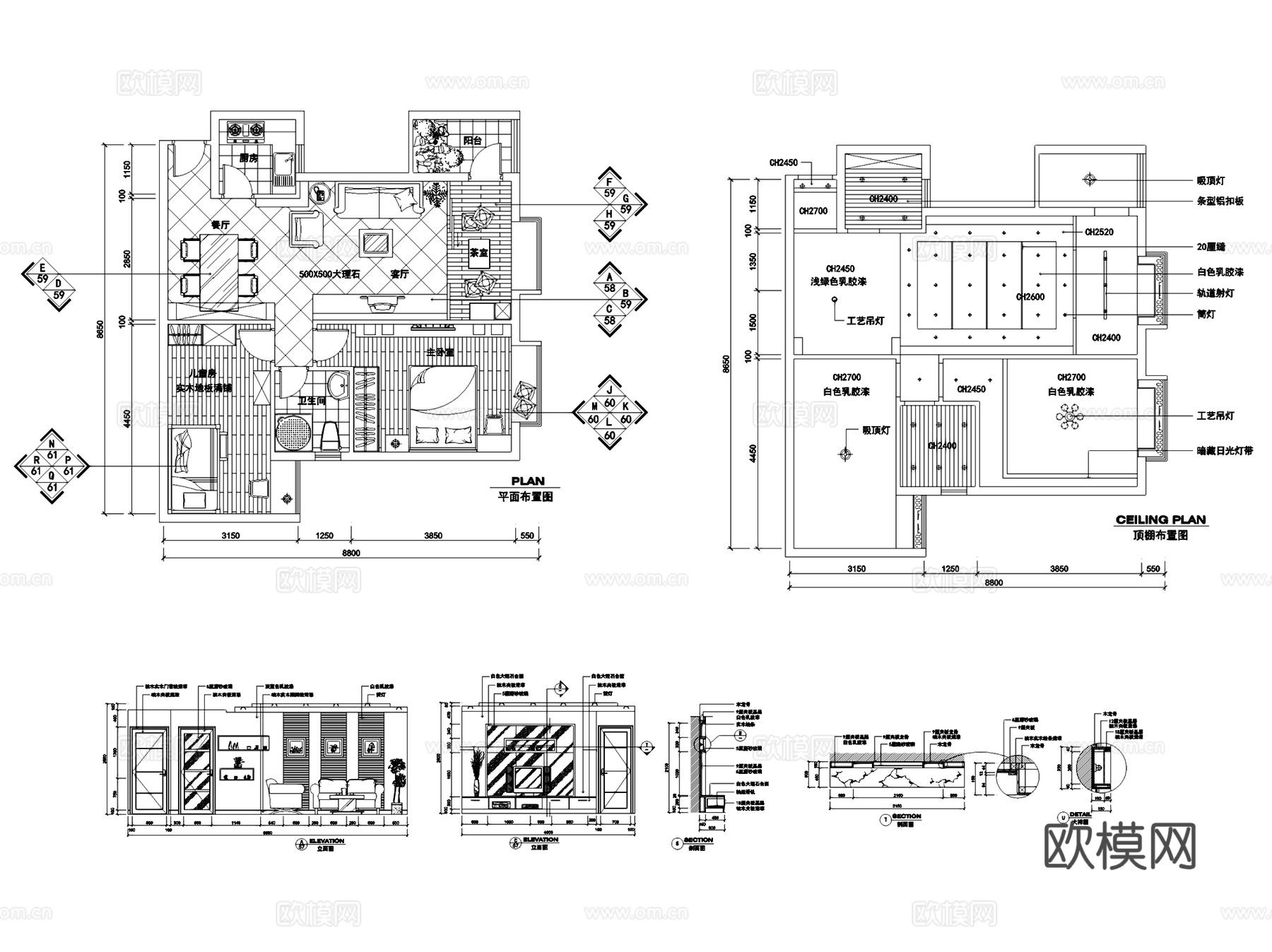
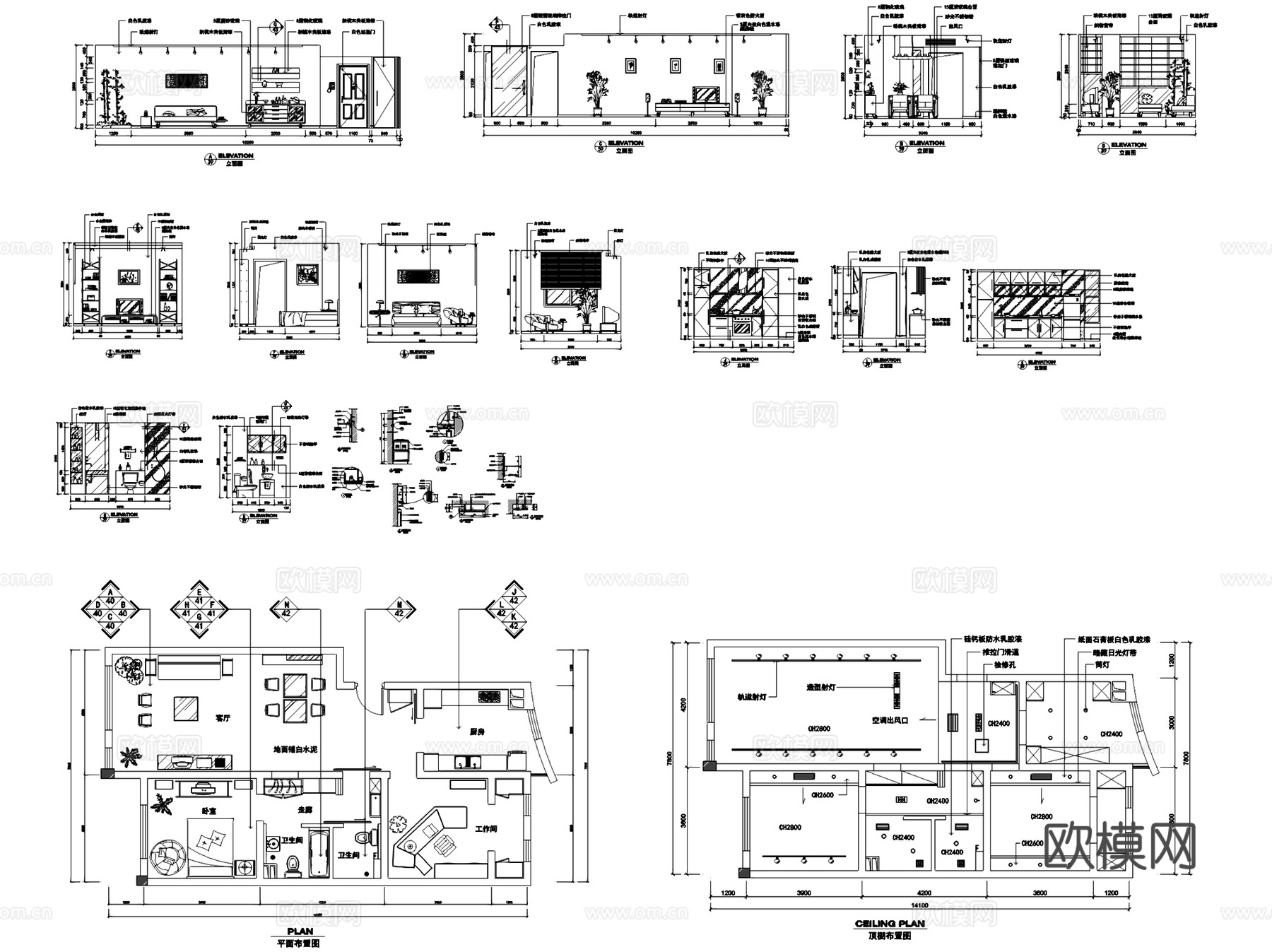
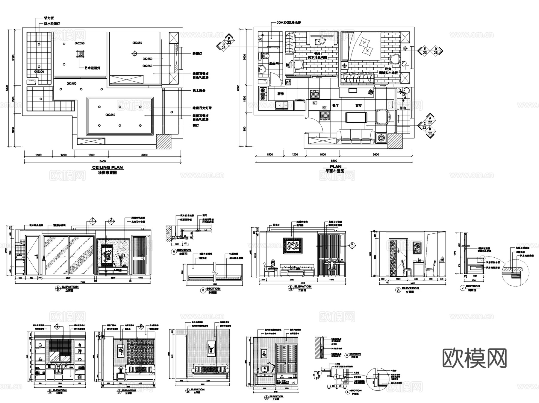
多种风格两居室室内装饰CAD施工图集 14套cad施工图
ID:
5398380
多种风格两居室室内装饰CAD施工图集 14套cad施工图 ID-5398380
所需欧币:
36
发布时间:
2026-02-09
下载请使用电脑登录欧模网,建议先收藏
收藏
分享
皮肤干燥
关注
为您推荐
别墅室内装饰CAD施工图集cad施工图
餐厅室内装饰CAD施工图集cad施工图
各风格别墅家装室内装饰CAD施工图集 5套cad施工图
多居室各风格室内装饰CAD施工图集 5套cad施工图
各风格复式家装室内装饰CAD施工图集 6套cad施工图
酒店室内装饰CAD施工图集cad施工图
健身会所室内装饰CAD施工图集cad施工图
小型酒吧室内装饰CAD施工图集cad施工图
酒吧舞厅室内装饰CAD施工图集cad施工图
健身房室内装饰CAD施工图集cad施工图cad施工图
办公楼室内装饰CAD施工图集cad施工图
生鲜超市室内装饰CAD平面施工图集cad施工图
牙科诊所室内装饰CAD施工图集cad施工图
医院清洁台室内装饰CAD施工图集cad施工图
西餐厅室内装饰CAD施工图集cad施工图
室内装饰家具CAD图块图库施工图集cad施工图
戏院观众厅室内装饰CAD施工图集cad施工图
各风格类型三居室室内装饰CAD施工图集 12套cad施工图
办公空间室内装饰家具图块CAD施工图集cad施工图
一居室单间室内装饰CAD施工图集cad施工图
点击加载更多
分享到
复制链接
保存海报
取消
请选择收藏夹
+新增收藏夹
新增收藏夹
取消
确认
退出查看