模型详情
1/8
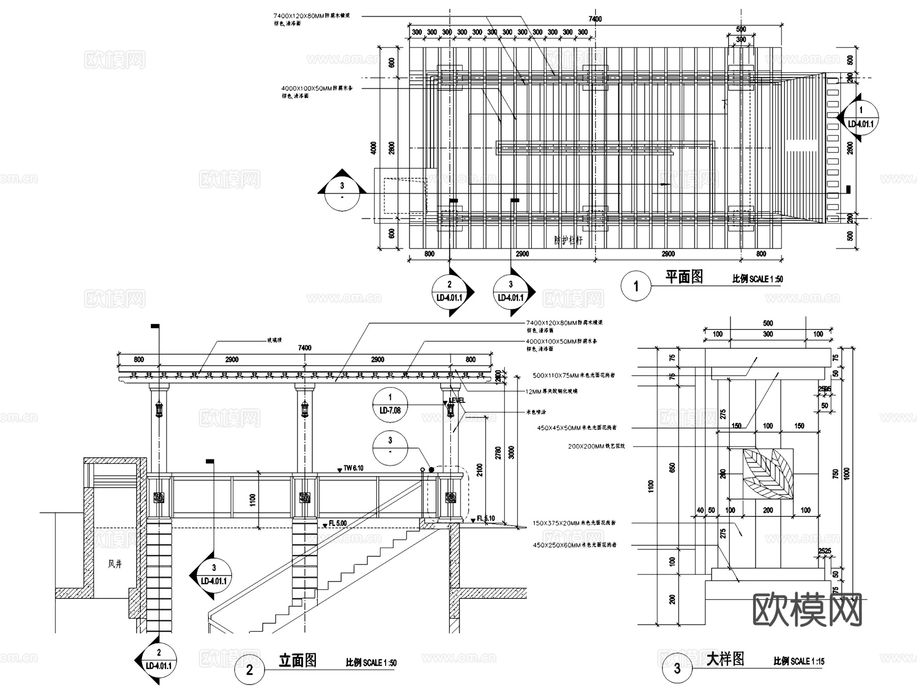
园林景观休闲廊架大样详图CAD施工图集 55套cad施工图
ID:
5398439
园林景观休闲廊架大样详图CAD施工图集 55套cad施工图 ID-5398439
所需欧币:
36
发布时间:
2026-02-09
下载请使用电脑登录欧模网,建议先收藏
收藏
分享
皮肤干燥
关注
为您推荐
园林景观铺装大样详图CAD施工图集 45套cad施工图
墙体墙身大样CAD施工详图集cad施工图
园林景观围墙栏杆大样详图CAD施工图集 40套cad施工图
园林景观台阶踏步大样详图CAD施工图集 7套cad施工图
园林休闲景观桥大样详图CAD施工图集 70套cad施工图
园林景观户外吧台CAD施工详图集cad施工图
玻璃亭景观大样CAD施工详图集cad施工图
园林景观亭子廊架节点大样CAD施工图集 240套cad施工图
墙面工艺节点大样CAD施工详图集cad施工图
门工艺节点大样CAD施工详图集cad施工图
园林景观休闲廊架亭廊节点CAD施工图集 17套cad施工图
楼梯节点大样详图CAD施工图集cad施工图
吊顶工艺做法节点大样CAD施工详图集cad施工图
地平做法工艺节点大样CAD施工详图集cad施工图
景观休闲廊架花架长廊大样CAD施工图集 70套cad施工图
欧式门窗节点大样详图CAD施工图集cad施工图
室内家装节点大样详图CAD施工图集cad施工图
景观雾喷CAD施工详图集cad施工图
干挂石材节点大样CAD施工详图集cad施工图
钢梯及平台栏杆节点大样CAD施工详图集cad施工图
点击加载更多
分享到
复制链接
保存海报
取消
请选择收藏夹
+新增收藏夹
新增收藏夹
取消
确认
退出查看