模型详情
1/8
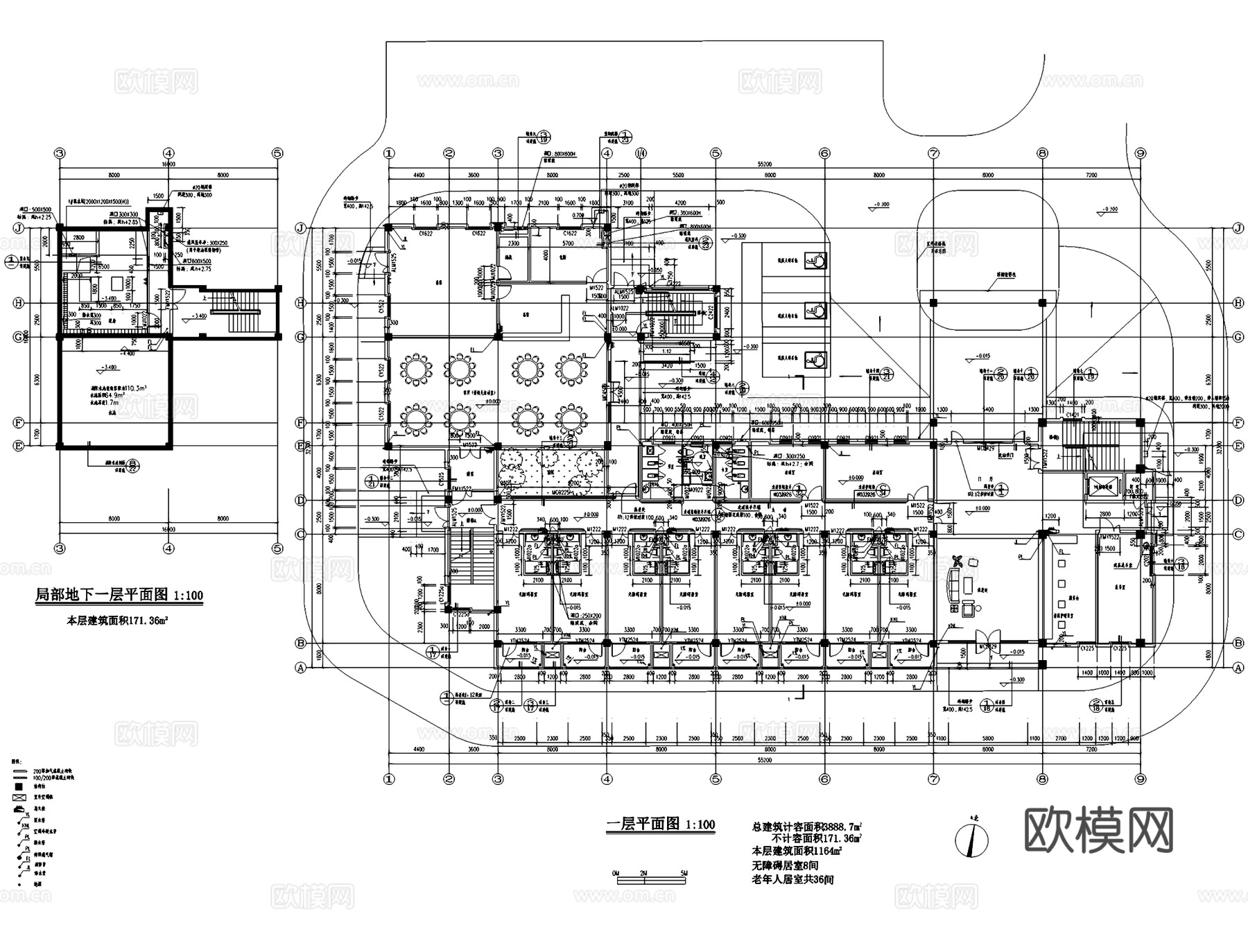
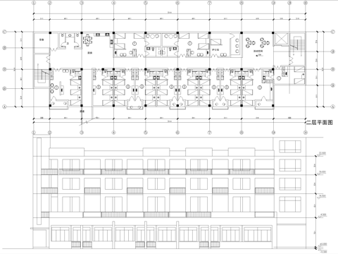
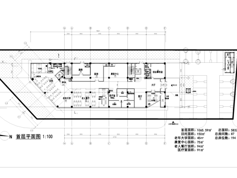
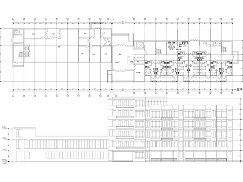
养老院敬老院老年活动中心建筑CAD施工图集 35套cad施工图
ID:
5404257
养老院敬老院老年活动中心建筑CAD施工图集 35套cad施工图 ID-5404257
所需欧币:
36
发布时间:
2026-02-11
下载请使用电脑登录欧模网,建议先收藏
收藏
分享
皮肤干燥
关注
为您推荐
三层养老院敬老院建筑 老年公寓cad施工图
22套养老院敬老院老年公寓CAD施工图平面图cad施工图
四层养老院敬老院建筑 老年服务中心综合办公楼cad施工图
四层养老院敬老院建筑 砖混结构cad施工图
养老院敬老院疗养院建筑平面图 老年大学康复中心cad施工图
六层养老院敬老院 老年公寓康复中心 建筑平面图cad施工图
四层敬老院养老院建筑 老年服务中心 建筑平立面图 规划总平面cad施工图
别墅建筑CAD施工图集cad施工图
六层养老院敬老院疗养院cad施工图
三层养老院敬老院建筑平面图cad施工图
健身中心建筑CAD施工图集cad施工图
酒店建筑CAD施工图集cad施工图
欧式商住建筑CAD施工图集cad施工图cad施工图
幼儿园建筑CAD施工图集cad施工图
小型食堂餐厅建筑CAD施工图集cad施工图
酒店建筑全套CAD施工图集cad施工图
四层养老院养员楼敬老院建筑 砖混结构cad施工图
病房楼建筑CAD平面施工图集cad施工图
酒店方案建筑CAD施工图集cad施工图
职工活动中心建筑CAD施工图cad施工图
点击加载更多
分享到
复制链接
保存海报
取消
请选择收藏夹
+新增收藏夹
新增收藏夹
取消
确认
退出查看