模型详情
1/8
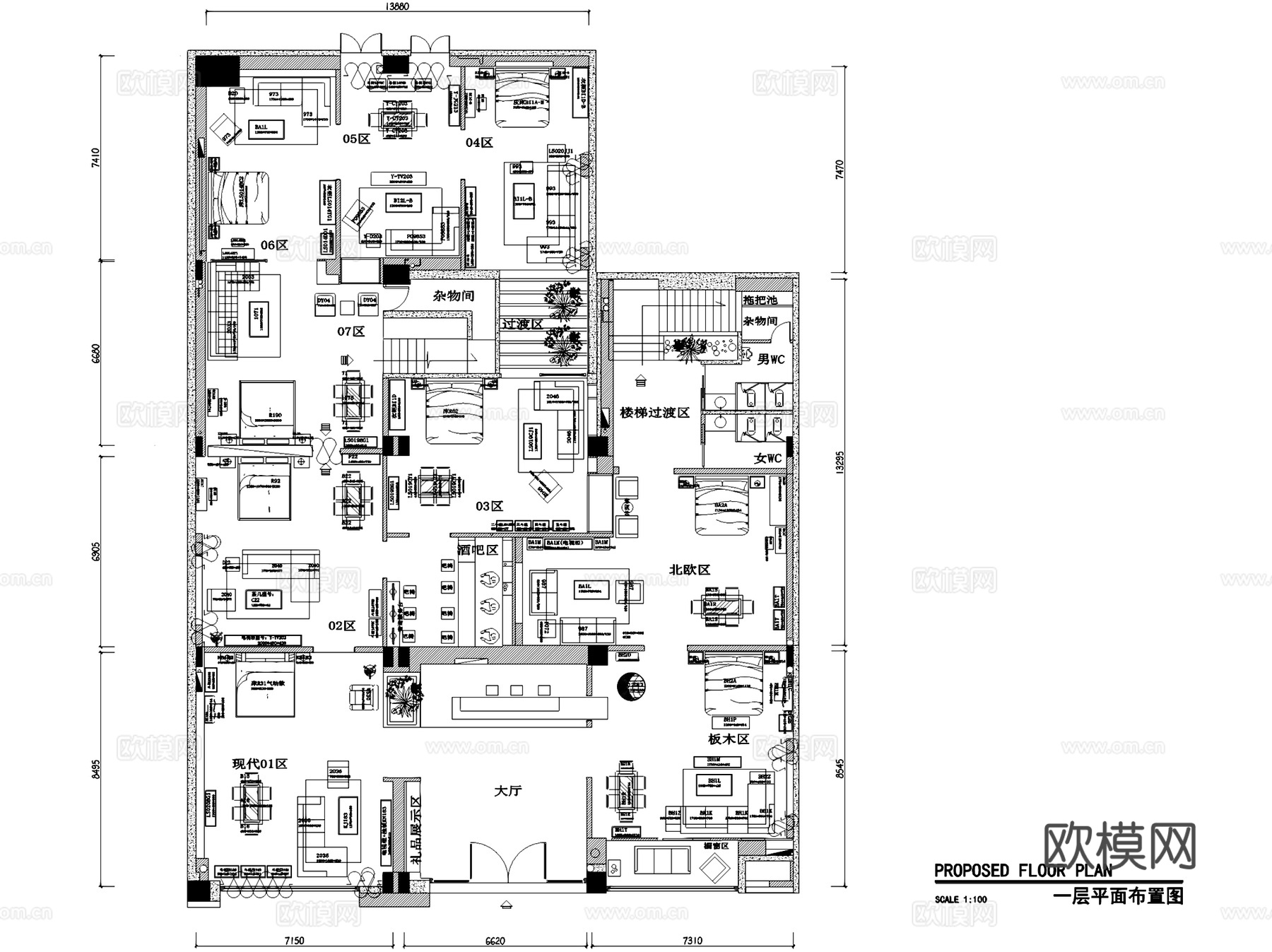
文化展馆展览展厅室内工装平面CAD施工图集 28套cad施工图
ID:
5404292
文化展馆展览展厅室内工装平面CAD施工图集 28套cad施工图 ID-5404292
所需欧币:
36
发布时间:
2026-02-11
下载请使用电脑登录欧模网,建议先收藏
收藏
分享
皮肤干燥
关注
为您推荐
茶文化展厅室内工装CAD施工图cad施工图
玉雕文化展厅室内工装CAD施工图cad施工图cad施工图
办公室室内工装平面布局CAD施工图集 10套cad施工图
文化展厅历史展馆平面图cad施工图
酒店首层大堂餐厅室内工装平面图库CAD施工图集cad施工图
酒品酒庄展馆文化展厅平面图cad施工图
文化展厅cad平面图cad施工图
文化展厅cad平面图cad施工图
文化展厅cad平面图cad施工图
文化展厅cad平面图cad施工图
文化展厅cad平面图cad施工图
汽车销售展厅4S店室内工装平面图CAD施工图集 12套cad施工图
生鲜超市室内装饰CAD平面施工图集cad施工图
展馆展厅平面图15套cad施工图
文化展厅平面图cadcad施工图
文化展厅平面图cad施工图
文化展厅平面图cad施工图
文化展厅平面图cad施工图
病房楼建筑CAD平面施工图集cad施工图
Art Mansion家具展厅室内工装CAD施工图cad施工图
点击加载更多
分享到
复制链接
保存海报
取消
请选择收藏夹
+新增收藏夹
新增收藏夹
取消
确认
退出查看