模型详情
1/5
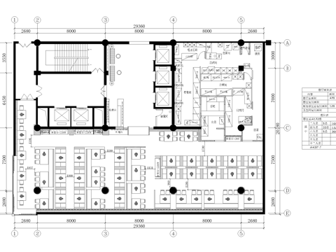
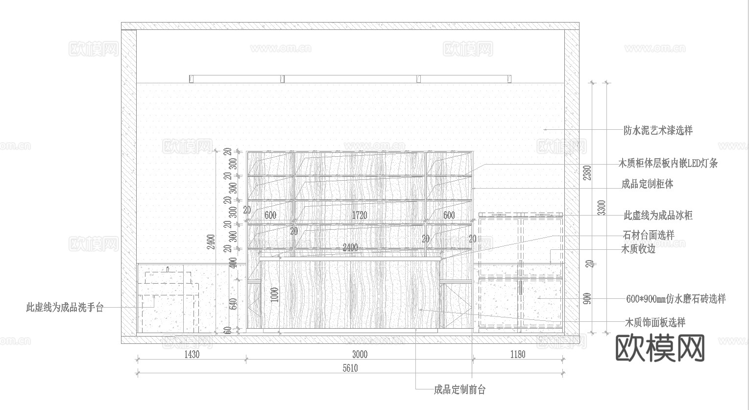
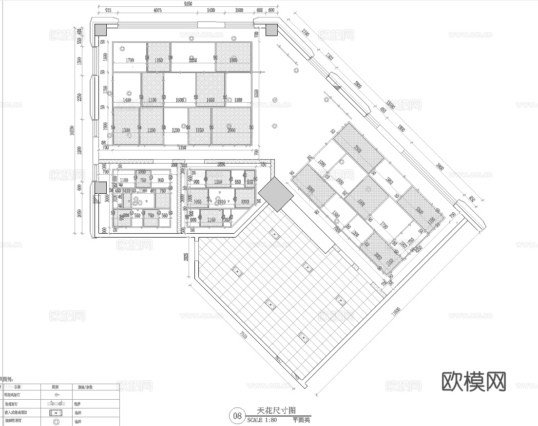
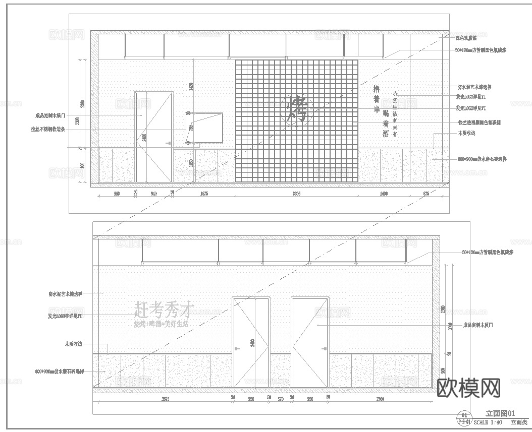
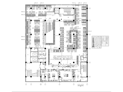
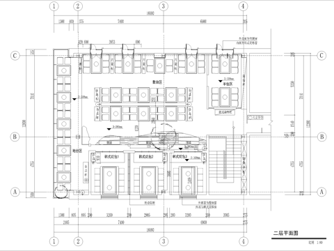
韩式烤肉店 最新全套施工图合集cad施工图
ID:
5404720
韩式烤肉店 最新全套施工图合集cad施工图 ID-5404720
所需欧币:
86
发布时间:
2026-02-12
下载请使用电脑登录欧模网,建议先收藏
收藏
分享
微笑丶纯属礼貌
关注
为您推荐
韩式烤肉店 最新全套施工图合集cad施工图
韩式烤肉店 最新全套施工图合集cad施工图
韩式烤肉店 最新平面施工图合集cad施工图
烤肉店 最新全套施工图合集cad施工图
烤肉店 最新全套施工图合集cad施工图
烤肉店 最新全套施工图合集cad施工图
烤肉店 最新全套施工图合集cad施工图
烤肉店 最新全套施工图合集cad施工图
烤肉店 最新全套施工图合集cad施工图
烤肉店 最新全套施工图合集cad施工图
韩式快餐厅 最新全套施工图 效果图合集cad施工图
医院 最新全套施工图合集cad施工图
医院 最新全套施工图合集cad施工图
面馆 最新全套施工图合集cad施工图
面馆 最新全套施工图合集cad施工图
面馆 最新全套施工图合集cad施工图
面馆 最新全套施工图合集cad施工图
健身会所 最新全套施工图合集cad施工图
健身会所 最新全套施工图合集cad施工图
生鲜超市 最新全套施工图合集cad施工图
点击加载更多
分享到
复制链接
保存海报
取消
请选择收藏夹
+新增收藏夹
新增收藏夹
取消
确认
退出查看