模型详情
1/8
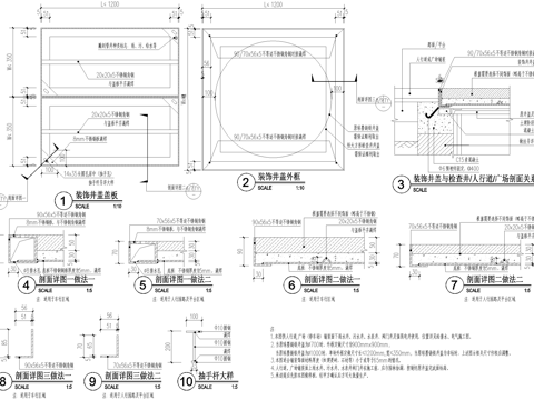
快速取水阀排水口井盖给排水节点CAD施工图集 11套cad施工图
ID:
5406254
快速取水阀排水口井盖给排水节点CAD施工图集 11套cad施工图 ID-5406254
所需欧币:
36
发布时间:
2026-02-12
下载请使用电脑登录欧模网,建议先收藏
收藏
分享
皮肤干燥
关注
为您推荐
井盖节点 铺装地面隐蔽式 装饰井盖 盖板 排水口CAD施工图cad施工图cad施工图
快速取水器取水阀安装大样给排水节点cad施工图
沟盖板 排水盖板 井盖节点 CAD施工图cad施工图
排水沟节点 盖板 井盖节点 CAD施工图cad施工图
排水井 盖板 井盖节点 CAD施工图cad施工图
井盖节点 篦子 沟盖板 给排水节点详图cad施工图
排水沟截水沟雨水篦子井盖给排水节点CAD施工图集 10套cad施工图
排水沟节点 排水口盖板CAD施工图cad施工图
井盖节点 绿化软质井盖 盖板 CAD施工图cad施工图
井盖节点 装饰井盖板cad施工图
井盖节点 绿化覆盖型井盖 草地井盖 盖板 CAD施工图cad施工图
井盖节点检修井排水盖板篦子CAD施工图cad施工图
检修井 井盖节点 绿化盖板 给排水节点详图cad施工图
井盖节点 种植井 双层井盖 盖板 CAD施工图cad施工图
井盖节点 检查井盖 复合井盖 装饰井 标识牌 CAD施工图cad施工图
景观节点图集cadcad施工图
排水沟铺装井盖草地井盖检修井盖板篦子CAD施工图cad施工图
自动喷灌系统灌溉系统给排水节点CAD施工图集 18套cad施工图
雨水井污水井检查井交汇井井盖给排水节点CAD施工图集 55套cad施工图
检查孔盖硬质井盖节点 CAD施工图cad施工图
点击加载更多
分享到
复制链接
保存海报
取消
请选择收藏夹
+新增收藏夹
新增收藏夹
取消
确认
退出查看