模型详情
1/4
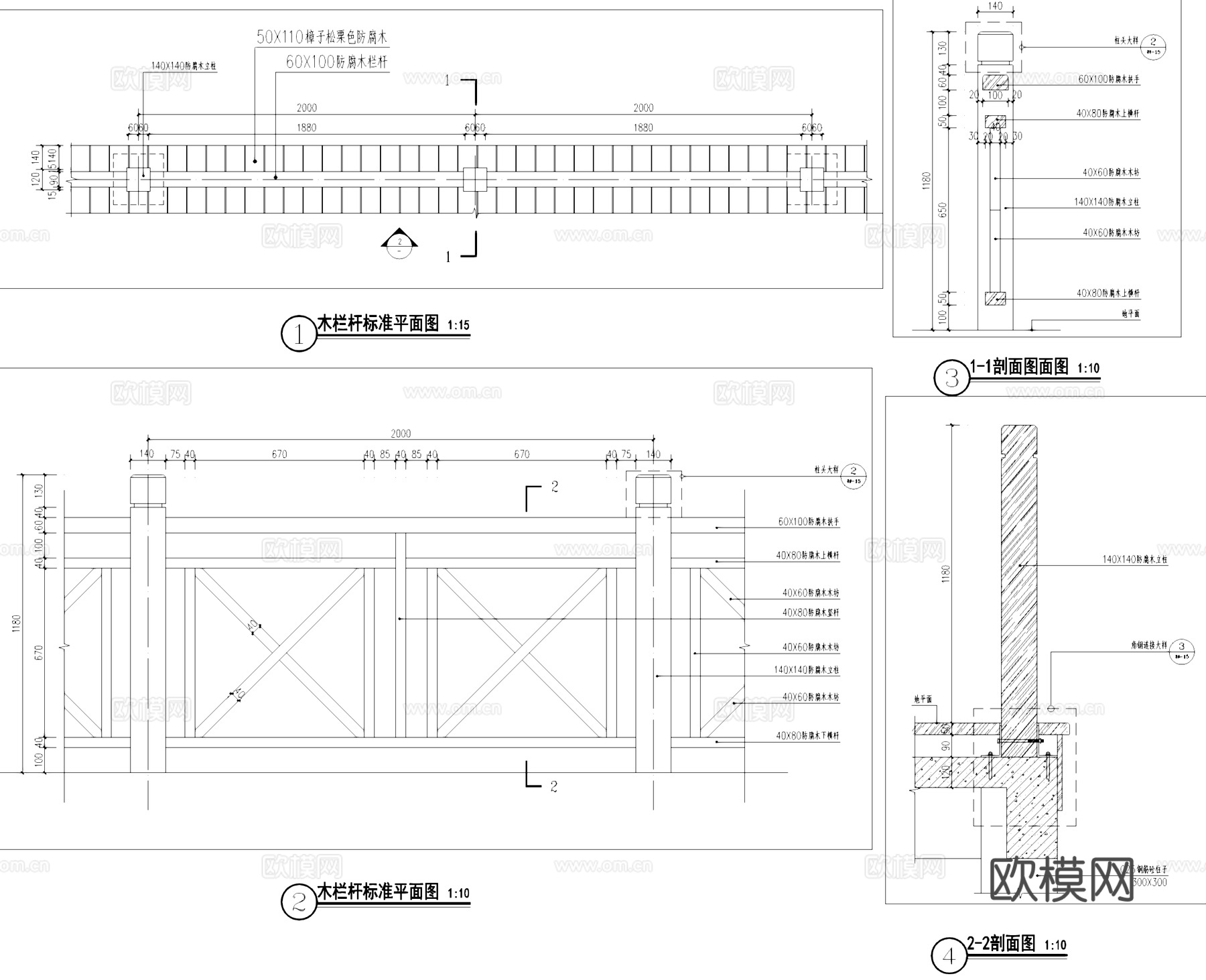
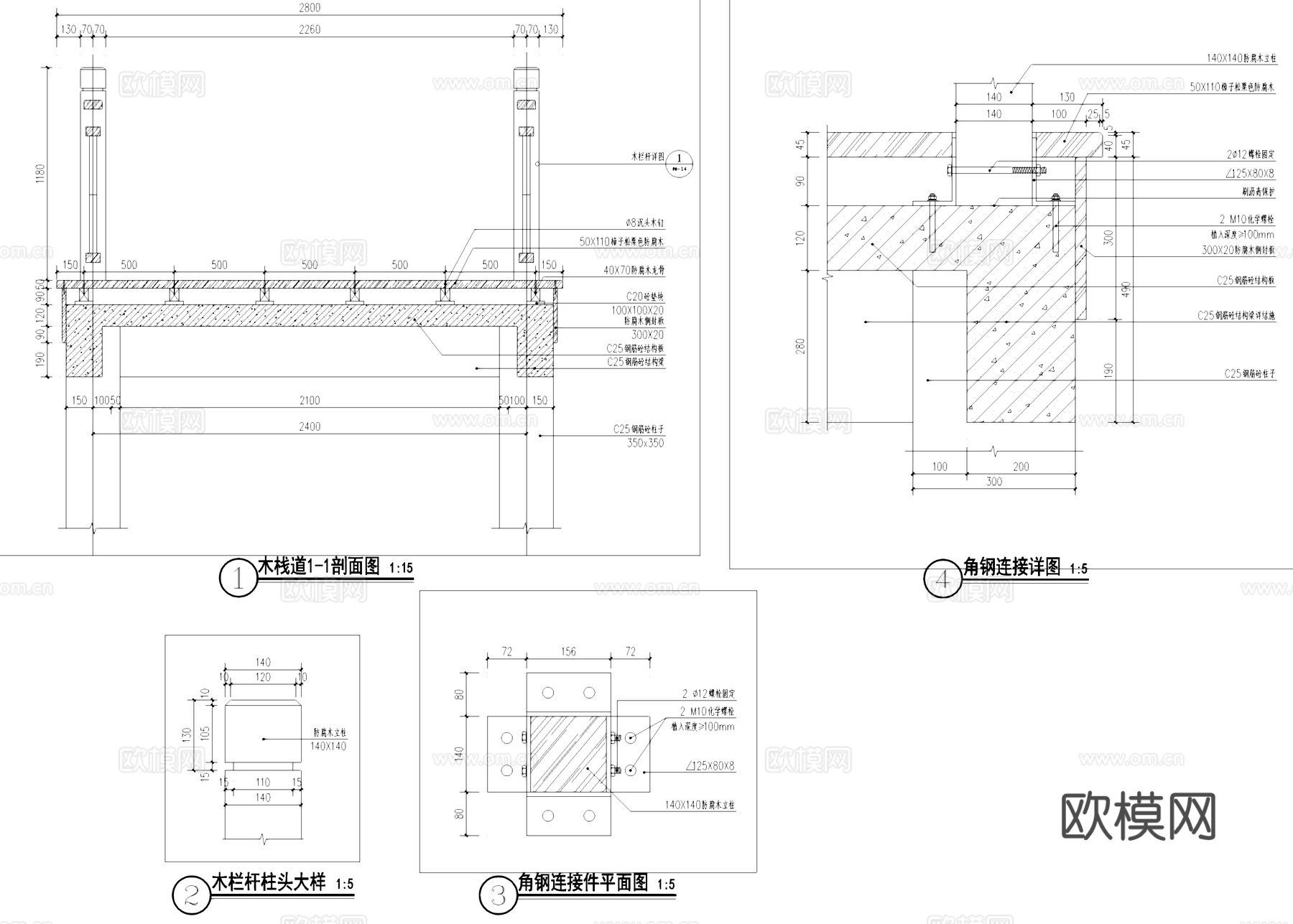
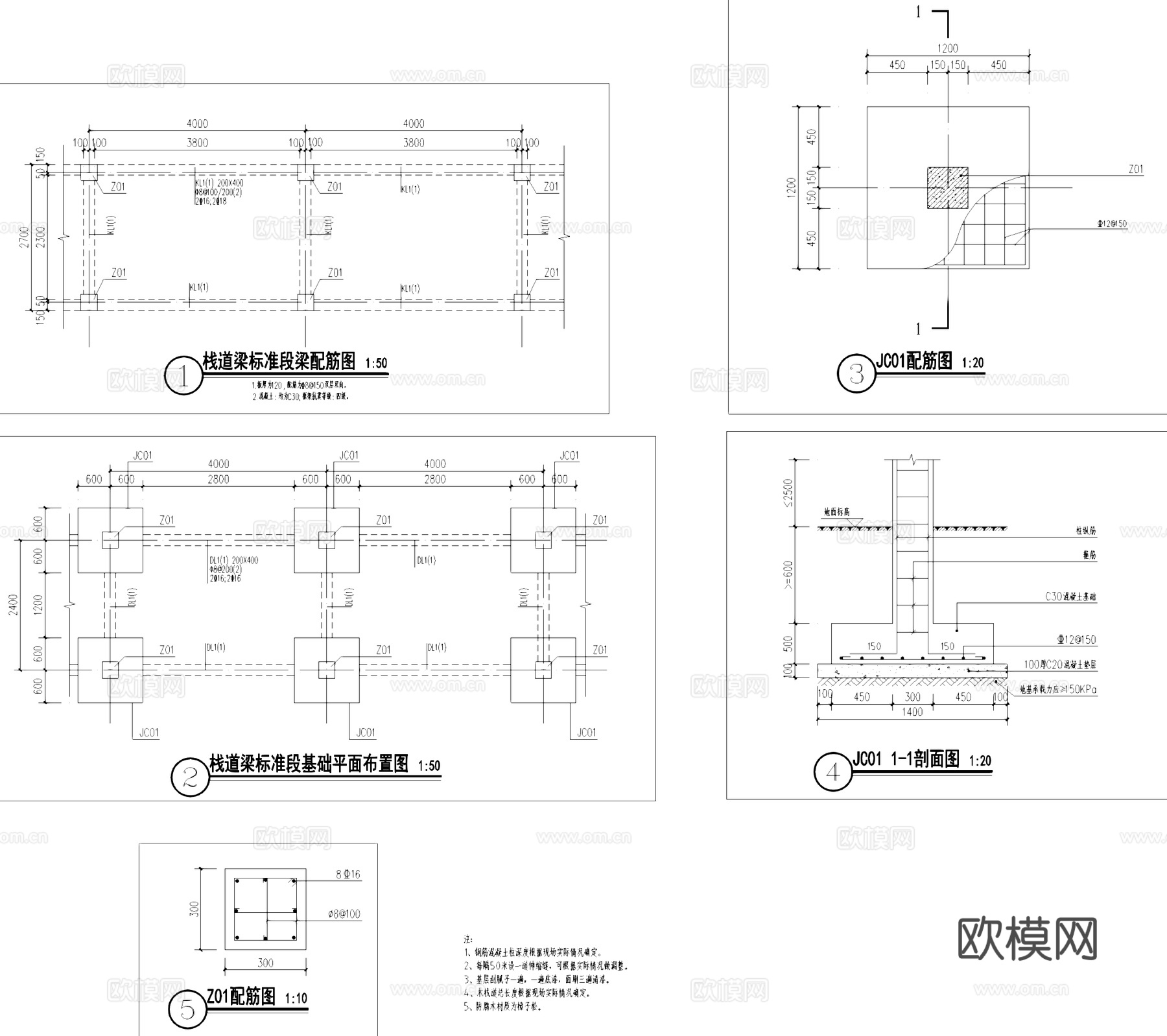
标准木栈道栏杆景观节点CAD施工图集cad施工图
ID:
5406291
标准木栈道栏杆景观节点CAD施工图集cad施工图 ID-5406291
所需欧币:
16
发布时间:
2026-02-12
下载请使用电脑登录欧模网,建议先收藏
收藏
分享
皮肤干燥
关注
为您推荐
景观节点图集cadcad施工图
铁艺栏杆围墙围栏景观节点CAD施工图集 16套cad施工图
登山木栈道景观CAD施工详图集cad施工图cad施工图
码头景观节点详图CAD施工图集cad施工图
溪涧景观节点大样CAD施工图集cad施工图
点式景观绿化节点CAD施工图集cad施工图
玻璃栏杆不锈钢扶手景观节点CAD施工图集 10套cad施工图
会议中心景观绿化平面及节点CAD施工图集cad施工图
居住区景观节点大样CAD施工图集cad施工图
防腐木栈道景观节点大样CAD施工图cad施工图
钢梯及平台栏杆节点大样CAD施工详图集cad施工图
山斜坡木栈道景观节点大样CAD施工详图cad施工图
景观天桥 栈桥 栈道 铁艺栏杆 栏杆扶手cad施工图
瞭望景观区CAD施工图集cad施工图
景观防腐木栏杆围栏扶手节点大样CAD施工图集 9套cad施工图
园林景观局部节点平面图块图库CAD施工图集cad施工图cad施工图
金螳螂欧式线条节点CAD施工图集cad施工图
亭廊花架围墙景观构件节点CAD施工图集cad施工图
树池花池节点景观大样CAD施工图集cad施工图
波形梁护栏栏杆构造CAD施工图集cad施工图
点击加载更多
分享到
复制链接
保存海报
取消
请选择收藏夹
+新增收藏夹
新增收藏夹
取消
确认
退出查看