模型详情
1/5
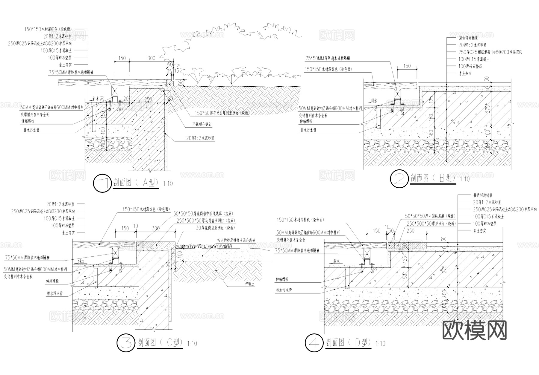
木平台 接铺装接绿地 CAD施工图cad施工图
ID:
5406419
木平台 接铺装接绿地 CAD施工图cad施工图 ID-5406419
所需欧币:
16
发布时间:
2026-02-12
下载请使用电脑登录欧模网,建议先收藏
收藏
分享
皮肤干燥
关注
为您推荐
木平台 竹木平台 接绿化接硬质铺装 排水暗沟 CAD施工图cad施工图
木平台 竹木平台 CAD施工图cad施工图
木平台 竹木平台 CAD施工图cad施工图
木平台 竹木平台 CAD施工图cad施工图
木平台 与铺装交接 龙骨固定大样 CAD施工图cad施工图
木平台 CAD施工图cad施工图
木平台 CAD施工图cad施工图
木平台 CAD施工图cad施工图
景观道路铺装木平台标准节点大样详图CAD施工图cad施工图
木平台 观景台 CAD施工图cad施工图
木平台 扣件 CAD施工图cad施工图
木平台 台阶 CAD施工图cad施工图
26套户外木平台铺装大样整理合集cad施工图
地毯铺装CAD施工图cad施工图
木平台 钉固定 CAD施工图cad施工图cad施工图
木平台 收边 CAD施工图cad施工图
木栈桥平台景观CAD施工图集cad施工图
塑木平台 观景台 CAD施工图cad施工图
木平台 相接cad施工图
防腐木栈道 木平台 CAD施工图cad施工图
点击加载更多
分享到
复制链接
保存海报
取消
请选择收藏夹
+新增收藏夹
新增收藏夹
取消
确认
退出查看