模型详情
1/8
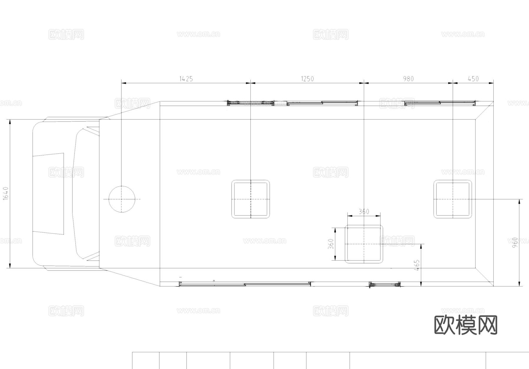
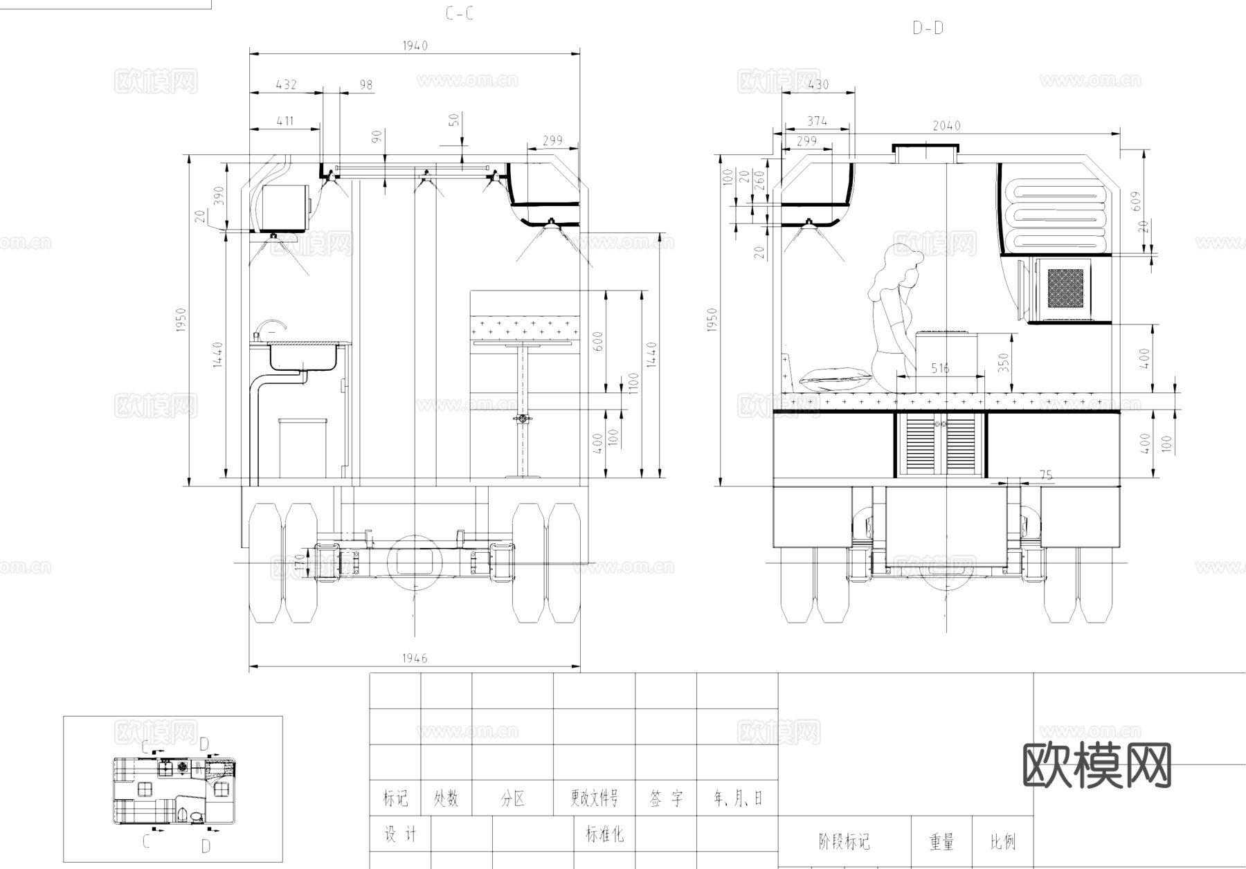
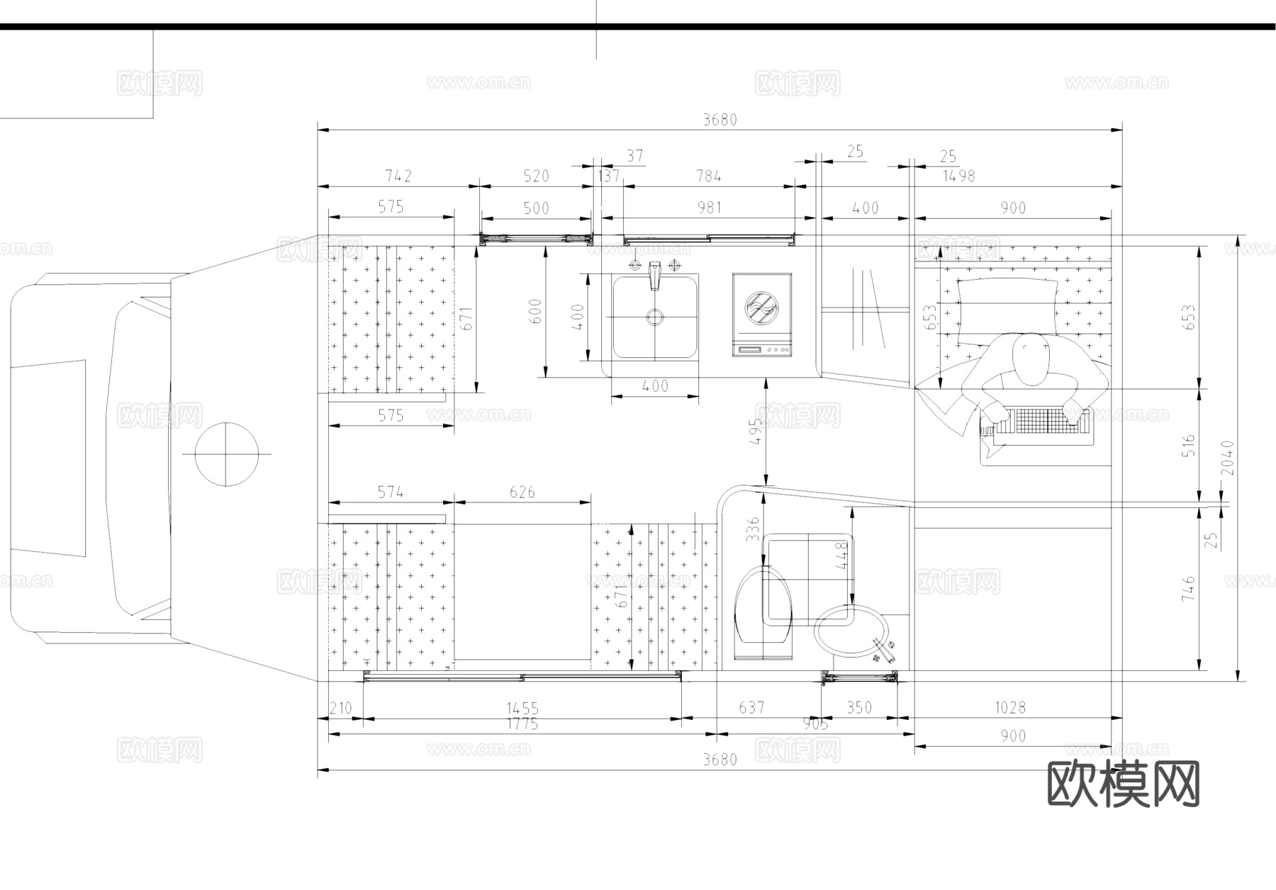
房车CAD施工图cad施工图
ID:
5409018
房车CAD施工图cad施工图 ID-5409018
所需欧币:
16
发布时间:
2026-02-25
下载请使用电脑登录欧模网,建议先收藏
收藏
分享
皮肤干燥
关注
为您推荐
露营房车营地CADcad施工图
工业厂房车间建筑CAD施工图cad施工图
厂房车间工业建筑CAD施工图cad施工图
工业厂房车间大楼建筑CAD施工图集cad施工图
厂房车间大厦工业建筑CAD施工图cad施工图
彩钢板厂房车间结构CAD施工图集cad施工图
露营房车帐篷营地景观CAD施工图集 9套cad施工图
二层工业厂房车间建筑CAD施工图集cad施工图
成品饲料厂房车间工业建筑CAD施工图cad施工图
医用器械厂房车间工业建筑CAD施工图cad施工图
江苏正大玻纤工业厂房车间建筑CAD施工图集cad施工图
精密仪表厂房车间工业建筑CAD施工图cad施工图
彩钢板工业厂房车间建筑结构CAD施工图集cad施工图
拖挂房车 旅居挂车 拖挂式旅居车 牵引房车 挂式房车cad施工图
二级耐火厂房车间工业建筑规划CAD施工图cad施工图
工业园区库房车间办公规划总平面CAD施工图cad施工图
工业园区厂房车间办公规划总平面CAD施工图cad施工图
单层框架轻钢屋面厂房车间工业建筑CAD施工图cad施工图
四层丙类生产厂房车间工业建筑CAD施工图cad施工图
单层钢筋混凝土排架厂房车间工业建筑CAD施工图集cad施工图
点击加载更多
分享到
复制链接
保存海报
取消
请选择收藏夹
+新增收藏夹
新增收藏夹
取消
确认
退出查看