模型详情
1/2
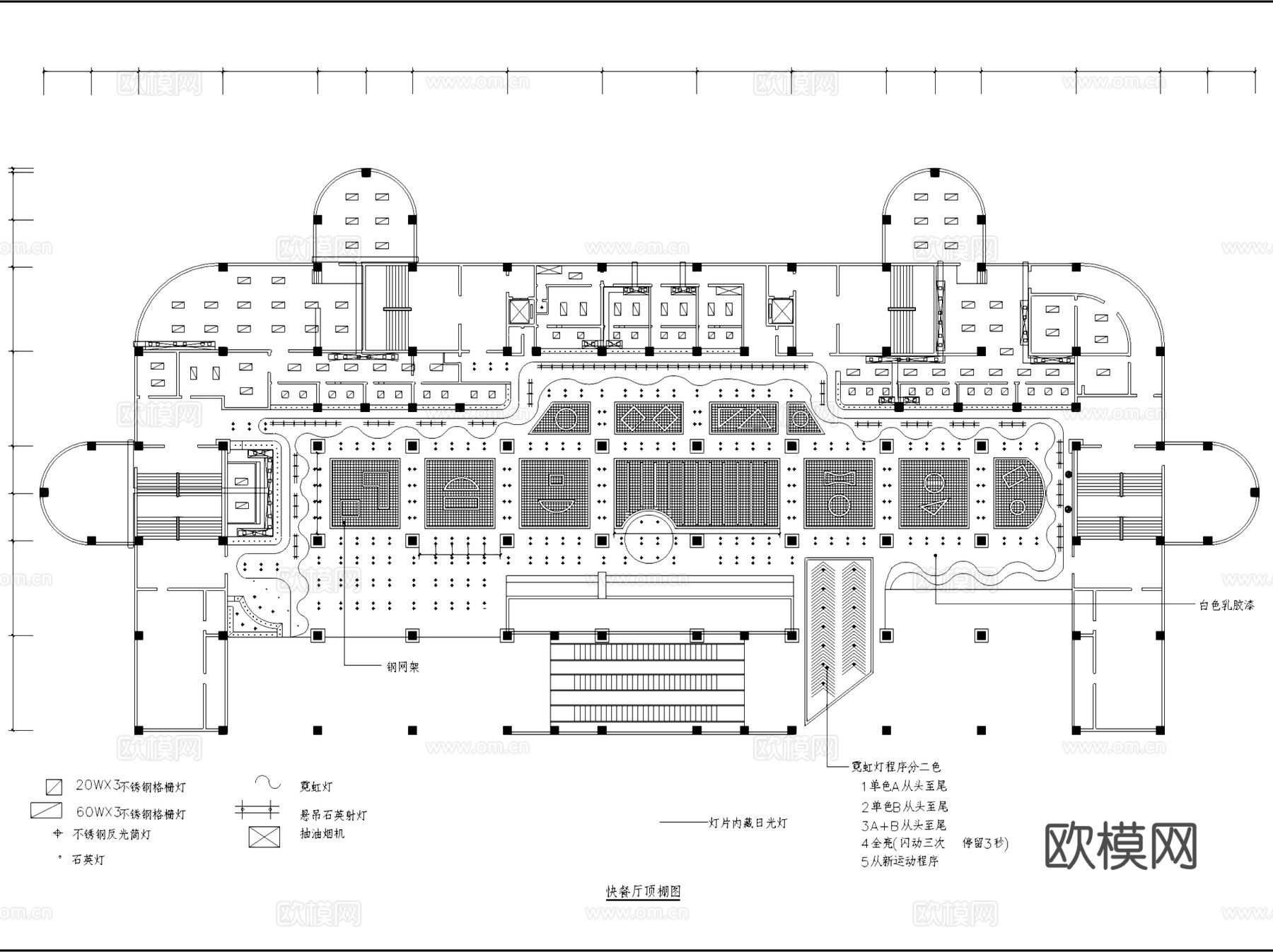
快餐店平面布置及天花顶棚CAD施工图cad施工图
ID:
5410687
快餐店平面布置及天花顶棚CAD施工图cad施工图 ID-5410687
所需欧币:
16
发布时间:
2026-02-25
下载请使用电脑登录欧模网,建议先收藏
收藏
分享
皮肤干燥
关注
为您推荐
欧式顶棚吊顶天花平剖面CAD施工图cad施工图
快餐店CAD施工图cad施工图
室内天花吊顶顶棚节点大样详图CAD施工图集 22套cad施工图
室内天花吊顶顶棚节点大样详图CAD施工图集 90套cad施工图
天花吊顶节点CAD施工图cad施工图
2026年最新吊顶曲面吊顶顶棚管道铝格栅曲线天花CAD图库cad施工图
食堂CAD平面布置图cad施工图
天花节点大样详图cad施工图cad施工图
天花吊顶节点大样CAD施工图cad施工图
自助快餐店装修施工图cad施工图
影音室平面布置图cad施工图cad施工图
花店平面布置图CAD施工图cad施工图
花店平面布置图CAD施工图cad施工图
花店平面布置图CAD施工图cad施工图
吊顶天花钢架转换层CAD施工图cad施工图
天花吊顶马道详图CAD施工图cad施工图
吊顶天花反向支撑节点CAD施工图cad施工图
软膜天花节点cad施工图
异形天花节点cad施工图
常用天花节点cad施工图
点击加载更多
分享到
复制链接
保存海报
取消
请选择收藏夹
+新增收藏夹
新增收藏夹
取消
确认
退出查看