模型详情
1/8
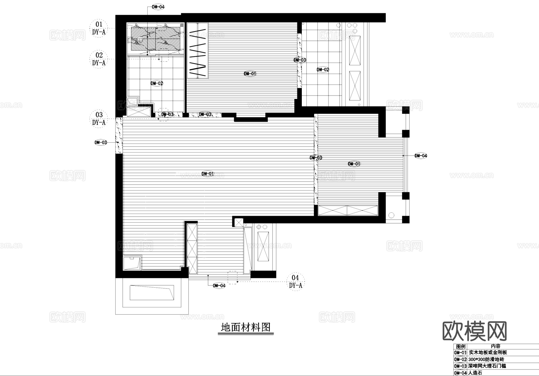
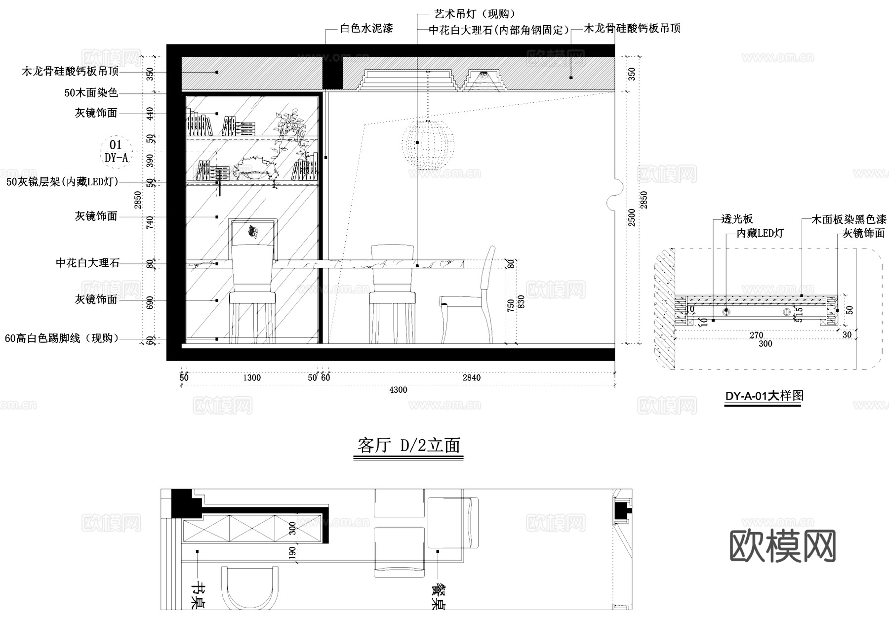
凯龙地产2#8单元样板房室内装饰CAD施工图整套cad施工图
ID:
5410718
凯龙地产2#8单元样板房室内装饰CAD施工图整套cad施工图 ID-5410718
所需欧币:
16
发布时间:
2026-02-25
下载请使用电脑登录欧模网,建议先收藏
收藏
分享
皮肤干燥
关注
为您推荐
凯龙地产2#7单元样板房室内装饰CAD施工图整套cad施工图
整套民宿施工图cadcad施工图
扬州BINGO亲子餐厅室内装饰CAD施工图整套+SUcad施工图
500人报告厅室内装饰CAD施工图整套cad施工图
中海黄龙云起三里庐样板房室内家装CAD施工图整套cad施工图
现代四层幼儿园室内装饰CAD施工图整套cad施工图
宠物店猫狗舍室内装饰CAD施工图整套cad施工图
株洲环洲音乐舞台室内装饰CAD施工图整套cad施工图
重庆市科技馆展厅展区室内装饰CAD施工图整套cad施工图cad施工图
现代三层幼儿园室内装饰CAD施工图整套cad施工图
惠州蓉城小厨中餐厅室内装饰CAD施工图整套+SUcad施工图
宾馆标准间客房室内装饰CAD施工图整套cad施工图
奶油风楚门樱舍服装店室内装饰CAD施工图整套cad施工图
外婆家万象城店室内装饰CAD施工图整套cad施工图
味千拉面仙霞路西郊百联店室内装饰CAD施工图整套cad施工图
深圳港龙妇产医院室内装饰CAD施工图全套cad施工图
整套民宿平面图cadcad施工图
整套民宿平面图cadcad施工图
整套民宿平面图cadcad施工图
大连国际会议展览中心展馆室内装饰CAD施工图整套cad施工图
点击加载更多
分享到
复制链接
保存海报
取消
请选择收藏夹
+新增收藏夹
新增收藏夹
取消
确认
退出查看