模型详情
1/8
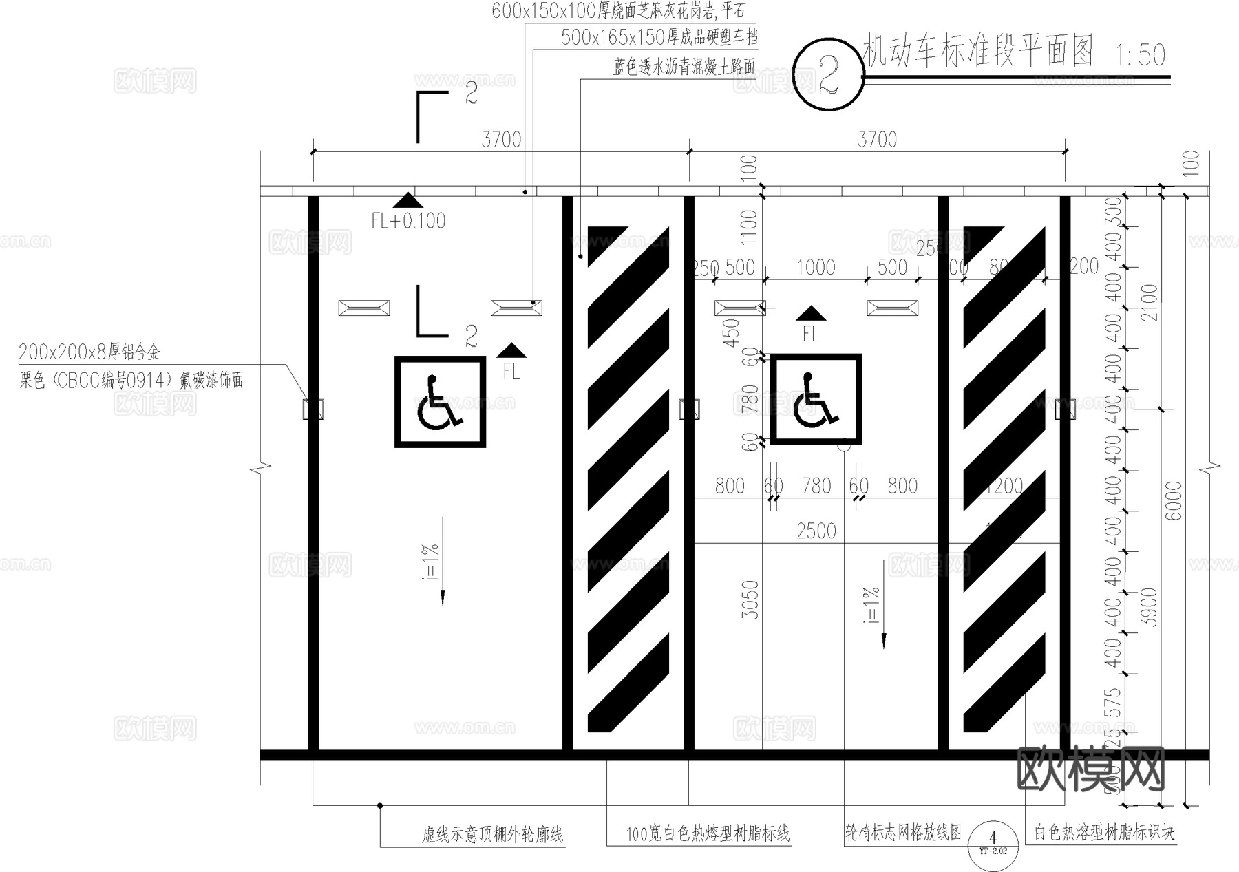
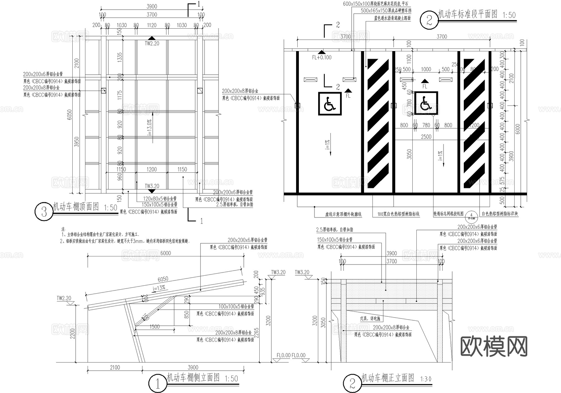
机动车棚 无障碍停车位 铝板雨棚 遮阳棚 钢结构雨棚cad施工图
ID:
5411199
机动车棚 无障碍停车位 铝板雨棚 遮阳棚 钢结构雨棚cad施工图 ID-5411199
所需欧币:
16
发布时间:
2026-02-24
下载请使用电脑登录欧模网,建议先收藏
收藏
分享
皮肤干燥
关注
为您推荐
车棚 机动车棚 铝板雨棚 遮阳棚 钢结构雨棚cad施工图
单臂非机动车棚 玻璃雨棚 钢结构雨棚 遮阳棚cad施工图
雨棚 非机动车棚 单臂自行车棚 玻璃雨棚 钢结构雨棚 遮阳棚cad施工图
雨棚 非机动车棚 张拉膜 单臂 钢结构雨棚 遮阳棚cad施工图
玻璃雨棚 钢结构雨棚 遮阳棚cad施工图
非机动车坡道廊架 玻璃雨棚 钢结构雨棚 遮阳棚cad施工图
非机动车棚 张拉膜 遮阳棚 钢结构雨棚cad施工图
非机动车棚 张拉膜 遮阳棚 钢结构雨棚cad施工图
非机动车棚 自行车棚 遮阳棚 钢结构雨棚cad施工图
非机动车棚 自行车棚 遮阳棚 钢结构雨棚cad施工图
钢结构雨棚 遮阳棚cad施工图
雨棚 钢结构雨棚 入口廊架顶棚 遮阳棚cad施工图
非机动车棚 自行车棚 非机动车停车位 遮阳棚 钢结构雨棚cad施工图
非机动车棚 单边单臂自行车架 玻璃雨棚 遮阳棚 钢结构雨棚cad施工图
玻璃雨棚 悬臂式框雨篷 钢结构雨棚 遮阳棚cad施工图
非机动车棚 自行车棚 电子刷卡器 遮阳棚 钢结构雨棚cad施工图
电动车棚 非机动车棚 单边单臂车架 钢结构雨棚 遮阳棚cad施工图
非机动车棚 自行车棚 非机动车停车位 遮阳棚cad施工图
雨棚遮阳棚车棚建筑结构节点大样详图CAD施工图集 10套cad施工图
钢结构棚 玻璃雨棚雨篷cad施工图cad施工图
点击加载更多
分享到
复制链接
保存海报
取消
请选择收藏夹
+新增收藏夹
新增收藏夹
取消
确认
退出查看