模型详情
1/7
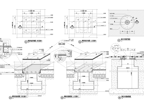
井盖节点 钢板井盖 草坪井盖 绿地内检修井 雨水收集口cad施工图
ID:
5411219
井盖节点 钢板井盖 草坪井盖 绿地内检修井 雨水收集口cad施工图 ID-5411219
所需欧币:
16
发布时间:
2026-02-24
下载请使用电脑登录欧模网,建议先收藏
收藏
分享
皮肤干燥
关注
为您推荐
井盖节点 装饰井检修井 起吊口cad施工图
雨水井节点 井盖节点 绿地植草井盖板 种植盘 CAD施工图cad施工图
井盖节点 草地隐蔽式井盖 篦子 雨水口节点 混凝土路面铺装cad施工图
井盖节点 绿化种植盆 装饰井盖板 检查井 硬质铺地井盖cad施工图
井盖节点 绿化覆盖型井盖 草地井盖 盖板 CAD施工图cad施工图
井盖节点 种植井 双层井盖 盖板 CAD施工图cad施工图
井盖节点 检查井盖 复合井盖 装饰井 标识牌 CAD施工图cad施工图
井盖节点 方形井圆形井 球墨铸铁井盖cad施工图
排水沟铺装井盖草地井盖检修井盖板篦子CAD施工图cad施工图
井盖节点 检修井装饰盖板 起吊口大样 CAD施工图cad施工图
检修井 井盖节点 绿化盖板 给排水节点详图cad施工图
井盖节点 装饰井盖板cad施工图
井盖 雨水口 硬质井盖绿化井盖 绿化给水点 铺装伸缩缝cad施工图
雨水井节点 井盖节点 绿地雨水井 车行人行道检查井 CADcad施工图
井盖节点检修井排水盖板篦子CAD施工图cad施工图
铺装井盖草地井盖盖板CAD施工图cad施工图
井盖节点 绿化软质井盖 盖板 CAD施工图cad施工图
井盖节点 装饰井检查井盖板 绿化种植盆 绿化种植井圈 抽手杆cad施工图
井盖节点 检查井 不锈钢提拉口 CAD施工图cad施工图
雨水收集口排水管排水井盖板篦子CAD施工图cad施工图
点击加载更多
分享到
复制链接
保存海报
取消
请选择收藏夹
+新增收藏夹
新增收藏夹
取消
确认
退出查看